Автомобили Lada Samara16v 2011 - инструкция пользователя по применению, эксплуатации и установке на русском языке. Мы надеемся, она поможет вам решить возникшие у вас вопросы при эксплуатации техники.
Если остались вопросы, задайте их в комментариях после инструкции.
"Загружаем инструкцию", означает, что нужно подождать пока файл загрузится и можно будет его читать онлайн. Некоторые инструкции очень большие и время их появления зависит от вашей скорости интернета.

ТОРМОЗНАЯ СИСТЕМА
ной оболочке шланга или при по-
явлении вздутий при нажатии на
педаль тормоза необходимо про-
извести замену шланга на новый.
Через три года эксплуатации
тормозную ж идк ость в системе
необходимо заменить. Это связа-
но с тем, что тормозная жидкость
впитывает влагу из окружающей
среды, которая приводит к пони-
жению ее температуры кипения.
Кроме того, содержание воды мо-
жет вызвать коррозию деталей ра-
бочей тормозной системы.
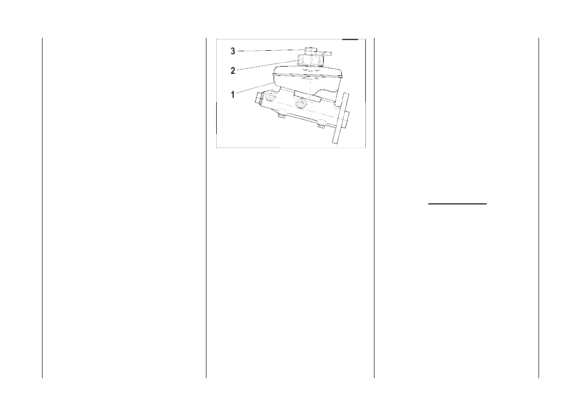
Рис. 35. Бачок гидропривода
тормозов
Уровень тормозной жидкости в
бачке 1 (рис. 35) проверяйте визу-
ально по меткам, нанесенным на
корпус бачка, выполненного из по-
лупрозрачной пластмассы. При
снятой крышке 2 и новых наклад-
ках тормозных механизмов уро-
вень жидкости должен быть на
метке “МАХ”.
Проверяя уровень тормозной
жидкости в бачке, не забудьте так-
же проверить исправность работы
датчика аварийного уровня, для
чего нажмите сверху на централь-
ную часть защитного колпачка 3 -
при включенном зажигании в ком-
бинации приборов должна заго-
раться контрольная лампа.
Контрольная лампа аварийно-
го состояния рабочей тормозной
системы загорается при пониже-
нии уровня жидкости в бачке ниже
метки “MIN”, что при частично из-
ношенных или новых накладках ко-
лодок тормозных механизмов го-
ворит об утечке жидкости вследст-
вии разгерметизации системы.
Доливку жидкости в этом случае
проводите только после восста-
новления герметичности системы.
При эксплуатации автомобиля
особое внимание уделяйте состо-
янию гибких шлангов, так как они
подвергаются воздействию воды,
грязи, песка и соли. В случае вы-
явления мелких трещин на наруж-
ВНИМ АНИЕ!
Торм озная жидкость ядови-
та! Поэтом у ее следует хранить
в плотно закрытой таре и вне
досягаемости детей.
Не допускайте попадания тор-
мозной жидкости на лакокрасоч-
ное покрытие кузова - это может
привести к его повреждению.
49
Содержание
- 6 КЛЮЧИ ДЛЯ АВТОМ ОБИЛЯ
- 12 ОБОРУДОВАНИЕ САЛОНА; наружного зеркала
- 14 КАПОТ; замка капота; Для доступа в моторный отсек
- 18 положения рулевой колонки
- 23 ВЫКЛЮЧАТЕЛЬ ЗАЖИГАНИЯ; в выключателе зажигания
- 27 переключатели; Положения рычага “А”
- 31 наружными зеркалами
- 32 Та б л и ц а 1; Функции компьютера
- 34 Точность и предельные значения некоторых функций; Тарирование датчика уровня
- 35 Рис. 28. Пульт управления системой вентиляции и отоп лением салона
- 44 ТОРМОЖЕНИЕ И СТОЯНКА
- 48 масла в картере двигателя; бортовую систему контроля
- 50 ТОРМОЗНАЯ СИСТЕМА; тормозов; Торм озная жидкость ядови-
- 54 ШИНЫ; Дав ление воздуха в шинах
- 55 ЗАМЕНА КОЛЕС
- 58 Та б л и ц а 4; Цепи, защищаемые плавким и предохрани телям и; Электронный блок управления, модуль зажигания
- 59 ЗАМЕНА ЛАМ П; фонарь
- 64 ХРАНЕНИЕ АВТОМО БИЛЯ; При хранении автомобиля зи-
- 65 ТЕХНИЧЕСКАЯ ХАРАКТЕРИСТИКА АВТОМОБИЛЯ; Та б л и ц а 5; Основные парам етры и размеры
- 69 Та б л и ц а 6; Основные парам етры и характеристики двигателя
- 70 Система охлаждения двигателя (включая систему
- 71 Основные регулировочные и контрольные параметры; Минимально допустимая толщина накладок для колодок передних
- 73 ПАСПОРТНЫЕ ДАННЫЕ
- 75 П Р И Л О Ж Е Н И Я; ГОРЮЧЕ-СМАЗОЧНЫЕ МАТЕРИАЛЫ, ОДОБРЕННЫЕ И РЕКОМ ЕНДУЕМ ЫЕ; П р и м е ч а н и я :
- 76 МАСЛА МОТОРНЫЕ
- 77 П р и м е ч а н и е .
- 78 Та б л и ц а 3
- 79 МАСЛА ТРАНСМИССИОННЫЕ ДЛЯ КОРОБОК ПЕРЕДАЧ
- 81 ЖИДКОСТИ ОХЛАЖДАЮЩИЕ; Cool Stream Standard
- 82 ЖИДКОСТИ ТОРМОЗНЫЕ; ЖИДКОСТИ СТЕКЛООМЫВАЮЩИЕ
- 84 П р и л о ж е н и е 2; Лампы, прим еняем ые на автомобиле
- 85 П р и л о ж е н и е 3; Перечень изделий, содержащих драгоценные металлы
- 86 О ГЛ А В Л Е Н И Е