Мониторы Sony CPD-E530 - инструкция пользователя по применению, эксплуатации и установке на русском языке. Мы надеемся, она поможет вам решить возникшие у вас вопросы при эксплуатации техники.
Если остались вопросы, задайте их в комментариях после инструкции.
"Загружаем инструкцию", означает, что нужно подождать пока файл загрузится и можно будет его читать онлайн. Некоторые инструкции очень большие и время их появления зависит от вашей скорости интернета.

4
Regolazioni
Come spostarsi all’interno dei menu
1
Premere il tasto MENU per visualizzare il menu principale.
2
Spostare il tasto di comando
m
/
M
per evidenziare il menu
principale che si desidera regolare, quindi premere il tasto
di comando.
3
Spostare il tasto di comando
m
/
M
per evidenziare il
sottomenu che si desidera regolare, quindi premere il
tasto di comando.
Se si desidera selezionare un altro menu;
spostare il tasto di comando
m
/
M
per selezionare
, quindi
premere il tasto di comando per uscire dal menu.
4
Effettuare la regolazione utilizzando il tasto di comando.
Regolazione della qualità
dell’immagine
(PICTURE EFFECT)
È possibile selezionare il modo immagine più appropriato tra 3 modi
preimpostati premendo più volte il tasto PICTURE EFFECT.
x
PROFESSIONALE
Per visualizzare i colori in modo accurato e uniforme. Scegliere questo
modo per le applicazioni di grafica e desktop publishing.
x
STANDARD
Per ottenere immagini con contrasto e luminosità elevati. Scegliere
questo modo per le applicazioni utilizzate comunemente, quali fogli di
calcolo, elaborazione di testi, posta elettronica o navigazione sul WEB.
x
DINAMICO
Per ottenere immagini estremamente nitide e realistiche simili a
fotografie. Scegliere questo modo, più luminoso del modo
“STANDARD”, per software di intrattenimento quali videogiochi o
riproduzioni di DVD.
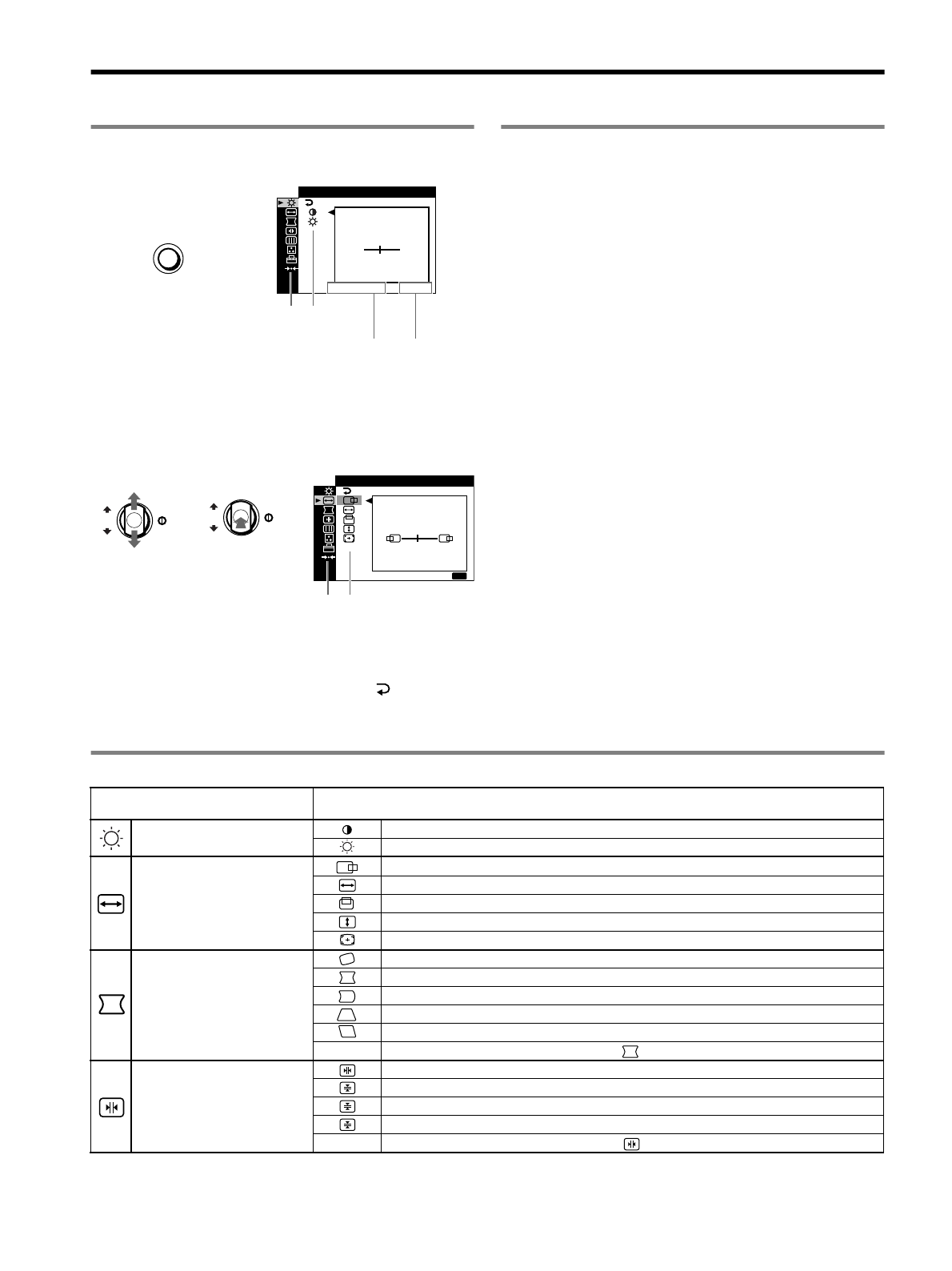
Regolazione dei menu a schermo
MENU
,
CONTRASTO LUM I N
CONTRASTO
50
/
1 0 2 4 x 7 6 8 / 8 5 H z
frequenze orizzontali/risoluzione
del segnale di ingresso corrente
(solo se il segnale corrisponde a
uno dei modi del monitor
preimpostati in fabbrica)
frequenze
verticali del
segnale di
ingresso
corrente
Menu principale
Sottomenu
OK
OK
MENU
USC I TA
45
/
D I MENS I ONE CENTRO
:
,
,
Menu principale Sottomenu
Icone dei menu principali e voci di
regolazione
Icone dei sottomenu e voci di regolazione
Regolazione del contrasto e della
luminosità
*
1
Contrasto
Luminosità
Regolazione delle dimensioni o
della centratura dell’immagine
*
1
Posizione orizzontale
Dimensione orizzontale
Posizione verticale
Dimensione verticale
Centratura e dimensionamento automatici
Regolazione della forma
dell’immagine
Ruotare l’immagine
*
2
Espandere o contrarre i bordi dell’immagine
*
1
Spostare i bordi dell’immagine verso sinistra o verso destra
*
1
Regolare la larghezza dell’immagine nella parte superiore dello schermo
*
1
Spostare l’immagine verso destra o verso sinistra nella parte superiore dello schermo
*
1
0
RIPRISTINO: per riportare tutte le impostazioni
ai valori predefiniti.
Regolazione della convergenza
*
2
Per spostare le ombre blu o rosse in senso orizzontale
Per spostare le ombre blu o rosse in senso verticale
Per spostare le ombre blu o rosse in senso verticale nella parte superiore dello schermo
Per spostare le ombre blu o rosse in senso verticale nella parte inferiore dello schermo
0
RIPRISTINO: per riportare tutte le impostazioni
ai valori predefiniti.
T
B