Котел Baxi NUVOLA-3 B40 - инструкция пользователя по применению, эксплуатации и установке на русском языке. Мы надеемся, она поможет вам решить возникшие у вас вопросы при эксплуатации техники.
Если остались вопросы, задайте их в комментариях после инструкции.
"Загружаем инструкцию", означает, что нужно подождать пока файл загрузится и можно будет его читать онлайн. Некоторые инструкции очень большие и время их появления зависит от вашей скорости интернета.

113
925.906.1 - RU
Руководство для техНИческого пеРсоНала
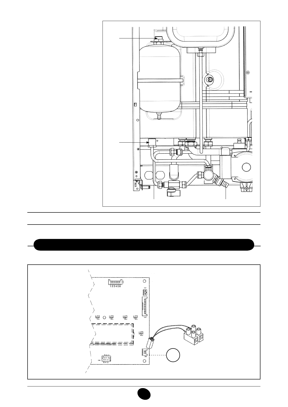
Ус тановка расширительного бака
системы ГВС желательна в следующих
случаях:
• давление в системе водоснабжения
п р е в ы ш а е т 4 б а р и т р е б у е т с я
установка редуктора давления;
• на входе холодной воды в котел
установлен обратный клапан;
• о б щ а я п р о т я ж е н н о с т ь с е т и
х о л о д н о г о в о д о с н а б ж е н и я
н е д о с т а т о ч н а д л я р а с ш и р е н и я
в од ы , с од е рж а щ е й с я в б ой л е р е ,
и н е о б х о д и м о и с п о л ь з о в а т ь
расширительный бак системы ГВС.
Рекомендация
Д л я э ф ф е к т и в н о й р а б о т ы
р а с шири тель ног о б а ка да вле ние
в системе водоснабжения должно
быть ниже 4 бар. В противном случае
установите редуктор давления. Он
должен быть от р егулир ов ан т ак,
чтобы давление холодной воды на
входе в котел было ниже 4 бар.
28. пРИсоедИНеНИе датчИка улИчНой темпеРатуРЫ
Рис.16
0610_1301 / C
G_1855
CN 5
Рис.15
Трубка расширительного
бака ГВС
0702_1205 / C
G_1893
Кран слива воды из
бойлера
Если жесткость воды выше значения 25º F (где 1º F = 10 мг СаСО3 на 1 литр воды) следует установить полифосфатный дозатор
или подобную систему для умягчения воды, которая соответствует действующим нормативам.
a
B
Содержание
- 2 Baxi; содеРЖаНИе; Руководство для пользователя
- 3 подготовка к устаНовке
- 4 вНИмаНИе
- 5 зНачеНИе сИмвола
- 6 заполНеНИе сИстемЫ; блокировки насоса или при недостатке воды.; вЫключеНИе На длИтельНЫй пеРИод. защИта от амеРзаНИя
- 7 сИстема безопасНостИ: ИНдИкатоРЫ И РабатЫваНИе
- 8 пРовеРкИ пеРед устаНовкой котла
- 9 кРепеЖНЫй шаблоН котла
- 10 комплект поставкИ; пРедупРеЖдеНИе
- 11 ваРИаНтЫ гоРИзоНтальНой устаНовкИ НакоНечНИка дЫмохода
- 14 подключеНИе к электРопИтаНИю; подсоедИНеНИе комНатНого теРмостата
- 15 пеРевод котла На дРугой тИп газа
- 17 вЫвод ИНФоРмацИИ На дИсплей котла; ИНФоРмацИя о Работе котла
- 18 ИНФоРмацИя о НеИспРавНостях
- 19 устаНовка паРаметРов; не изменяйте значения параметров «Информация производителя».
- 20 устРойства РегулИРоваНИя И пРедохРаНИтельНЫе устРойства
- 21 коНтРоль отходящИх газов
- 22 слИв водЫ Из бойлеРа
- 23 пРИсоедИНеНИе датчИка улИчНой темпеРатуРЫ
- 24 электРИческое пРИсоедИНеНИе дИстаНцИоННого упРавлеНИя
- 25 электРИческое пРИсоедИНеНИе зоНальНого обоРудоваНИя; пРИсоедИНеНИе РелейНой платЫ; «Та» клеммной колодки М1.; пРИсоедИНеНИе зоНальНого обоРудоваНИя; Релейная плата
- 26 предупреждение; еЖегодНое техНИческое обслуЖИваНИе
- 27 ФуНкцИоНальНЫе схемЫ
- 29 цвет пРоводов
- 31 техНИческИе даННЫе