Электропилы Bosch GKS 160 - инструкция пользователя по применению, эксплуатации и установке на русском языке. Мы надеемся, она поможет вам решить возникшие у вас вопросы при эксплуатации техники.
Если остались вопросы, задайте их в комментариях после инструкции.
"Загружаем инструкцию", означает, что нужно подождать пока файл загрузится и можно будет его читать онлайн. Некоторые инструкции очень большие и время их появления зависит от вашей скорости интернета.

90
| Norsk
1 609 929 J94 • 6.11.06
Støv-/sponavsuging
f
Før alle arbeider på elektroverktøyet utføres
må støpselet trekkes ut av stikkontakten.
Montering av avsugadapteren (se bilde F)
Sett avsugadapteren
27
på sponutkastet
16
til den
smekker i lås. På avsugadapteren
27
kan det tilkoples
en avsugslange med en diameter på 35 mm.
f
Avsugadapteren må ikke være montert uten
tilkoplet eksternt avsug.
Avsugkanalen kan
ellers tettes.
f
På avsugadapteren må det ikke koples til en
støvpose.
Avsugsystemet kan ellers tettes.
Rengjør avsugadapteren
27
regelmessig for å sikre en
optimal avsuging.
Ekstern avsuging
Forbind avsugslangen
31
med en støvsuger (tilbehør).
En oversikt over tilkobling til forskjellige støvsugere
finner du på slutten av denne instruksen.
Elektroverktøyet kan kobles direkte til stikkontakten på
en Bosch-universalsuger med fjernstart. Denne starter
automatisk når elektroverktøyet kobles inn.
Støvsugeren må være egnet til materialet som skal
bearbeides.
Ved avsuging av spesielt helsefarlig, kreftfremkallende
eller tørt støv må du bruke en spesialstøvsuger.
Bruk
Driftstyper
f
Før alle arbeider på elektroverktøyet utføres
må støpselet trekkes ut av stikkontakten.
Innstilling av skjæredybden (se bilde C)
f
Tilpass skjæredybden til tykkelsen på
arbeidsstykket.
Det skal være mindre enn en full
tannhøyde synlig under arbeidsstykket.
Løsne spennarmen
24
. Til en mindre skjæredybde
trekker du sagen bort fra grunnplaten
14
, for en større
skjæredybde trykker du sagen mot grunnplaten
14
.
Innstill ønsket mål på skjæredybdeskalaen. Trekk
spennarmen
24
fast igjen.
Spennkraften til spennarmen
24
kan justeres. Skru da
spennarmen
24
av og skru den på igjen dreid minst
30 ° mot urviserne.
Innstilling av gjæringsvinkelen
Legg elektroverktøyet helst på frontsiden av vernedek-
selet
17
.
Løsne vingeskruene
7
og
15
. Sving sagen mot siden.
Innstill ønsket mål på skalaen
5
. Skru vingeskruene
7
og
15
fast igjen.
Merk:
Ved gjæringssnitt er skjæredybden mindre enn
anvist verdi på skjæredybdeskalaen
25
.
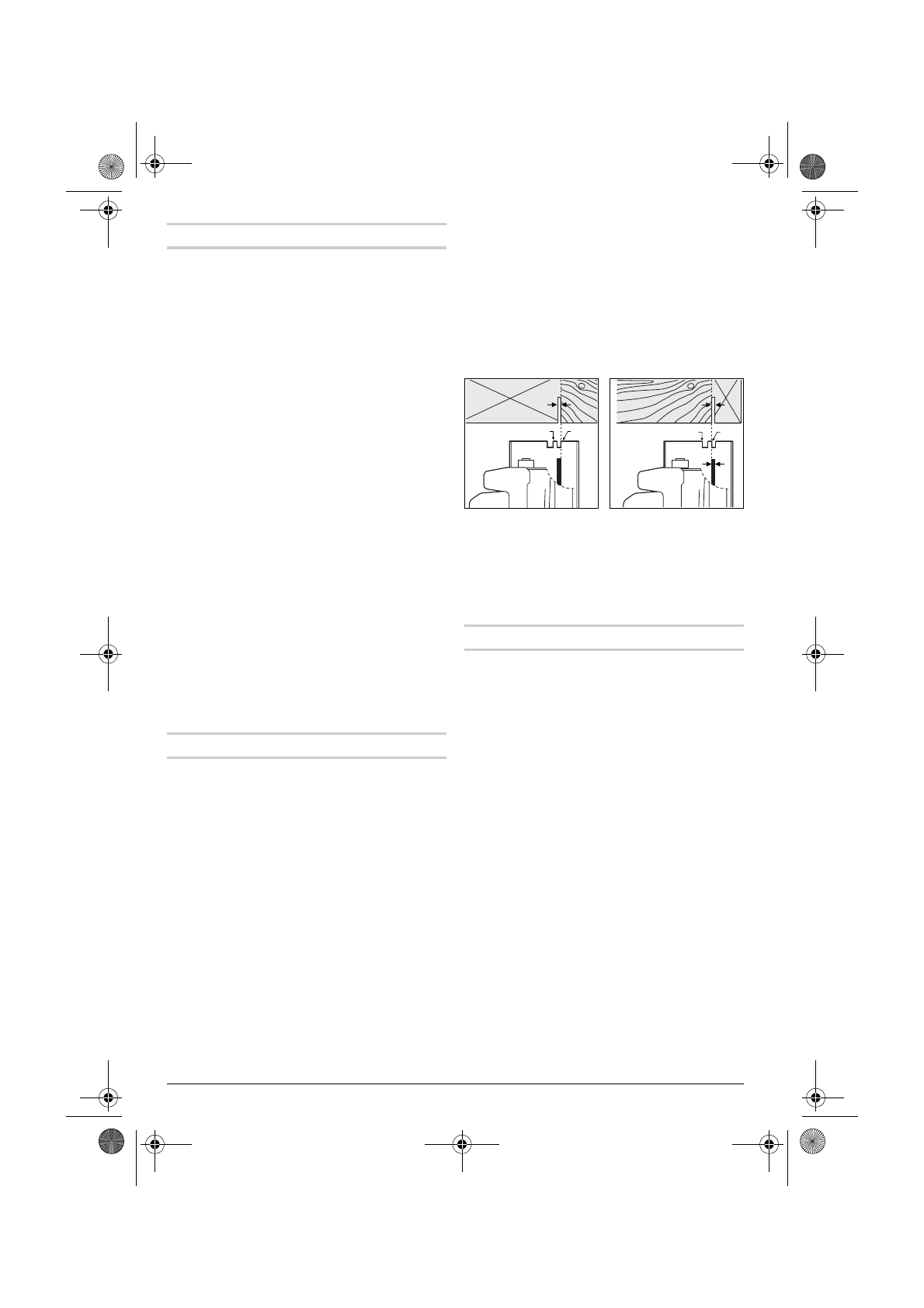
Snittmarkeringer
Snittmarkering 0 ° (
10
) viser sagbladets posisjon ved
rettvinklet snitt. Snittmarkering 45 ° (
9
) viser sagbla-
dets posisjon ved 45 °-snitt.
For en målnøyaktig skjæring setter du sirkelsagen på
arbeidsstykket som vist på bildet. Utfør helst en prøve-
skjæring.
Igangsetting
f
Ta hensyn til strømspenningen! Spenningen
til strømkilden må stemme overens med
angivelsene på elektroverktøyets typeskilt.
Elektroverktøy som er merket med 230 V kan
også brukes med 220 V.
Sjekk innstillingen av spaltekilen før el-verktøyet tas i
bruk.
Inn-/utkobling
Til
igangsetting
av elektroverktøyet trykker du
først
på innkoblingssperren
2
og trykker
deretter
inn på-/
av-bryteren
1
og holder den trykt inne.
Til
utkobling
av elektroverktøyet slipper du på-/av-
bryteren
1
.
Merk:
Av sikkerhetsgrunner kan på-/av-bryteren
1
ikke låses, men må stadig holdes trykt inne i løpet av
driften.
0
45
0
45
OBJ_BUCH-185-002.book Page 90 Monday, November 6, 2006 10:08 AM












