Электропилы Bosch GKS 160 - инструкция пользователя по применению, эксплуатации и установке на русском языке. Мы надеемся, она поможет вам решить возникшие у вас вопросы при эксплуатации техники.
Если остались вопросы, задайте их в комментариях после инструкции.
"Загружаем инструкцию", означает, что нужно подождать пока файл загрузится и можно будет его читать онлайн. Некоторые инструкции очень большие и время их появления зависит от вашей скорости интернета.

Türkçe
|
117
1 609 929 J94 • 6.11.06
Germe kolunun
24
germe kuvveti ayarlanabilir.
Bunu yapmak için germe kolunu
24
sökün ve saat
hareket yönünün tersine en az
ı
ndan 30 derece
kayd
ı
rarak tekrar s
ı
k
ı
n.
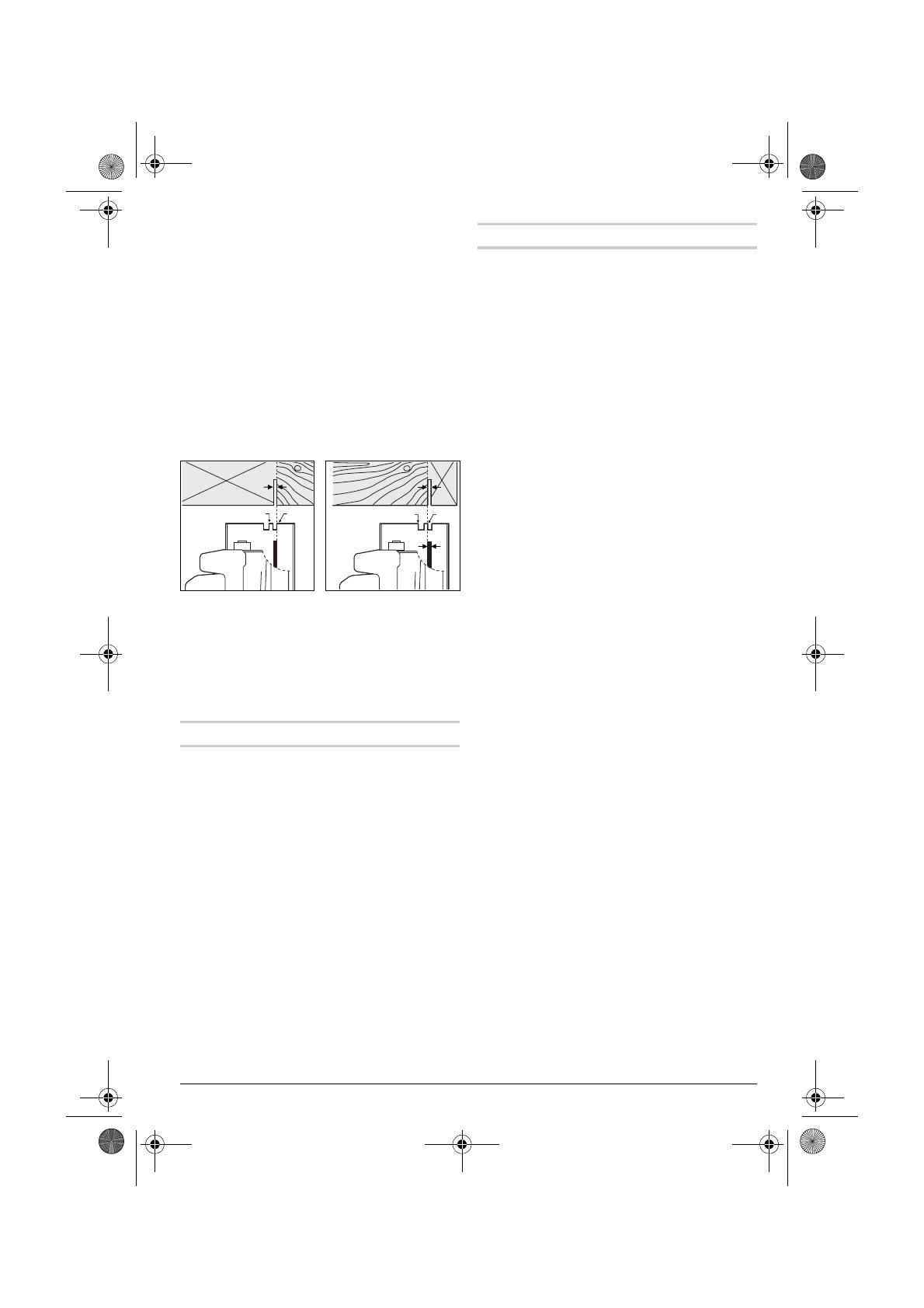
Gönye aç
ı
s
ı
n
ı
n ayarlanmas
ı
Elektrikli el aletini koruyucu kapa
ğ
ı
n
17
ön taraf
ı
na
yat
ı
r
ı
n.
Kelebek vidalar
ı
7
ve
15
gev
ş
etin. Testereyi yana
hareket ettirin.
İ
stedi
ğ
iniz ölçüyü skalada
5
ayarlay
ı
n. Kelebek vidalar
ı
7
ve
15
tekrar s
ı
k
ı
n.
Aç
ı
klama:
Gönyeli kesmelerde kesme derinli
ğ
i
kesme derinli
ğ
i skalas
ı
nda
25
gösterilen de
ğ
erden
daha dü
ş
üktür.
Kesme i
ş
aretleri
Kesme i
ş
areti 0
°
(
10
) dik aç
ı
l
ı
kesmede testere
b
ı
ça
ğ
ı
n
ı
n pozisyonunu gösterir. Kesme i
ş
areti 45
°
(
9
) testere b
ı
ça
ğ
ı
n
ı
n 45
°
-kesimdeki pozisyonunu
gösterir.
Tam ölçülü hassas kesme için daire testereyi i
ş
parças
ı
na
ş
ekilde gösterildi
ğ
i gibi yerle
ş
tirin. Bir
deneme kesmesi yapman
ı
z her zaman yararl
ı
d
ı
r.
Çal
ı
ş
t
ı
rma
f
Ş
ebeke gerilimine dikkat edin! Ak
ı
m
kayna
ğ
ı
n
ı
n gerilimi elektrikli el aletinin tip
etiketi üzerindeki verilere uygun olmal
ı
d
ı
r.
230 V ile i
ş
aretlenmi
ş
elektrikli el aletleri
220 V ile de çal
ı
ş
t
ı
r
ı
labilir.
Elektrikli el aletini çal
ı
ş
t
ı
rmadan önce yarma
kamas
ı
n
ı
n ayar
ı
n
ı
kontrol edin.
Açma/kapama
Elektrikli el aletini
çal
ı
ş
t
ı
rmak
için
önce
kapama/
ş
alteri emniyetine bas
ı
n
2
ve
sonra
açma
kapama
ş
alterine bas
ı
n ve açma/kapama
ş
alterini
1
bas
ı
l
ı
konumda tutun.
Elektrikli el aletini
kapamak
için açma/kapama
ş
alterini
1
b
ı
rak
ı
n.
Aç
ı
klama:
Güvenlik nedenleriyle açma/kapama
ş
alteri
1
kilitlenmemeli, çal
ı
ş
ma s
ı
ras
ı
nda hep bas
ı
l
ı
tutulmal
ı
d
ı
r.
Çal
ı
ş
ı
rken dikkat edilecek hususlar
Testere b
ı
ça
ğ
ı
n
ı
çarpma ve darbelerden koruyun.
Elektrikli el aletini kesme yönünde düzenli ve hafif 
bast
ı
rma kuvveti ile yönlendirin. Fazla bast
ı
rma
kuvvetinin uygulanmas
ı
ucun kullan
ı
m ömrünü
önemli ölçüde k
ı
salt
ı
r ve elektrikli el aletinin hasar
görmesine neden olabilir.
Kesme performans
ı
ve kesme kalitesi büyük ölçüde
testere b
ı
ça
ğ
ı
di
ş
lerinin biçimine ba
ğ
l
ı
d
ı
r. Bu
nedenle her zaman keskin ve i
ş
lenen malzemeye
uygun testere b
ı
çaklar
ı
kullan
ı
n.
Ah
ş
ab
ı
n kesilmesi
Testere b
ı
ça
ğ
ı
n
ı
n do
ğ
ru olarak seçilmesi ah
ş
ap
türüne, ah
ş
ap kalitesine ve yap
ı
lancak kesimin
uzunlamas
ı
na m
ı
yoksa enine mi yap
ı
laca
ğ
ı
na
ba
ğ
l
ı
d
ı
r.
Ladin malzeme kesilirken uzun ve helezonik 
tala
ş
lar ortaya ç
ı
kar.
Özellikle kay
ı
n ve me
ş
e tozlar
ı
sa
ğ
l
ı
ğ
a zararl
ı
d
ı
r, bu
nedenle bu malzemeyi i
ş
lerken toz emme tertibat
ı
kullan
ı
n.
Paralellik mesnedi ile kesme (Bak
ı
n
ı
z:
Ş
ekil D)
Paralellik mesnedi
11
i
ş
parças
ı
kenar
ı
boyunca
veya ölçülü
ş
erit biçimli hassas kesme i
ş
lemine
olanak sa
ğ
lar.
Kelebek viday
ı
8
gev
ş
etin ve paralellik mesnedi
11
skalas
ı
n
ı
taban levhas
ı
14
k
ı
lavuzuna itin.
İ
stedi
ğ
iniz kesme geni
ş
li
ğ
ini skala de
ğ
eri olarak
ilgili kesme i
ş
aretinde
10
veya
9
ayarlay
ı
n, bu
konuda bak
ı
n
ı
z bölüm “Kesme i
ş
aretleri
”
. Kelebek
viday
ı
8
tekrar s
ı
k
ı
n.
Yard
ı
mc
ı
dayamakla kesme (Bak
ı
n
ı
z:
Ş
ekil E)
Büyük i
ş
parçalar
ı
n
ı
i
ş
lemek veya düz kenarlar
ı
kesmek için i
ş
parças
ı
na bir tahta veya lata tespit
edebilirsiniz ve daire testerenin taban levhas
ı
n
ı
bu
yard
ı
mc
ı
dayamak boyunca hareket ettirebilirsiniz.
K
ı
lavuz rayla kesme (Bak
ı
n
ı
z:
Ş
ekil G – H)
K
ı
lavuz ray
29
yard
ı
m
ı
ile düz hatl
ı
kesme
yapabilirsiniz.
Kavray
ı
c
ı
kaplama k
ı
lavuz ray
ı
n kaymas
ı
n
ı
önler ve
i
ş
parças
ı
yüzeyini korur. K
ı
lavuz ray üzerindeki
kaplama elektrikli el aletinin kolayca kayd
ı
r
ı
lmas
ı
n
ı
sa
ğ
lar.
K
ı
lavuz raydak
ı
lastik uç tala
ş
koruma emniyeti
sa
ğ
lar ve ah
ş
ap malzeme i
ş
lenirken üst yüzeyin
çatlamas
ı
n
ı
veya çizilmesini önler. Bunun için
testere b
ı
ça
ğ
ı
di
ş
leri do
ğ
rudan lastik uca
dayanmal
ı
d
ı
r.
K
ı
lavuz rayla
29
çal
ı
ş
mak için k
ı
lavuz ray adaptörü
28
gereklidir. K
ı
lavuz ray adaptörü
28
paralellik
mesnedi
11
gibi tak
ı
l
ı
r.
0
45
0
45
OBJ_BUCH-185-002.book Page 117 Monday, November 6, 2006 10:08 AM
 
 
 
 
 
 
 
 
 
 
 
 
 
 
 
 
 
 
 
 
 
 
 
 
 
 
 
 
 
 
 
 
 
 
 
 
 
 
 
 
 
 
 
 
 
 
 
 
 
 
 
 
 
 
 
 
 
 
 
 
 
 
 
 
 
 
 
 
 
 
 
 
 
 
 
 
 
 
 
 
 
 
 
 
 
 
 
 
 
 
 
 
 
 
 
 
 
 
 
 
 
 
 
 
 
 
 
 
 
 
 
 
 
 
 
 
 
 
 
 
 
 
 
 
 
 
 
 
 
 
 
 
 
 
 
 
 
 
 
 
 
 
 
 
 
 
 
 
 
 
 
 
 
 
 
 
 
 
 
 
 
 
 
 
 
 
 
 
 
 
 
 
 
 
 
 
 
 
 
 
 
 
 
 
 
 
 
 
 
 
 
 
 
 
 
 
 
 
 
 
 
 
 
 
 
 
 
 
 
 
 
 
 
 
 
 
 
 
 
 
 
 
 
 
 
 
 
 
 
 
 
 
 
 
 
 
 
 
 
 
 
 
 
 
 











