Электропилы Bosch GKS 160 - инструкция пользователя по применению, эксплуатации и установке на русском языке. Мы надеемся, она поможет вам решить возникшие у вас вопросы при эксплуатации техники.
Если остались вопросы, задайте их в комментариях после инструкции.
"Загружаем инструкцию", означает, что нужно подождать пока файл загрузится и можно будет его читать онлайн. Некоторые инструкции очень большие и время их появления зависит от вашей скорости интернета.

Română
|
179
1 609 929 J94 • 6.11.06
Reglajul se face la adâncimea de tăiere minimă,
vezi
„
Reglarea adâncimii de tăiere
“
, pagina 179.
Cel mai bine așezaţi scula electrică pe latura
frontală a apărătorii
17
.
Detensionaţi maneta de strângere
24
, depărtaţi
ferăstrăul de talpa de fixare
14
și tensionaţi din nou
maneta de strângere
24
.
Slăbiţi șurubul
23
, reglaţi pana de despicat
13
la
cota indicată în figură și strângeţi șurubul
23
cu un
moment de strângere de
8 – 9
Nm.
Demontarea/montarea penei de despicat
Pentru demontarea penei de despicat
13
deșurubaţi șurubul
23
și îndepărtaţi pana de
despicat
13
.
Pentru montare, introduceţi pana de despicat
13
și
fixaţi-o cu șurubul
23
. Verificaţi apoi reglajul penei
de despicat, conform celor descrise anterior.
Aspirarea prafului/așchiilor
f
Înaintea oricăror intervenţii asupra sculei
electrice scoateţi cablul de alimentare afară
din priză.
Montarea adaptorului de aspirare (vezi figura F)
Montaţi adaptorul de aspirare
27
pe evacuarea
așchiilor
16
și lăsaţi-l să se înclicheteze. La
adaptorul de aspirare
27
se poate racorda un
furtun de aspirare cu diametrul de 35 mm.
f
Nu este permisă montarea adaptorului de
aspirare fără racordarea prealabilă la o
instalaţie exterioară de aspirare a prafului.
În
caz contrar canalul de aspirare s-ar putrea
bloca.
f
Nu este permisă racordarea unui sac
colector de praf la adaptorul de aspirare.
În
caz contrar sistemul de aspirare s-ar putea
bloca.
Pentru asigurarea unei aspirări optime, adaptorul
de aspirare
27
trebuie curăţat regulat.
Aspirare cu instalaţie exterioară
Racordaţi furtunul de aspirare
31
la un aspirator de
praf (accesoriu). La sfârșitul prezentelor instrucţiuni
găsiţi o listă a aspiratoarelor de praf la care se
poate face racordarea.
Scula electrică poate fi racordată direct la priza
unui aspirator universal Bosch cu pornire prin
telecomandă. Acesta pornește automat în
momentul pornirii sculei electrice.
Aspiratorul de praf trebuie să fie adecvat pentru
materialul de prelucrat.
Pentru aspirarea pulberilor extrem de nocive,
cancerigene sau uscate, folosiţi un aspirator
special.
Funcţionare
Moduri de funcţionare
f
Înaintea oricăror intervenţii asupra sculei
electrice scoateţi cablul de alimentare afară
din priză.
Reglarea adâncimii de tăiere (vezi figura C)
f
Adaptaţi adâncimea de tăiere la grosimea
piesei de lucru.
Sub piesa de lucru ar trebui să
se poată vedea mai puţin decât înălţimea
întreagă a unui dinte.
Detensionaţi maneta de strângere
24
. Pentru o
adâncime de tăiere mai mică depărtaţi ferăstrăul de
talpa de fixare
14
, iar pentru o adâncime de tăiere
mai mare împingeţi ferăstrăul spre talpa de fixare
14
. Reglaţi cota dorită pe scala adâncimilor de
tăiere. Tensionaţi din nou maneta de strângere
24
.
Forţa de pretensionare a manetei de strângere
24
poate fi reajustată. În acest scop deșurubaţi
maneta de strângere
24
și fixaţi-o din nou prin
înșurubare după ce aţi deplasat-o cu cel puţin 30
°
în sens contrar mișcării acelor de ceasornic.
Reglarea unghiului de înclinare
Cel mai bine așezaţi scula electrică pe latura
frontală a apărătorii
17
.
Slăbiţi șuruburile-fluture
7
și
15
. Basculaţi lateral
ferăstrăul. Reglaţi cota dorită pe scala
5
. Înșurubaţi
din nou strâns șuruburile-fluture
7
și
15
.
Indicaţie:
La tăierile oblice, adâncimea de tăiere
este inferioară valorii indicate pe scala adâncimilor
de tăiere
25
.
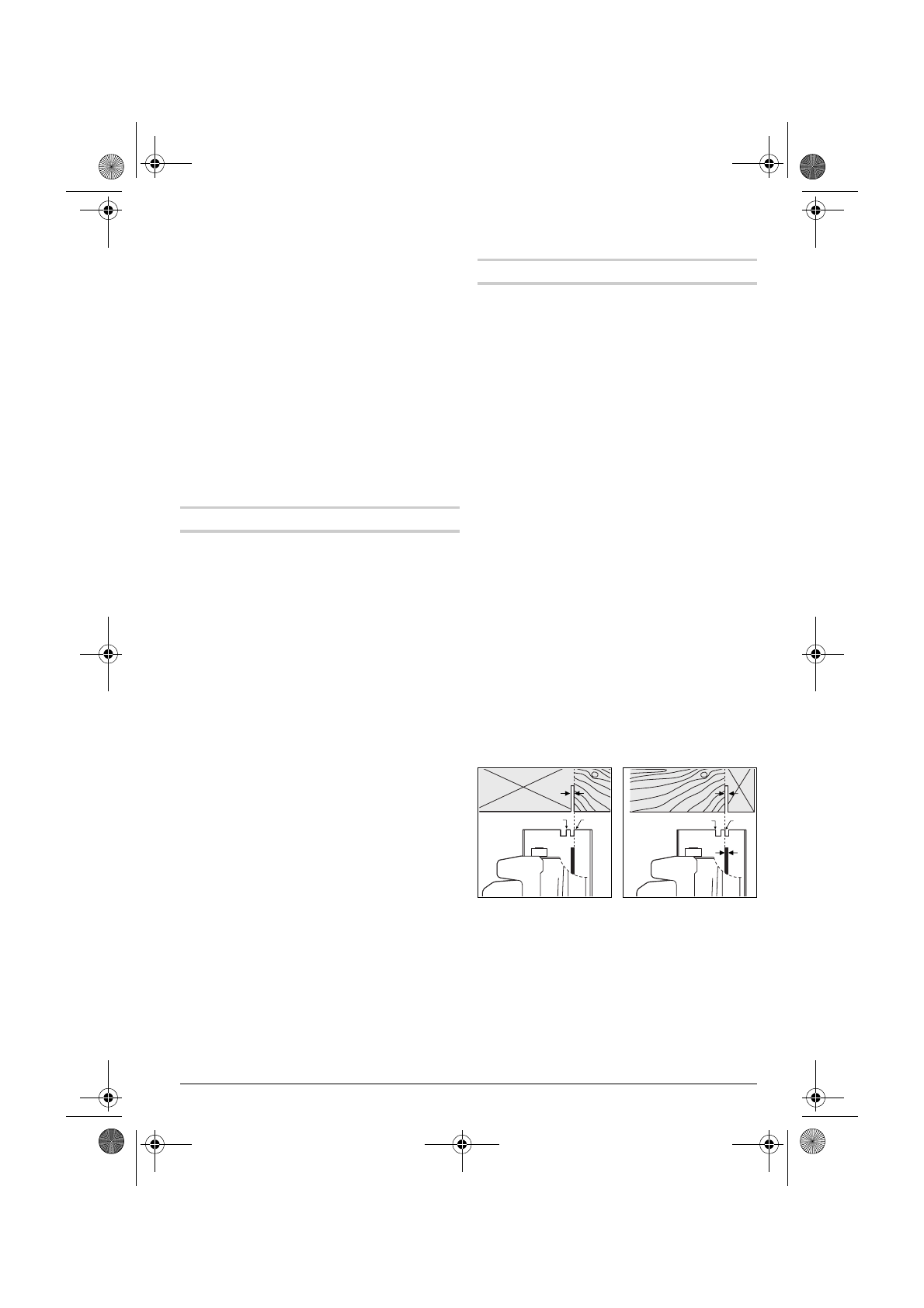
Marcaje ale adâncimilor de tăiere
Marcajul de tăiere la 0
°
(
10
) indică poziţia pânzei de
ferăstrău la tăierea în unghi drept. Marcajul de
tăiere la 45
°
(
9
) indică poziţia pânzei de ferăstrău
pentru tăierea la 45
°
.
În vederea tăierii la dimensiuni exacte, puneţi
ferăstrăul pe piesa de lucru, conform figurii. Cel mai
bine executaţi o tăiere de probă.
0
45
0
45
OBJ_BUCH-185-002.book Page 179 Monday, November 6, 2006 10:08 AM












