Электропилы Bosch GKS 160 - инструкция пользователя по применению, эксплуатации и установке на русском языке. Мы надеемся, она поможет вам решить возникшие у вас вопросы при эксплуатации техники.
Если остались вопросы, задайте их в комментариях после инструкции.
"Загружаем инструкцию", означает, что нужно подождать пока файл загрузится и можно будет его читать онлайн. Некоторые инструкции очень большие и время их появления зависит от вашей скорости интернета.

48
| Português
1 609 929 J94 • 6.11.06
Soltar a alavanca de aperto
24
e puxar a serra da
placa de base
14
e reapertar novamente a alavanca
de aperto
24
.
Soltar o parafuso
23
, ajustar a cunha abridora
13
na
medida indicada na figura e apertar o parafuso
23
com um binário de aperto de 8 – 9 Nm.
Desmontar e montar a cunha abridora
Para desmontar a cunha abridora
13
deverá desatar-
raxar o parafuso
23
e remover a cunha abridora
13
.
Para a montagem, deverá introduzir a cunha abridora
13
e fixá-la com o parafuso
23
. Em seguida deverá
controlar o ajuste da cunha abridora, como descrito
anteriormente.
Aspiração de pó/de aparas
f
Antes de todos trabalhos na ferramenta
eléctrica deverá puxar a ficha de rede da
tomada.
Montar o adaptador de aspiração (veja figura F)
Encaixar o adaptador de aspiração
27
na expulsão de
aparas
16
, até engatar. Ao adaptador de aspiração
27
pode ser conectada uma mangueira de aspiração
com um diâmetro de 35 mm.
f
O adaptador de aspiração não deve ser mon-
tado sem que haja uma aspiração externa
conectada.
Caso contrário o canal de aspiração
pode ser obstruído.
f
Sacos de pó não devem ser conectados ao
adaptador de aspiração.
Caso contrário, o sis-
tema de aspiração pode ser obstruído.
Para assegurar uma aspiração optimizada, é necessá-
rio que o adaptador de aspiração
27
seja limpo em
intervalos regulares.
Aspiração alheia
Conectar a mangueira de aspiração
31
a um aspira-
dor de pó (acessório). Uma vista geral sobre a cone-
xão a diversos aspiradores de pó encontram-se no
final desta instrução de serviço.
A ferramenta eléctrica pode ser conectada directa-
mente à tomada de um aspirador universal Bosch
com dispositivo automático de ligação à distância. O
aspirador é ligado automaticamente, assim que a fer-
ramenta eléctrica for ligada.
O aspirador de pó deve ser apropriado para o material
a ser trabalhado.
Utilizar um aspirador especial para aspirar pó que seja
extremamente nocivo à saúde, cancerígeno ou seco.
Funcionamento
Tipos de funcionamento
f
Antes de todos trabalhos na ferramenta
eléctrica deverá puxar a ficha de rede da
tomada.
Ajustar a profundidade de corte (veja figura C)
f
Adaptar a profundidade de corte à espes-
sura da peça a ser trabalhada.
Deveria estar
visível, menos do que uma completa altura de
dente por debaixo da peça a ser trabalhada.
Soltar a alavanca de aperto
24
. Para uma menor pro-
fundidade de corte, deverá puxar a lâmina de serra da
placa de base
14
, para maiores profundidades de
corte, deverá premir a lâmina de serra na direcção da
placa de base
14
. Ajustar a medida desejada na
escala de profundidade de corte. Reapertar a ala-
vanca de aperto
24
.
A força de aperto da alavanca de aperto
24
pode ser
reajustada. Para tal, deverá desatarraxar a alavanca
de aperto
24
, deslocá-la no mínimo 30 ° no sentido
contrário dos ponteiros do relógio, e fixá-la.
Ajustar ao ângulo de chanfradura
É recomendável colocar a ferramenta eléctrica sobre
o lado da frente da cobertura de protecção
17
.
Soltar os parafusos de orelhas
7
e
15
. Deslocar late-
ralmente a lâmina de serra. Ajustar a medida desejada
na escala
5
. Reapertar as porcas de orelhas
7
e
15
.
Nota:
Em cortes de meia-esquadria, a profundidade
de corte é menor do que o valor indicado na escala de
profundidade de corte
25
.
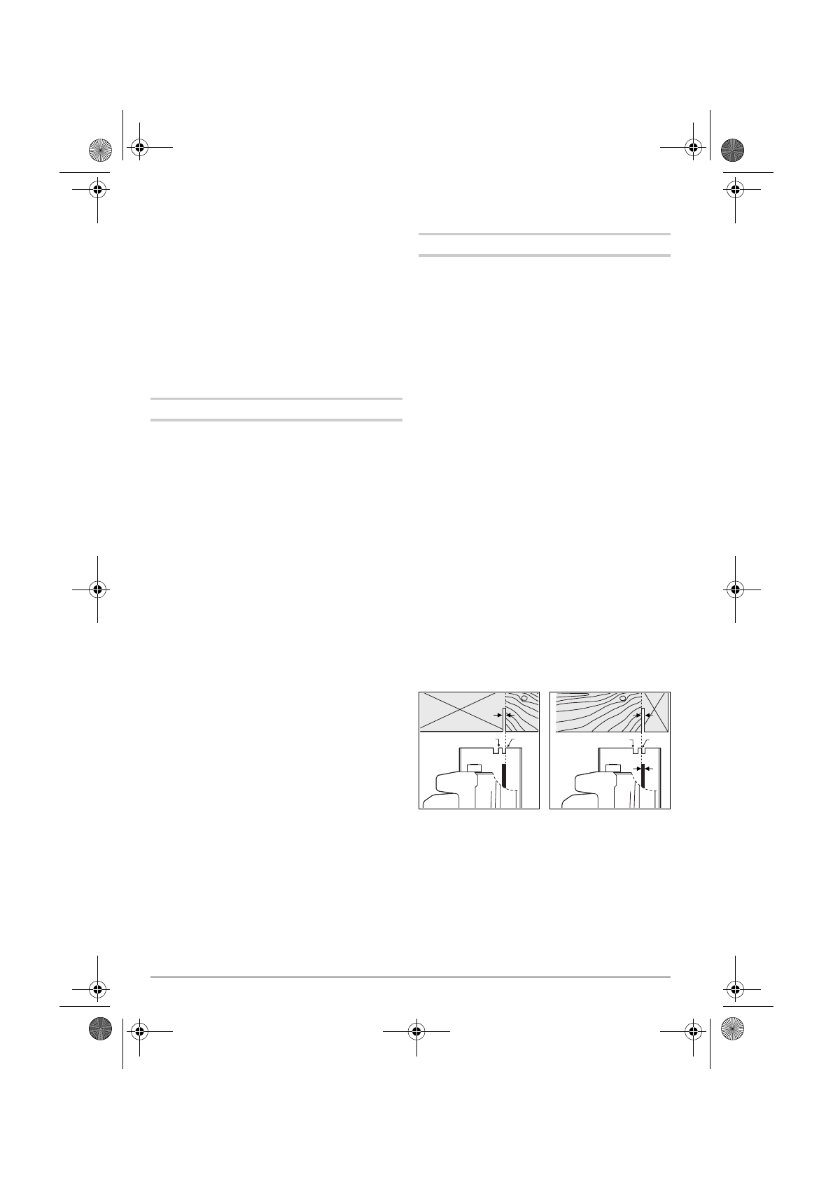
Marcações de corte
A marcação de corte de 0 ° (
10
) indica a posição da
lâmina de serra para cortes perpendiculares. A marca-
ção de corte de 45 ° (
9
) indica a posição da lâmina de
corte para cortes de 45 °.
Para um corte exacto, deverá colocar a lâmina de
corte sobre a peça, como indicado na figura. Execu-
tar, de preferência, um corte de ensaio.
0
45
0
45
OBJ_BUCH-185-002.book Page 48 Monday, November 6, 2006 10:08 AM












