Духовые шкафы Samsung NV75T9979CD - инструкция пользователя по применению, эксплуатации и установке на русском языке. Мы надеемся, она поможет вам решить возникшие у вас вопросы при эксплуатации техники.
Если остались вопросы, задайте их в комментариях после инструкции.
"Загружаем инструкцию", означает, что нужно подождать пока файл загрузится и можно будет его читать онлайн. Некоторые инструкции очень большие и время их появления зависит от вашей скорости интернета.

Русский 9
Ус
тановк
а
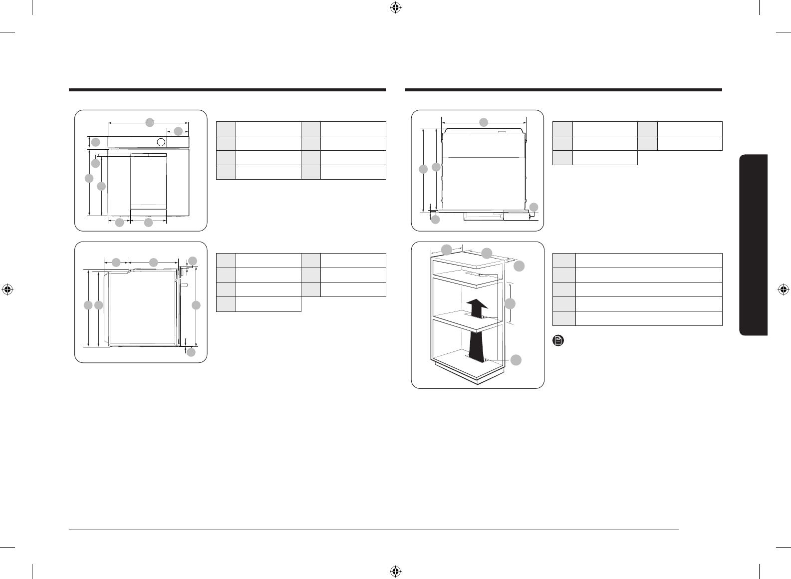
C
A
B
D
E
Духовой шкаф (мм)
A
560
D
21
B
549
E
50
C
570
D
C
B
A
E
Отсек встроенной мебели (мм)
A
Мин. 550
B
Мин. 560
C
Мин. 50
D
Мин. 590 – макс. 600
E
Мин. 460 x мин. 50
ПРИМЕЧАНИЕ
Во встроенном шкафу должны быть предусмотрены
вентиляционные отверстия
(E)
, обеспечивающие отвод
тепла и циркуляцию воздуха.
C
B
H
G
D
E
F
A
Духовой шкаф (мм)
A
595
E
439
B
163
F
22
C
85
G
165
D
495,5
H
264
F
A B
C
D
E
G
Духовой шкаф (мм)
A
579
E
17
B
559
F
596
C
177
G
7
D
372
NV75T9979CD_WT_DG68-01396A-01_RU.indd 9
NV75T9979CD_WT_DG68-01396A-01_RU.indd 9
2021-09-29 오후 5:18:43
2021-09-29 오후 5:18:43
Содержание
- 2 Содержание
- 3 Инструкции по технике безопасности; Важные меры предосторожности; Использование руководства; В данном руководстве используются следующие обозначения
- 6 Функция автоматической экономии энергии
- 7 Установка; Комплектация
- 8 Установка в отсек кухонной мебели; Подключение к источнику питания
- 11 Подготовка к использованию; Панель управления
- 12 Начальные установки
- 13 Запах нового духового шкафа; Интеллектуальная система безопасности
- 14 Принадлежности
- 15 Емкость для воды
- 16 Использование; Режимы духового шкафа
- 18 Режимы приготовления с применением пара
- 20 Режимы двойного приготовления
- 23 Специальная функция
- 25 Автоматическое приготовление; Функция Healthy cook (только для соответствующих моделей)
- 26 Избранное
- 27 Таймер
- 28 Очистка
- 30 Настройки
- 31 Блокировать
- 32 Рекомендации по приготовлению; Приготовление вручную
- 40 Программы режима Автоматическое приготовление
- 49 Пробные блюда
- 54 Обслуживание
- 57 Замена
- 58 Устранение неисправностей; Контрольные пункты
- 60 Информационные коды
- 61 Технические характеристики
- 62 Приложение
- 63 Уведомление о ПО с открытым исходным кодом; Заметки
Характеристики
Остались вопросы?Не нашли свой ответ в руководстве или возникли другие проблемы? Задайте свой вопрос в форме ниже с подробным описанием вашей ситуации, чтобы другие люди и специалисты смогли дать на него ответ. Если вы знаете как решить проблему другого человека, пожалуйста, подскажите ему :)