Водонагреватели Gorenje GBK120RNB6 - инструкция пользователя по применению, эксплуатации и установке на русском языке. Мы надеемся, она поможет вам решить возникшие у вас вопросы при эксплуатации техники.
Если остались вопросы, задайте их в комментариях после инструкции.
"Загружаем инструкцию", означает, что нужно подождать пока файл загрузится и можно будет его читать онлайн. Некоторые инструкции очень большие и время их появления зависит от вашей скорости интернета.

62
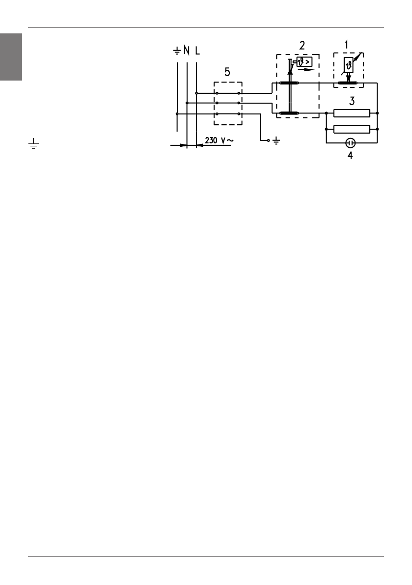
Elementi:
1 – termostats
2 – bimetāliskais drošinātājs
3 – sildīšanas elementi
( 2 x 1000 W)
4 – kontroles spuldzīte
5 – pievienošanas skava
L – fāzes vads
N – neitrālais vads
- zemējuma vads
LIETOŠANA UN APKOPE
Ūdens sildītāju var lietot pēc tā pieslēgšanas ūdensvadam un elektrotīklam. Aizsargvāka priekšējā
pusē atrodas termostata rokturis, ar kura palīdzību Jūs varat iestatīt vēlamo temperatūru no 25° līdz
75°C. Ieteicams šo rokturi pagriezt “E” stāvoklī. Tāda iestatīšana ir visekonomiskākā; ūdens tiks
sasildīts līdz apmēram 55°C, kaļķu nogulsnējumi un siltuma zudumi būs mazāki, nekā pie augstākas
temperatūras iestatīšanas.
Elektriskā ūdens sildītāja darbības indikators ir kontroles spuldzīte.
Ja Jūs neplānojiet lietot ūdens sildītāju ilgāku laiku, to var aizsargāt pret aizsalšanu šādā veidā:
atstājiet to pieslēgtu elektrotīklam, bet termostata rokturi pagrieziet “*” stāvoklī. Šajā termostata
roktura stāvoklī sildītājs uzturēs ūdens temperatūru ap 10°C. Ja Jūs atvienojiet ūdens sildītāju no
elektrotīkla, no tā jānolaiž ūdens, lai novērstu tā aizsalšanu, šim nolūkam atvienojot zilo īscauruli no
ūdensvada tīkla.
Pirms ūdens nolaišanas sildītājs obligāti jāatslēdz no elektrotīkla. Pēc tam pagrieziet siltā ūdens
rokturi uz viena no maisītājkrāniem, kas ir pievienots sildītājam. Nolaidiet ūdeni no sildītāja caur tā
ieplūdes cauruli. Šim nolūkam ieteicams iemontēt starp drošības vārstu un ieplūdes cauruli attiecīgu
izplūdes vārstu vai T-veida savienojumu. Pretējā gadījumā Jūs varat iztukšot sildītāju arī caur drošības
vārsta izplūdes atveri, šim nolūkam pagriežot sviru vai vārsta rotējošo galviņu tādā pašā stāvoklī kā
pie vārsta pārbaudes. Pēc ūdens nolaišanas caur ieplūdes cauruli sildītājā vēl paliks neliels ūdens
daudzums, kuru var nolaist noņemot sildītāja apakšējo atloku.
Ūdens sildītāja ārējas daļas jātīra ar vāju mazgāšanas līdzekļa šķīdumu. Nekādā gadījumā
neizmantojiet nekādus šķīdinātājus un agresīvas tīrīšanas vielas.
Ieteicam regulāri veikt ūdens sildītāja apskates. Tādā veidā Jūs nodrošināsiet tā nevainojamu darbību
un ilgu darba mūžu. Pirmā apskate jāveic apmēram divus gadus pēc sildītāja lietošanas uzsākšanas.
Šī apskate jāveic pilnvarotam speciālistam, kas pārbaudīs pretkorozijas aizsardzības anoda stāvokli,
nepieciešamības gadījumā notīrīs kaļķu nogulsnējumu, kas var uzkrāties uz sildītāja iekšējās virsmas
atkarībā no ūdens kvalitātes, daudzuma un temperatūras. Vadoties no Jūsu ūdens sildītāja stāvokļa,
servisa dienests pēc apskates paveikšanas sniegs Jums ieteikumu par nākamās apskates laiku.
Lūdzu, nemēģiniet izremontēt ūdens sildītāju patstāvīgi, bet obligāti izsauciet servisa dienesta
darbinieku.
LVL
Содержание
- 11 Уважаемый покупатель, благодарим Вас за покупку нашего изделия.; монтдж; ТЕХНИЧЕСКИЕ ХАРАКТЕРИСТИКИ АППАРАТА; входящей температуре холодной воды из водопровода 15°C.; ТЕХНИЧЕСКИЕ ХАРАКТЕРИСТИКИ ТЕПЛООБМЕННИКА; US
- 12 Соединительные и монтажные размеры водонагревателя [мм]; ПОДКЛЮЧЕНИЕ K ВОДОПРОВОДУ; от выбранной системы подключения. B открытой проточной системе
- 13 ПОДKЛЮЧЕНИЕ K ЭЛЕКТРОСЕТИ
- 14 ИСПОЛЬЗОВАНИЕ И УХОД













