Водонагреватели Gorenje GBK120RNB6 - инструкция пользователя по применению, эксплуатации и установке на русском языке. Мы надеемся, она поможет вам решить возникшие у вас вопросы при эксплуатации техники.
Если остались вопросы, задайте их в комментариях после инструкции.
"Загружаем инструкцию", означает, что нужно подождать пока файл загрузится и можно будет его читать онлайн. Некоторые инструкции очень большие и время их появления зависит от вашей скорости интернета.

53
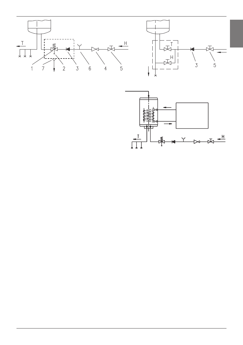
Zamknięty system (ciśnieniowy)
Otwarty system (nieciśnieniowy)
Legende:
1 - Zawór bezpieczeństwa
2 - Zawór próbny
3 - Zawór zwrotny
4 - Zawór redukcyjny ciśnienia
5 - Zawór odcinający
6 - Nadstawka próbna
7 - Lejek z przyłączem do zlewu
H - Woda zimna
T - Woda ciepła
Kombinowany podgrzewacz wody GBK działa tak samo jak elektryczny podgrzewacz wody GB, z tą różnicą, że posiada
on dodatkowo wbudowany wymiennik ciepła, służący do podgrzewania wody sanitarnej za pomocą innych źródeł
energii (jak nprz.: ogrzewanie centralne, kolektory słoneczne lub pompa cieplna). Systemy ogrzewania wyposażone
w grzałkę i wymiennik ciepła mogą działać równocześnie lub oddzielnie. Kombinowany podgrzewacz wody można
podłączyć do instalacji wodociągowej w taki sam sposób jak zwykły podgrzewacz wody GB, z tym że kombinowany
podgrzewacz wody zostaje jeszcze dodatkowo podłączony do innego źródła energii. Wejście czynnika grzewczego do
wymiennika ciepła jest koloru czerwonego, natomiast wyjście koloru niebieskiego.
Podgrzewacze wody GBK można podłączyć również do przewodu powrotnego ciepłej wody. Przewód powrotny wody
ciepłej umożliwia, że jest ona od razu dostępna na wszystkich miejscach poboru wody. Przewód powrotny należy
zamontować w górnej części podgrzewacza. Przed zamontowaniem należy usunąć plastykową zaślepkę i odkręcić
korek uszczelniający znajdujący się w górnej części podgrzewacza. Części przewodu powrotnego są do nabycia w
sklepach upoważnionych do sprzedaży naszych wyrobów.
PODŁĄCZENIE DO INSTALACJI ELEKTRYCZNEJ
Przed podłączeniem podgrzewacza do sieci elektrycznej należy wbudować do niego kabel podłączeniowy. W tym celu
należy zdjąć plastykową pokrywę zabezpieczającą. Chcąc usunąć osłonę plastykową podgrzewacza należy najpierw
usunąć płytkę znajdującą się z przedniej strony osłony. Płytkę usuwa się w ten sposób, że delikatnie wkładamy śrubokręt
zarówno w szczelinę znajdującą się między płytką i osłoną plastykową przy pokrętle termoregulatora jak i po przeciwnej
stronie pokrętła. Zwalniając płytkę z obydwu stron można ją usunąć palcami. Aby płytkę w zupełności zwolnić należy
usunąć pokrętło termoregulatora i odkręcić obydwie śruby.
Proces założenia plastykowej płytki, przebiega w odwrotnej kolejności.
Podłączenie podgrzewacza do instalacji elektrycznej musi odpowiadać wymogom określonym przez standardy dotyczące
instalacji elektrycznej. Ponieważ podgrzewacz nie posiada elementu, który umożliwiałby jego stałe wyłączenie z
instalacji elektrycznej, musimy pomiędzy nim a stałą domową instalacją elektryczną, zamontować taki przełącznik,
który przerywa oba bieguny zasilania. Odległość pomiędzy jego otwartymi kontaktami musi wynosić przynajmniej 3
mm.
Przewód powrotny
Żródło zasilania
PL
Содержание
- 11 Уважаемый покупатель, благодарим Вас за покупку нашего изделия.; монтдж; ТЕХНИЧЕСКИЕ ХАРАКТЕРИСТИКИ АППАРАТА; входящей температуре холодной воды из водопровода 15°C.; ТЕХНИЧЕСКИЕ ХАРАКТЕРИСТИКИ ТЕПЛООБМЕННИКА; US
- 12 Соединительные и монтажные размеры водонагревателя [мм]; ПОДКЛЮЧЕНИЕ K ВОДОПРОВОДУ; от выбранной системы подключения. B открытой проточной системе
- 13 ПОДKЛЮЧЕНИЕ K ЭЛЕКТРОСЕТИ
- 14 ИСПОЛЬЗОВАНИЕ И УХОД













