Водонагреватели Gorenje GBK120RNB6 - инструкция пользователя по применению, эксплуатации и установке на русском языке. Мы надеемся, она поможет вам решить возникшие у вас вопросы при эксплуатации техники.
Если остались вопросы, задайте их в комментариях после инструкции.
"Загружаем инструкцию", означает, что нужно подождать пока файл загрузится и можно будет его читать онлайн. Некоторые инструкции очень большие и время их появления зависит от вашей скорости интернета.

29
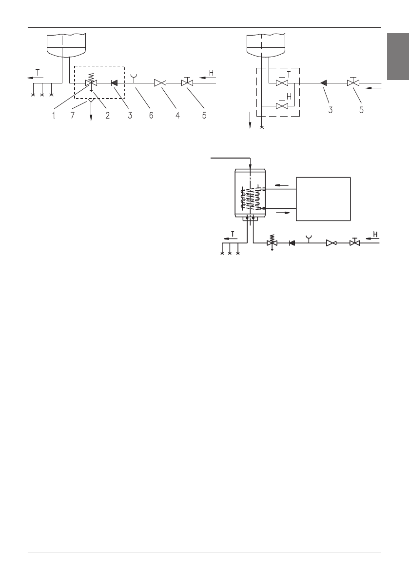
Ключ:
1 - Защитна клала
2 - Клала за тестване
3 - Клала бe з връщане
4 - Клала за намаляване
на налягането
5 - Спираща клала
6 - Част за тестване
7 - Фуния за изхода
H - Студена вода
T - Топла вода
Затворена (под налягане) система
Отворена (гравитационна) система
Комбинирания бойлер GBK работы по същия начин като електрическия GB, като е свързан със
превключващо устройство за студената вода, коего позволява подаване на вода от алтернативни
източници (например, централно парно отопление, цоларни батерии или котле). Двете системы за
затопляне - електрическо загряване и с превключване - могат да работяг по отделно или конкурентно.
Връзката към източника за вода е решена по същия начин като за бойлерите модел е GB, но трябва да
бъде направена връзка и към допълнителния източник на енергия. Входът към превключвателя е оцветен
в синьо, а към изхода в червено. GBK бойлерите могат да бъдат свързани към тръбата на топлата вода.
Свързването към тазы тръба позволява топлата вода да бъде достъпна едновременно във всички точки.
Тазы тръба може да бъде на входа на бойлера и се поставя след свалянето на пласмасовото калаче и
развинтване на стопера. Този елемент за водопроводнта тръба може да бъде купен от всеки оторизиран
дилър на нашите стоки.
ЕЛЕКТРИЧЕСКА ВРЪЗКА
Преди бойлерът да се свърже към електрическата мрежа, трябва да бъде поставен кабел. За целта
трябва да махнете плочката, която се намира от предната страна на пластмасовото калаче. След като
плочката се освободи, в процепа между нея и защитная капан може да бъде пъхната отверка първо от
страната на термостата, а след тога и от противоположната. Когато плочката бъде освободена от двете
страны, тя се сваля с ръка. За да бъде свалена пластмасовата капачка,трябва да бъде свалено копчето
на термостата и да бъдат развиты двата фиксиращи винта. Смяната на пластмасовия капан се правы в
обратен ред.
Връзката с електрическата мрежа трябва да бъде направена съгласно съответстващите стандарты.
Бойлерът няма вграден компонент, който да го отделя от електрическата мрежа, затова се препоръчва
монтиране на ключ, който да спира електричеството към бойлера.
Zpětné vedení
Energetické zdroje
BG
Содержание
- 11 Уважаемый покупатель, благодарим Вас за покупку нашего изделия.; монтдж; ТЕХНИЧЕСКИЕ ХАРАКТЕРИСТИКИ АППАРАТА; входящей температуре холодной воды из водопровода 15°C.; ТЕХНИЧЕСКИЕ ХАРАКТЕРИСТИКИ ТЕПЛООБМЕННИКА; US
- 12 Соединительные и монтажные размеры водонагревателя [мм]; ПОДКЛЮЧЕНИЕ K ВОДОПРОВОДУ; от выбранной системы подключения. B открытой проточной системе
- 13 ПОДKЛЮЧЕНИЕ K ЭЛЕКТРОСЕТИ
- 14 ИСПОЛЬЗОВАНИЕ И УХОД













