Варочная панель Gorenje ECT 330 KR - инструкция пользователя по применению, эксплуатации и установке на русском языке. Мы надеемся, она поможет вам решить возникшие у вас вопросы при эксплуатации техники.
Если остались вопросы, задайте их в комментариях после инструкции.
"Загружаем инструкцию", означает, что нужно подождать пока файл загрузится и можно будет его читать онлайн. Некоторые инструкции очень большие и время их появления зависит от вашей скорости интернета.

24
LOCATION OF THE HOB
МЕСТОПОЛОЖЕНИЕ
НА
ПЛОТА
POLOŽAJ GREJNE PLO
Č
E
УСТАНОВКА
ПЛИТЫ
1. Sealing
2. Fastening
element
3. Rear
wall
4. Side
walls
1.
Уплътнение
2.
Закрепващи
скоби
3.
Задна
стена
4.
C
тена
от
ляво
или
дясно
1. Tesnjenje
2. Pritrdlina
objemka
3. Zadnja
stena
4. Stranske
stene
1.
Уплътнение
2.
C
оединение
3.
Задние
стенка
4.
Боков
oe
стенки
The appliance must be installed in
accordance with valid local
regulations.
x
All installation, servicing and
maintenance work should be carried
out by competent personnel, and
should comply with above mentioned
standards.
x
Appliance is suppose to be install in
openning in working desk of minimum
thickness of 30 mm with temperature
resistant coating on the top.
x
Working plate should be in horisontal
position and its part near the wall
must be sealed against penetration of
liquids.
x
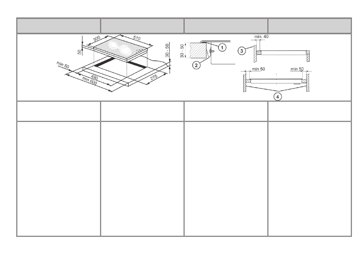
Dimensions of opening are on fig.
x
Safety dimensions of hob from walls
and furniture as well as placing of
partition under hob are mentioned on
fig.
x
Surface after cutting of opening
protect by silicon glue against
Уредът
трябва
да
бъде
инсталиран
в
съответствие
с
действащите
в
страната
стандарти
.
x
Уреда
трябва
да
се
инсталира
в
отвора
на
кухненски
плот
с
минимална
дебелина
30
мм
,
с
топлоустойчивото
покритие
отгоре
.
x
Работната
повърхност
трябва
да
е
в
хоризонтална
позиция
и
тези
части
,
които
са
в
близост
до
стени
трябва
да
се
уплътнят
против
проникване
на
течности
.
x
Размерите
на
отвора
са
показани
на
Фиг
.
x
Размерите
за
поставяне
на
плота
в
близост
до
стени
или
мебели
,
както
и
за
преградата
под
плота
са
показани
на
фиг
.
x
След
изрязване
уплътнете
отвора
със
силикон
,
против
влага
.
x
Ако
има
фурна
под
плота
не
е
необходимо
да
поставяте
преграда
.
x
Фурни
,
които
имат
вертикално
Instalaciju može obavljati samo firma
za isto ovlaš
ć
ena i mora biti izvedena
u skladu sa nacionalnim normama i
propisima.
x
Vsa opravila v zvez iz namestitvijo,
servisiranjem ter vzdrževanjem naj
opravi za to pristojno osebje, ki naj pri
tem upošteva zgoraj navedene
standarde.
x
Aparat namestite v odprtino na
delovni površini; debelina delovne
površine naj znaša vsaj 30mm, na
vrhu pa naj bo prevle
č
ena s plastjo,
odporno na visoke temperature.
x
Delovna površina naj bo nameš
č
ena
povsem vodoravno, na robu oz.
robovih, ki se stika(jo) s steno, mora
biti zatesnjena, da se ne bi med rob
ploš
č
e in steno zlivala teko
č
ina.
x
Dimenzije odprtine so navedene na
sliki.
x
Varnostna razdalja štedilnika in
pohištva so navedeni na sliki.
Все
работы
,
связанные
с
установкой
,
сервисом
и
обслуживанием
должны
выполнять
,
компетентны
лица
,
которые
при
этом
соблюдают
вышеуказанные
стандарты
.
x
Аппарат
установите
в
отверстие
на
рабочей
поверхности
;
толщина
рабочей
поверхности
пусть
будет
хотя
бы
30
мм
,
сверху
пусть
будет
защищена
слоем
,
стойким
к
высоким
температурам
.
x
Рабочая
поверхность
должна
быть
установлена
горизонтально
,
края
,
при
стыковке
со
стеной
должны
быть
уплотнены
,
для
того
,
чтобы
в
промежуток
между
краем
плиты
и
стеной
не
выливалась
жидкость
.
x
Размеры
отверстия
указаны
на
Рис
.
x
Безопасное
расстояние
плиты
и
мебели
находящегося
под
плитой
указано
на
Рис
..
x
После
того
как
разрежете