Водонагреватели Gorenje GT10UV6 - инструкция пользователя по применению, эксплуатации и установке на русском языке. Мы надеемся, она поможет вам решить возникшие у вас вопросы при эксплуатации техники.
Если остались вопросы, задайте их в комментариях после инструкции.
"Загружаем инструкцию", означает, что нужно подождать пока файл загрузится и можно будет его читать онлайн. Некоторые инструкции очень большие и время их появления зависит от вашей скорости интернета.

57
SKS
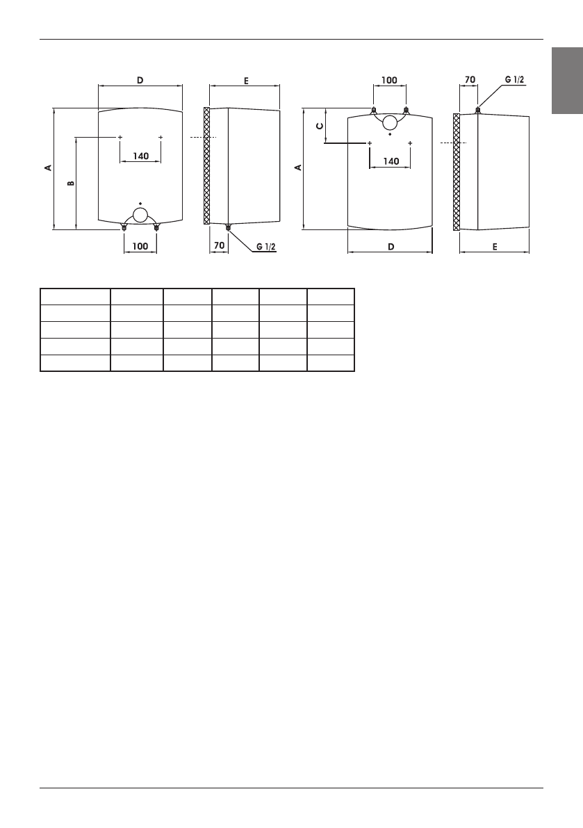
A
B
C
D
E
GT 10 O
500
398
350
265
GT 10 U
500
122
350
265
GT 15 O
500
398
350
310
GT 15 U
500
122
350
310
Varmvattenberedarens koppling och monteringsmått [mm]
Utförande över tvättstället
Utförande under tvättstället
INKOPPLING TILL VATTENLEDNINGSNÄTET
Varmvattenberedarens kopplingsrör för tilloppet och frånloppet av vattnet är färgmärkta.
Tilloppet av kallt vatten är märkt med blå färg och frånloppet av varmt vatten är märkt med röd
färg. Varmvattenberedaren kan kopplas till vattenledningsnätet på två sätt. Inkopplingen för
det stängda trycksystemet ger möjlighet till uttag av vatten på flera ställen, däremot det öppna,
trycklösa systemet ger möjlighet till uttag av vatten bara på ett tappställe. Med hänsyn till det
valda systemet för inkopplingen måste man skaffa även motsvarande vattenblandare. Vid
det öppna, trycklösa systemet måste man före varmvattenberedaren koppla in en backventil,
som ska hindra vattnet att rinna tillbaka från vatten-behållaren, i fall vattenledningsnätet
av någon anledning skulle sakna vattenförsörjning. För inkoppling av vattenberedaren
av denna typ behöver man en passande genomströmmande, trycklös vattenblandare.
I varmvattenberedaren ökar vattenvolymen på grund av vattenuppvärmningen, vilket
resulterar i att det droppar från vattenblandaren. Försök inte stoppa droppandet genom att
vrida kranen hårt, för droppandet går inte att stoppa. Åtdragningen kan resultera i att kranen
går sönder.
Vid inkopplingen av det slutna sytemet med tryck måste man vid samtliga tappningspunkter
använda tryckvattenblandare. På tilloppsröret måste man för säkerhetsskull koppla en
backventil som redan vid tillverkningen är förinställd till 0,7 MPa, eller också en annan
säkerhetsanordning som förhindrar höjningen av trycket i vattenbehållaren.
Vid uppvärmningen av vattnet i varmvattenberedaren höjs vattentrycket i behållaren till
gränsen som är förinställd i backventilen eller säkerhetsventilen. Eftersom vattnet inte kan
rinna tillbaka till vattenledningsnätet, kan vatnnet börja droppa från frånloppsöppningen i
säkerhetsventilen. Det droppande vattnet kan man avleda till avloloppet med hjälp av en
uppsamlingstratt med förlängning, som man placerar under säkerhetsventilen.
Содержание
- 13 ПОДКЛЮЧЕНИЕ К ВОДОПРОВОДНОЙ СЕТИ; незамороживающей среде.
- 14 Исполнение над умывальником; через спускную трубу смесителъного крана.; ПОДКЛЮЧЕНИЕ К 3ЛЕТРИЧЕСКОЙ СЕТИ; должно бытъ не менее 3 мм.; требуется его обязателъно отключитъ от электросети!
- 15 - Тепловой предохранителъ; ПРИМЕНЕНИЕ И ТЕХОБСЛУЖИВАНИЕ; уведомите уполномоченную ремонтную службу.