Водонагреватели Gorenje GT10UV6 - инструкция пользователя по применению, эксплуатации и установке на русском языке. Мы надеемся, она поможет вам решить возникшие у вас вопросы при эксплуатации техники.
Если остались вопросы, задайте их в комментариях после инструкции.
"Загружаем инструкцию", означает, что нужно подождать пока файл загрузится и можно будет его читать онлайн. Некоторые инструкции очень большие и время их появления зависит от вашей скорости интернета.

17
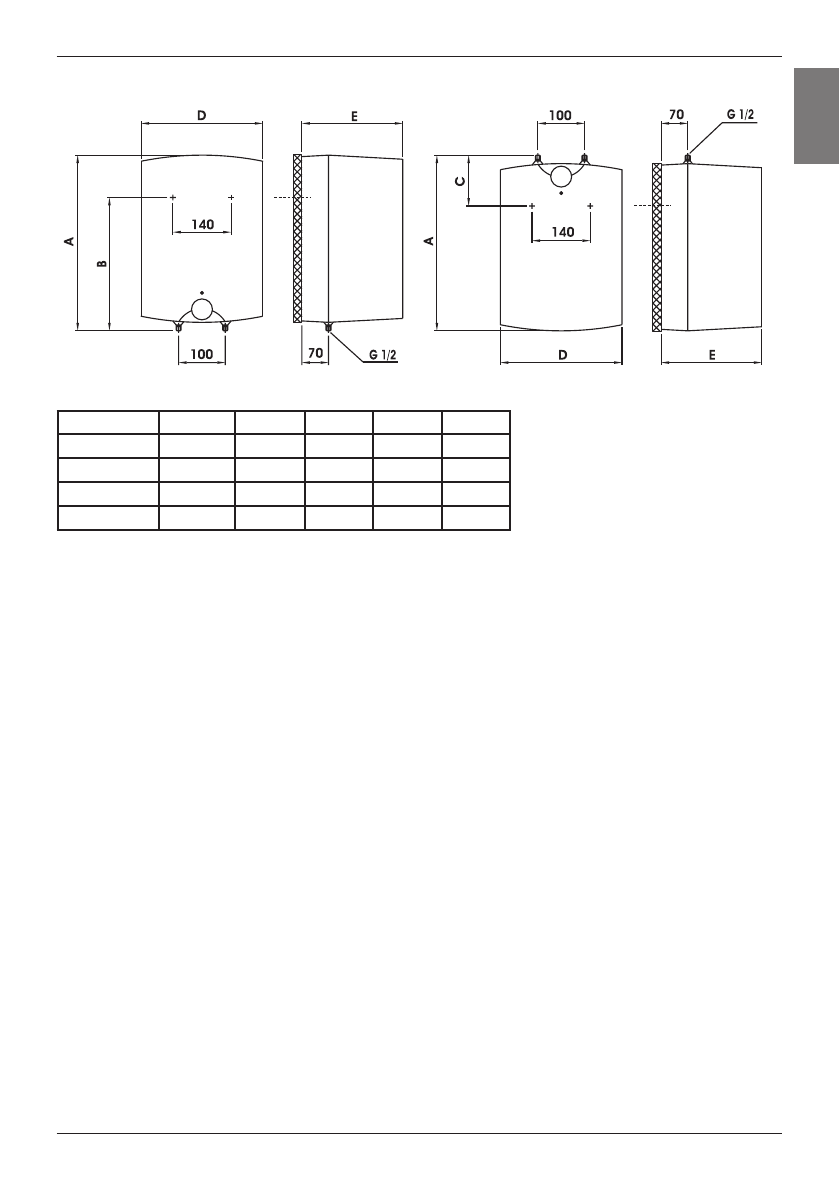
Dimensions of the water heater for installation and connection [mm]
GB
CONNECTION TO THE WATER SUPPLY
Inlet and outlet of water are on the water heater pipes marked with colour. The supply of cold
water is marked with blue, the outlet of warm water is marked with red.
The water heater can be connected to the water supply in two manners. Closed pressure
system of connection enables the outlet of water on several outlet spots, non-pressure
system enables only one outlet point. With regard to the system of connection chosen, also
the suitable mixing taps must be purchased.
By open non-pressure system it must before the water heater a non-return valve be built-in
preventing the running of water of the tank if in the network the water runs short.
By this system of connection, the cross-flow mixing tap must be used. In the water heater,
due to the heating the volume of water is increasing, which causes the dropping of water
of the mixing tap pipe. By strong squeezing of knob of the mixing tap the dropping of water
can not be prevented, but the mixing tap can only be damaged. By closed pressure system
of connection on the outlet spots the pressure mixing tap must be used. For safety reasons
the supply pipe must be fitted with a return safety valve or alternatively, a valve of the safety
class that prevents the pressure in the tank from exceeding the nominal pressure by more
than 0.1 MPa.
By heating of water in the water heater the pressure of water in the tank is increasing to the
limit which is adjusted in the safety valve. Because the return of water back to the water
supply is prevented, dropping of water from outlet opening of the safety valve can occur.
The dropping water may be let to the outlet over an intercepting accessory which is placed
under the safety valve. In order to do this you should first unscrew the protective cover off
the water heater.
A
B
C
D
E
GT 10 O
500
398
350
265
GT 10 U
500
122
350
265
GT 15 O
500
398
350
310
GT 15 U
500
122
350
310
Installation above the basin/sink
Installation below the basin/sink
Содержание
- 13 ПОДКЛЮЧЕНИЕ К ВОДОПРОВОДНОЙ СЕТИ; незамороживающей среде.
- 14 Исполнение над умывальником; через спускную трубу смесителъного крана.; ПОДКЛЮЧЕНИЕ К 3ЛЕТРИЧЕСКОЙ СЕТИ; должно бытъ не менее 3 мм.; требуется его обязателъно отключитъ от электросети!
- 15 - Тепловой предохранителъ; ПРИМЕНЕНИЕ И ТЕХОБСЛУЖИВАНИЕ; уведомите уполномоченную ремонтную службу.