Водонагреватели Gorenje GBK200LNB6 - инструкция пользователя по применению, эксплуатации и установке на русском языке. Мы надеемся, она поможет вам решить возникшие у вас вопросы при эксплуатации техники.
Если остались вопросы, задайте их в комментариях после инструкции.
"Загружаем инструкцию", означает, что нужно подождать пока файл загрузится и можно будет его читать онлайн. Некоторые инструкции очень большие и время их появления зависит от вашей скорости интернета.

37
MK
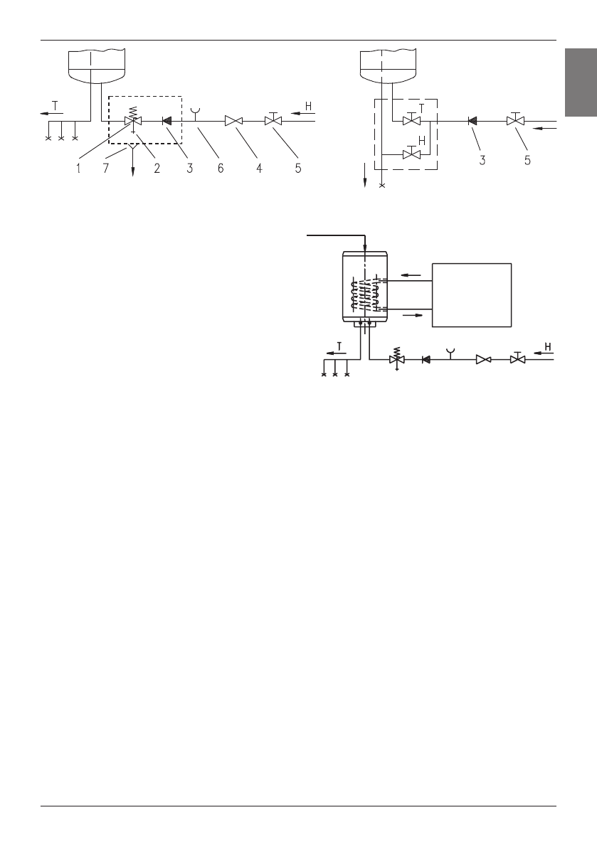
Затворен систем (со притисок)
Отворен систем (прелевен)
Легенда:
1 - Сигурносен вентил
2 - Пробен вентил
3 - Неповратен вентил
4 - Редуционен вентил за притисок
5 - Затворен вентил
6 - Пробна наставка
7 - Одливник со приклучок на одвод
H -Лaдна вода
T - Топла вода
Комбинираната греалка за вода GBK функционира како и електричната греалка GB со таа разлика што
има додатно вграден топлотен менувач за загревање на санитарна вода со другв енергетски извори (нпр.
централно греење, сончеви колектори или топлотна црпка). Системите на греење со електрична греалка
и со топлотен менувач можат да рвботам истовремено или поединечно. Комбинираната греалка за вода
приклучете ја на водоводна мрежа на ист начин како греалката GB а освен тоа можете да го приклучите и
на додатен енергетски извор. Влезот на грејниот медиум во топлотниот менувач е одбележен со црвена
боја а излезот со модра. Греалката GBK можете да ја поврзете и со повратниот вод за топла вода.
Повратниот вод за топла вода овозможува топла вода на сите одливни места истовремено. Повратниот
вод наместете го на приклучокот на горната страна на греалката. Елементите на повратниот вод можете
додатно да га снабдите кај овластените продавачи на нашите производи.
ПРИКЛУЧУВАЊЕ НА ЕЛЕКТРИЧНА МРЕЖА
Пред приклучувањето на електрична мрежа потребно е во греалката да вградите приклучен кабел и
затоа морате да го извадите пластичниот заштатен капан. Тоа сторете го отстранувајќија плочката која е
вградена во предната страна на капакот. Плочката можете да ја ослободите со помош на одвртувач кој
внимателно го потискате најпрвин во отворот помеѓу вградната плочка и заштитната кала а помов покрај
копчето на термосматом и на страната наспроти копчето. Кога ќе ја ослободите на двете страны плочката
можете да ја отстраните со рака. За да го симнете пластичниот заштатен капан морате да го отстраните
и копчето на термосматом и да ги одвртите двете прицврстувачки завртки. Постапката за наместување
на заштитниот пластичен капан се одвива по обратен редослед.
Приклучувањето на греалката на електрична мрежа мора да се изведува согласно со стандардите за
електрична инсталации. Бидејќи греалката нема елемент кој трајно би ја одвоил од електричната мрежа
потребно е на кабелската врска помеѓу греалката и трајната инсталација да се вгради таков прекинувач
кој ги прекинува обата пола за напојување и со отворены контакты кои се меѓусебно оддалечени најмалку
3 мм.
�������� ���
����������
�����
Содержание
- 11 Уважаемый покупатель, благодарим Вас за покупку нашего изделия.; монтдж; ТЕХНИЧЕСКИЕ ХАРАКТЕРИСТИКИ АППАРАТА; входящей температуре холодной воды из водопровода 15°C.; ТЕХНИЧЕСКИЕ ХАРАКТЕРИСТИКИ ТЕПЛООБМЕННИКА; US
- 12 Соединительные и монтажные размеры водонагревателя [мм]; ПОДКЛЮЧЕНИЕ K ВОДОПРОВОДУ; от выбранной системы подключения. B открытой проточной системе
- 13 ПОДKЛЮЧЕНИЕ K ЭЛЕКТРОСЕТИ
- 14 ИСПОЛЬЗОВАНИЕ И УХОД