Водонагреватели Gorenje GBK120LNB6 - инструкция пользователя по применению, эксплуатации и установке на русском языке. Мы надеемся, она поможет вам решить возникшие у вас вопросы при эксплуатации техники.
Если остались вопросы, задайте их в комментариях после инструкции.
"Загружаем инструкцию", означает, что нужно подождать пока файл загрузится и можно будет его читать онлайн. Некоторые инструкции очень большие и время их появления зависит от вашей скорости интернета.

9
geschlossenes (Druck) System
offenes (Druckloses) System
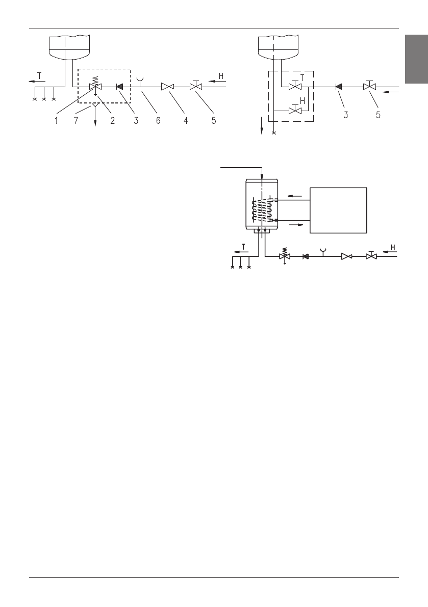
Der kombinierte Warmwasserbereiter GBK funktioniert gleich wie der elektrische Warmwasserbereiter GB, er hat nur
noch einen zusätzlich eingebauten Wärmetauscher für das Aufheizen des Sanitärwassers mit anderen Energiequellen
(z.B. Zentralheizung, Sonnenkollektor oder Wärmepumpe). Die Systeme mit elektrischem Heizgerät und mit dem
Wärmetauscher können gleichzeitig selbständig funktionieren. Den kombinierten Warmwasserbereiter schließen Sie an
die Wasserleitung auf gleiche Weise an wie den Warmwasserbereiter GB, ausserdem schliessen Sie ihn noch an die
zusätzliche Energiequelle an. Der Eintritt des Heizmediums in den Wärmetauscher ist mit roter Farbe, der Austritt mit
blauer Farbe gekennzeichnet.
Sie können die Warmwasserbereiter GBK auch an die Warmwasserrücklaufleitung anschließen. Diese Rücklaufleitung
ermöglicht es, daß alle Entnahmestellen auch gleich das warme Wasser zu Verfügung haben. Der Anschluß der
Rücklaufleitung ist auf der oberen Seite des Warmwasserspeichers. Sie müssen dazu auf der Oberseite den Deckel
entfernen und den darunterliegenden Dichtungszapfen losdrehen. Die Elemente der Rücklaufleitung können Sie bei den
beauftragen Verkäufern unserer Produkte zusätzlich bestellen.
ANSCHLUß AN DAS ELEKTRONETZ
Vor dem Anschluß an das Elektronetz ist in den Warmwasserbereiter das Anschlußkabel einzubauen. Den Kunsstoffdeckel,
unter dem die elektrischen Abshlüße liegen, entfernen Sie, indem Sie die auf ihm angebrachte Platte lösen. Schieben
Sie dazu vorsichtig einen Schraubenzieher zwischen Kunsstoffdeckel und Platte, zuerst am Thermostatknopf und dann
auf der gegenüberliegenden Seite. Sobald die Platte auf beiden Seiten losgemacht ist, können Sie sie mit der Hand
herausziehen. Um den Schutzdeckel wegnehmen zu können, müssen Sie noch den Thermostatknopf entfernen und die
beiden Befestigungsschrauben losdrehen. Der Schutzdeckel wird in umgekehrter Reihenfolge wieder montiert.
Der Anschluß des Warmwasserbereiters an das Elektronetz ist nach Normen für elektrische Leitungen auszuführen.
Weil der Warmwasserbereiter nicht mit dem Element für eine Dauertrennung vom Elektronetz versehen ist, ist in die
Kabelvebindung zwischen ihm und der Dauerleitung einen Schalter einzubauen, der beide Pole unterbricht und zwischen
den offenen Kontakten den minimalen Abstand von 3 mm hat.
Legende:
1 - Sicherheitsventil
2 - Testventil
3 - Sperrventil
4 - Reduzierdruckventi
5 - Sperrventil
6 - Testansatzstück
7 - Trichter mit dem Anschluß an den Ablaufl
H - Kaltwasser
T - Warmwasser
Rückleitung
Energiequelle
D
Содержание
- 11 Уважаемый покупатель, благодарим Вас за покупку нашего изделия.; монтдж; ТЕХНИЧЕСКИЕ ХАРАКТЕРИСТИКИ АППАРАТА; входящей температуре холодной воды из водопровода 15°C.; ТЕХНИЧЕСКИЕ ХАРАКТЕРИСТИКИ ТЕПЛООБМЕННИКА; US
- 12 Соединительные и монтажные размеры водонагревателя [мм]; ПОДКЛЮЧЕНИЕ K ВОДОПРОВОДУ; от выбранной системы подключения. B открытой проточной системе
- 13 ПОДKЛЮЧЕНИЕ K ЭЛЕКТРОСЕТИ
- 14 ИСПОЛЬЗОВАНИЕ И УХОД