Водонагреватели Gorenje GBK120LNB6 - инструкция пользователя по применению, эксплуатации и установке на русском языке. Мы надеемся, она поможет вам решить возникшие у вас вопросы при эксплуатации техники.
Если остались вопросы, задайте их в комментариях после инструкции.
"Загружаем инструкцию", означает, что нужно подождать пока файл загрузится и можно будет его читать онлайн. Некоторые инструкции очень большие и время их появления зависит от вашей скорости интернета.

5
Legenda:
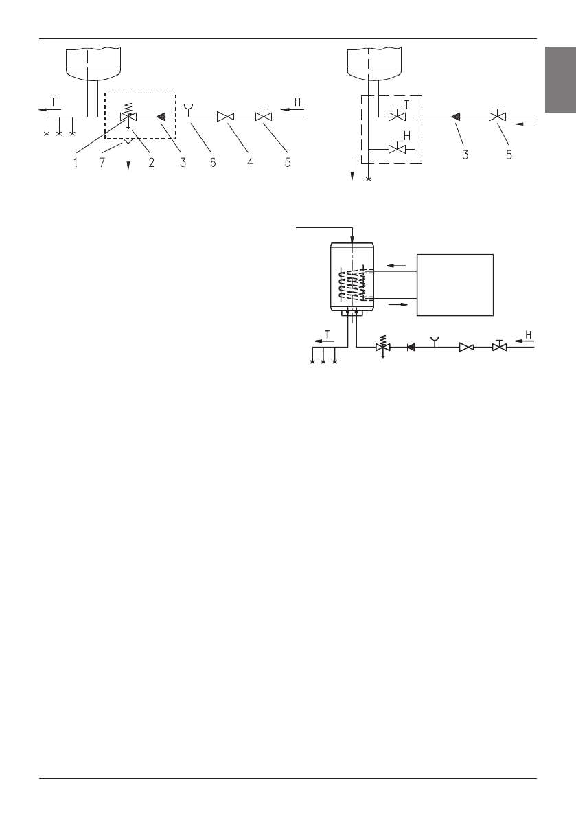
1 - Varnostni ventil
2 - Preizkusni ventil
3 - Nepovratni ventil
4 - Redukcijski ventil tlaka
5 - Zaporni ventil
6 - Preizkusni nastavek
7 - Lijak s priključkom na odtok
H - Hladna voda
T - Topla voda
Zaprti (tlačni) sistem
Odprti (netlačni) sistem
SL
O
Povratni vod
Energijski vir
Kombinirani grelnik vode GBK deluje enako kot električni grelnik vode GB, le da ima dodatno vgrajen še
toplotni izmenjevalec za segrevanje sanitarne vode z drugimi energetskimi viri (npr. centralno ogrevanje,
sončni kolektor ali toplotna črpalka). Sistema ogrevanja z električnim grelom in s toplotnim izmenjevalcem
lahko delujeta sočasno ali posamezno. Kombinirani grelnik vode priključite na vodovodno omrežje na enak
način kot grelnik GB, poleg tega pa ga priključite še na dodatni energijski vir. Vstop grelnega medija v
toplotni izmenjevalec je označen rdeče, izstop pa modro.
Grelnike GBK lahko vežete tudi na povratni vod tople vode. Povratni vod tople vode omogoča, da je na vseh
odjemnih mestih hkrati topla voda vedno takoj na voljo. Povratni vod namestite na priključek na zgornji
strani grelnika. Pred priključitvijo morate odstraniti plastični pokrovček in odviti tesnilni čep na zgornji strani
grelnika. Elemente povratnega voda lahko dodatno nabavite pri pooblaščenih prodajalcih naših izdelkov.
PRIKLJUČITEV NA ELEKTRIČNO OMREŽJE
Pred priključitvijo na električno omrežje je potrebno v grelnik vgraditi priključni kabel, zato morate sneti
zaščitni plastični pokrov. To storite tako, da odstranite ploščico, ki je vstavljena v sprednjo stran pokrova.
Ploščico sprostite na ta način, da v režo med vstavno ploščico in zaščitno kapo najprej ob gumbu termostata
nato pa še na strani nasproti gumba previdno porinete izvijač. Ko ploščico sprostite na obeh straneh, jo
lahko odstranite z roko. Da lahko snamete zaščitni plastični pokrov, morate odstraniti še gumb termostata
in odviti oba pritrdilna vijaka. Postopek namestitve zaščitnega plastičnega pokrova poteka v obratnem
vrstnem redu.
Priključitev grelnika na električno omrežje mora potekati v skladu s standardi za električne napeljave. Ker
grelnik nima elementa, ki bi ga trajno ločil od električnega omrežja, je potrebno na kabelski povezavi med
njim in trajno napeljavo vgraditi takšno stikalo, ki prekinja oba pola napajanja in ima med odprtimi kontakti
razmik najmanj 3 mm.
Содержание
- 11 Уважаемый покупатель, благодарим Вас за покупку нашего изделия.; монтдж; ТЕХНИЧЕСКИЕ ХАРАКТЕРИСТИКИ АППАРАТА; входящей температуре холодной воды из водопровода 15°C.; ТЕХНИЧЕСКИЕ ХАРАКТЕРИСТИКИ ТЕПЛООБМЕННИКА; US
- 12 Соединительные и монтажные размеры водонагревателя [мм]; ПОДКЛЮЧЕНИЕ K ВОДОПРОВОДУ; от выбранной системы подключения. B открытой проточной системе
- 13 ПОДKЛЮЧЕНИЕ K ЭЛЕКТРОСЕТИ
- 14 ИСПОЛЬЗОВАНИЕ И УХОД