Водонагреватели Gorenje GBK120LNB6 - инструкция пользователя по применению, эксплуатации и установке на русском языке. Мы надеемся, она поможет вам решить возникшие у вас вопросы при эксплуатации техники.
Если остались вопросы, задайте их в комментариях после инструкции.
"Загружаем инструкцию", означает, что нужно подождать пока файл загрузится и можно будет его читать онлайн. Некоторые инструкции очень большие и время их появления зависит от вашей скорости интернета.

21
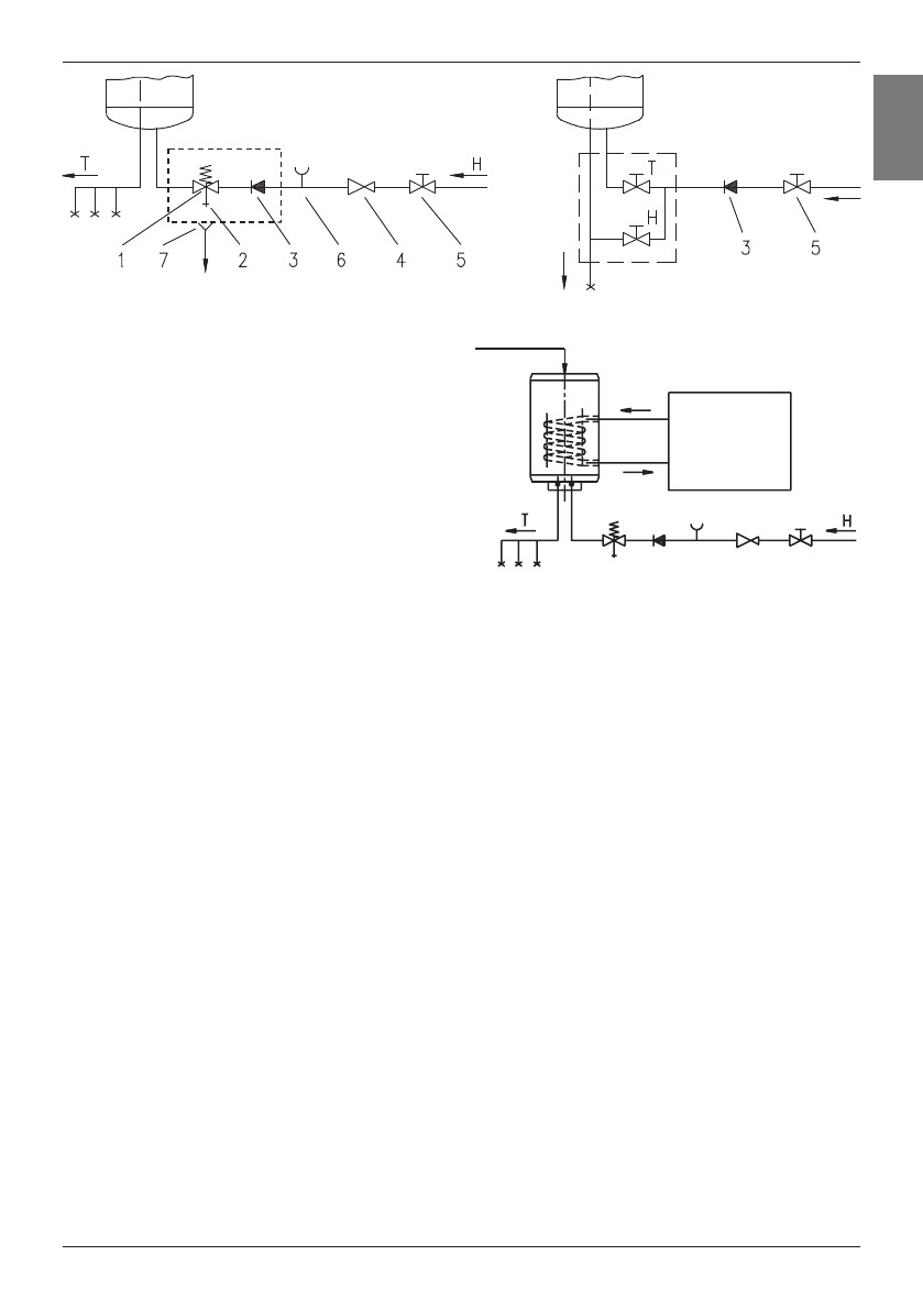
Zatvoreni (tlačni) sustav
Otvoreni (protočni) sustav
Legenda:
1 - Sigurnosni ventil
2 - Pokusni ventil
3 - Nepovratni ventil
4 - Redukcijski ventil tlaka
5 - Zaporni ventil
6 - Pokusni nastavak
7 - Čašica s priključkom na izlijev
H - Hladna voda
T - Topla voda
HR
Kombinirana grijalica vode GBK djeluje jednako kao električna grijalica GB s razlikom, što je u nju ugrađen
izmjenjivač topline za grijanje sanitarne vode uporabom drugih energetskih medija (primjerice, kod centralnog
ili solarnog grijanja ili toplinske crpke). Sustavi grijanja električnim grijačem i izmijenjivačem topline mogu
funkcionirati istodobno ili posamično. Kombiniranu grijalicu vode priključimo na vodovodnu mrežu na jednak
način kao grijalicu GB; osim toga priključimo ga i na dopunski energetski medij. Ulaz grijućeg medija u
izmijenjivač topline označen je crvenom, a izlaz plavom bojom.
Grijalice GBK možemo spojiti i na povratni vod tople vode; ovaj omoguća da se topla voda pojavi istodobno
na svim trošilima. Povratni vod montiramo na priključak na gornjoj strani grijalice. Prije priključenja
odstranimo zaštitnu plastičnu kapu i odvrnemo brtveni čep na gornjoj strani grijalice. Segmente povratna
voda pribavimo kod ovlaštenih prodavača.
PRIKLJUČAK NA ELEKTRIČNU MREŽU
Prije priključenja na električnu mrežu u grijalicu priključimo električni kabel. Najprije demontiramo zaštitnu
plastičnu kapu. Na prednjoj strani kućišta odstranimo umetnutu pločicu koju ponajprije s obadvije strane
olabavimo tako da u fugu između pločice i zaštitne kape (prvo uz dugme termostata a zatim i na njegovoj
suprotnoj strani) pažljivo uvučemo odvijač te pločicu odstranimo rukom. Za skidanje zaštitne plastične kape
moramo odstraniti i dugme termostata te odvrnuti oba pričvrsna vijka. Poklopac vratimo na mjesto istim
redoslijedom.
Prije priključenja na električnu mrežu grijalicu obvezno napunimo vodom. Kod prvog punjenja otvorimo
ručicu tople vode na bateriji za miješanje. Grijalica je napunjena vodom kad kroz izlijevnu cijev baterije za
miješanje poteče voda.
Priključak grijalice na električnu mrežu moramo izvršiti sukladno valjanim standardima za električne
instalacije. Budući da grijalica nema segment koji bi je trajno odvojio od električne mreže, moramo na
kabelskom spoju grijalice i trajne instalacije ugraditi prekidač koji prekida oba pola napajanja između aparata
i trajne instalacije. Razmak između otvorenih kontakata prekidača mora biti najmanje 3 mm.
Izvor energije
Povratni vod
Содержание
- 11 Уважаемый покупатель, благодарим Вас за покупку нашего изделия.; монтдж; ТЕХНИЧЕСКИЕ ХАРАКТЕРИСТИКИ АППАРАТА; входящей температуре холодной воды из водопровода 15°C.; ТЕХНИЧЕСКИЕ ХАРАКТЕРИСТИКИ ТЕПЛООБМЕННИКА; US
- 12 Соединительные и монтажные размеры водонагревателя [мм]; ПОДКЛЮЧЕНИЕ K ВОДОПРОВОДУ; от выбранной системы подключения. B открытой проточной системе
- 13 ПОДKЛЮЧЕНИЕ K ЭЛЕКТРОСЕТИ
- 14 ИСПОЛЬЗОВАНИЕ И УХОД