Водонагреватели Ariston NEXT EVO SFT 11 NG EXP - инструкция пользователя по применению, эксплуатации и установке на русском языке. Мы надеемся, она поможет вам решить возникшие у вас вопросы при эксплуатации техники.
Если остались вопросы, задайте их в комментариях после инструкции.
"Загружаем инструкцию", означает, что нужно подождать пока файл загрузится и можно будет его читать онлайн. Некоторые инструкции очень большие и время их появления зависит от вашей скорости интернета.

/
23
ВСТАНОВЛЕННЯ
УСТАНОВКА
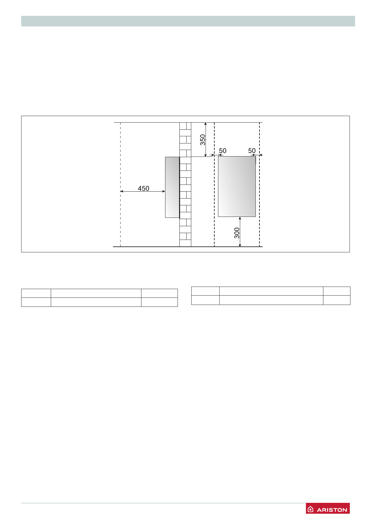
Мінімальні відстані
Для легкого доступу до водонагрiвача при технічному
обслуговуванні слід забезпечити відповідні мінімально
припустимі відстані (вільний простір) від корпуса водонагрiвача
до прилеглих предметів і поверхонь.
Установлювати водонагрiвач слід відповідно до чинних норм і
правил, а також відповідно до вимог виробника.
При встановленні обов’язково використовуйте рівень,
водонагрiвач має перебувати точно в горизонтальному
положенні.
Минимальные расстояния
Для легкого доступа к водонагревателю при техническом
обслуживании следует обеспечить соответствующие
минимально допустимые расстояния (свободное пространство)
от корпуса водонагревателя до близлежащих предметов и
поверхностей.
Устанавливать водонагреватель следует в соответствии с
действующими нормами и правилами, а также в соответствии с
требованиями производителя.
При установке обязательно используйте уровень,
водонагреватель должен находиться в строго горизонтальном
положении.
Підключення до газопроводу
Водонагрiвач розрахований на роботу із наступними типами
газу.
КРАЇНА
Модель
Типи газу
UA
NEXT EVO SFT 11
I
2H
За впакуванням і заводською табличкою на корпусі водонагрiвача
переконайтеся, що його розраховано на експлуатацію у
відповідній країні та роботу від газу, наявного в країні експлуатації.
Перевірте відповідність типу газу в трубопроводі типу, на який
розраховано водонагрiвач.
Монтаж і випробування газових трубопроводів виконуйте
відповідно до чинних норм і правил, з урахуванням
максимальної теплопродуктивності водонагрiвача. Перед
установленням обов’язково ретельно очистіть газові
трубопроводи для видалення забруднень, які можуть порушити
роботу водонагрiвача. Газове з’єднання слід виконувати через
прокладку.
Переконайтеся в належному тиску газу (природного (метану) або
зрідженого), оскільки при занадто низькому тиску ефективність
роботи водонагрiвача знижується, і він не забезпечує належного
рівня комфорту.
Подключение к газопроводу
Водонагреватель рассчитан на работу со следующими типами
газа.
Модель
Типы газа
RU
NEXT EVO SFT 11
I
2H
По упаковке и заводской табличке на корпусе водонагревателя
убедитесь, что он рассчитан на эксплуатацию в соответствующей
стране и работу от газа, имеющегося в стране эксплуатации.
Проверьте соответствие типа газа в трубопроводе типу, на
который рассчитан водонагреватель.
Монтаж и испытания газовых трубопроводов производите в
соответствии с действующими нормами и правилами, с учетом
максимальной теплопроизводительности водонагревателя.
Перед установкой обязательно тщательно очистите газовые
трубопроводы для удаления загрязнений, которые могут
нарушить работу водонагревателя.. Газовое соединение должно
быть выполнено через прокладку.
Убедитесь в надлежащем давлении газа (природного (метана)
или сжиженного), поскольку при слишком низком давлении
эффективность работы водонагревателя снижается, и он не
обеспечивает должного уровня комфорта.
Содержание
- 2 уководство по эксплуатации; Посібник з експлуатації; Дата изготовления; “О безопасности низковольтного оборудования”
- 3 ГАР
- 4 щоб запобігти пошкодженням в результаті намерзання.
- 5 Перечень условных обозначений:; Не залезайте на агрегат.; Удар струмом – оголені проводи під напругою.; Не залазьте на агрегат.; Удар струмом – компоненти під напругою.
- 6 бух, пожежа або отруєння токсичними газами.
- 7 Кнопки Температури; Панель управления
- 8 Процедура розжига; Коли пристрій працює, температура може
- 9 Выключение водонагревателя; ECO режим; ECO
- 10 Откройте кран ГВС и перед прибором дождитесь полного; Таблица кодов неисправностей; - Проверить газовый; Опис; газовий кран
- 11 См; ехническое обслуживание водонагревателя должен выполнять; Технічне обслуговування
- 12 Инструкция по установке и обслуживанию
- 13 ОБЩИЕ ПОЛОЖЕНИЯ; ЗАГАЛЬНІ ПОЛОЖЕННЯ
- 14 Химический состав воды, используемой в
- 15 не піддану вібраціям.; Правила безопасности; не подверженную вибрациям
- 16 Небезпека падіння
- 19 Загальний вигляд
- 20 озміри
- 21 Перед началом монтажа.; місця встановлення
- 22 Место установки водонагревателя; облюдайте инструкции, решая где установить прибор.; Місце встановлення
- 23 Мінімальні відстані; Подключение к газопроводу; NEXT EVO SFT 11
- 24 идравлические соединения; Обозначения; Підключення водонагрiвача; Устройство оборудовано фильтром; Не вмикати пристрій без фільтру.
- 25 Обозначение
- 26 Подсоединение дымохода; Вп; Подача повітря і відведення продуктів згоряння
- 27 NEXT EVO SFT; MIN; Типи димоходів/повітроводів
- 28 Подключение к электрической сети; Кабель электропитания; Підключення до електричної мережі; водонагревателя
- 29 Main
- 30 Электропитание
- 31 - Электрические соединения выполнены. Еще раз; Перше вмикання; Відкрийте газовий кран та перевірьте ущільнення зєднання,
- 32 оступ к параметрам - параметры регулировки; Accessing the settings - adjustment parameters; LO; Парам; Lo; Lo; “gas setting” table; Проверка давления на входе
- 33 та
- 34 NEXT EVO 11 SFT; мбар
- 35 стройства защиты водонагревателя; Водонагрiвачем охороняється від; Код помилки; Обратитесь в сервисный центр.
- 36 E E
- 37 оступ к внутренним элемента; снять переднюю панель.; Доступ до внутрішніх елементів
- 38 ехническое обслуживание (ТО) – важная составляющая; Общие рекомендации; Рекомендуется производить следующие проверки; Проверка работы; Перед початком робіт по обслуговуванню:; Загальні рекомендації
- 39 Процедура слива воды из прибора; Дождитесь полного слива воды.; Обучение пользователя; - Система должна регулярно обслуживаться в соблюдении с; Процедури зливу; Навчання користувача; правильного і економічно вигідного використання пристрою.; Утилізація і повторна переробка.; Наше оборудование разработано и изготовлено из
- 40 ерийный номер
- 41 Technical Data
- 44 OOO «Аристон Термо Русь»; Российская Федерация,; ТОВ «АРІСТОН ТЕРМО УКРАЇНА»
Характеристики
Остались вопросы?Не нашли свой ответ в руководстве или возникли другие проблемы? Задайте свой вопрос в форме ниже с подробным описанием вашей ситуации, чтобы другие люди и специалисты смогли дать на него ответ. Если вы знаете как решить проблему другого человека, пожалуйста, подскажите ему :)