Варочная панель Gorenje IT332INB - инструкция пользователя по применению, эксплуатации и установке на русском языке. Мы надеемся, она поможет вам решить возникшие у вас вопросы при эксплуатации техники.
Если остались вопросы, задайте их в комментариях после инструкции.
"Загружаем инструкцию", означает, что нужно подождать пока файл загрузится и можно будет его читать онлайн. Некоторые инструкции очень большие и время их появления зависит от вашей скорости интернета.

27
VENTILATION
ВЕНТИЛЯЦИЯ
ЖЕЛДЕТУ
IMPORTANT!
x
Observe the following instructions for installation of
appliance. The insufficient access of cooling air
could cause the limitation of appliance or its
damaging, eventually.
x
If the hob is built-in in the furniture above a case,
there can not be small pieces or sheets paper in the
case, because ventilation inlets could be stocked
with them.
ВАЖНО
!
x
Соблюдайте
следующие
указания
по
установке
прибора
.
Недостаточный
доступ
охлаждающего
воздуха
может
стать
причиной
ограничения
функциональности
прибора
или
его
повреждения
.
x
В
случае
установки
индукционной
панели
над
ящиком
мебели
,
в
данном
ящике
не
должны
находиться
мелкие
предметы
и
бумаги
,
которые
могли
бы
забить
отверстия
вентиляторов
и
ограничить
охлаждение
индукционной
панели
.
МАҢЫЗДЫ
!
x
Аспапты
орнату
бойынша
мынадай
нұсқауларды
орындаңыз
.
Салқындату
ауасына
жеткіліксіз
қолжетімділік
аспаптың
жұмыс
істеуін
шектеу
немесе
оның
бұзылу
себебі
болуы
мүмкін
.
x
Индукциялық
панельді
жиһаз
жəшігінің
үстіне
орнатқан
жағдайда
,
бұл
жəшікте
ұсақ
заттар
мен
қағаз
болмауға
тиіс
,
олар
желдеткіштің
тесіктерін
бітеп
,
индукциялық
панельдің
салқындатылуын
шектеуі
мүмкін
.
x
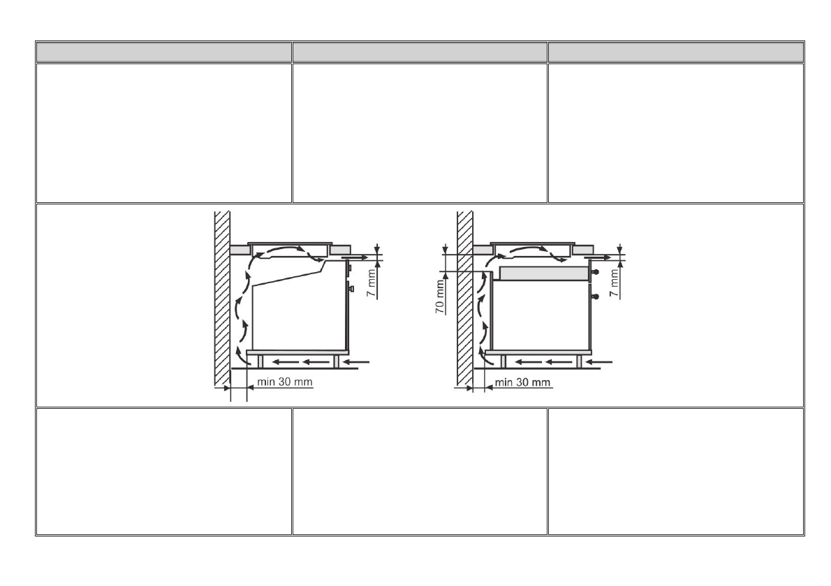
The rear wall of lower cabinet in the area of cut out
has to be open, for to ensure the air exchange.
x
The front reinforcement of furniture should be
removed, for to enable of creation of opening for
passage of air, at least in a height of 7 mm under the
sink over the whole length of appliance.
x
The eventual reinforcements under the sink should
be removed at least in the area of sink.
x
The distance between the induction cooking plate
and kitchen furniture, or other built in appliances,
x
Задняя
стенка
нижнего
шкафчика
должна
быть
в
месте
отверстия
в
столешнице
открыта
,
чтобы
был
обеспечен
обмен
воздуха
.
x
Следует
убрать
переднее
ребро
жесткости
мебели
,
чтобы
под
столешницей
по
всей
ширине
прибора
возникло
отверстие
мин
. 7
мм
для
циркуляции
воздуха
.
x
Возможные
ребра
жесткости
под
столешницей
надо
убрать
,
как
минимум
,
в
месте
столешницы
.
Расстояние
между
индукционной
варочной
панелью
и
кухонной
мебелью
или
другими
x
Төменгі
шкафтың
артқы
қабырғасы
ауа
алмасуды
қамтамасыз
ету
үшін
,
үстелдің
үстіңгі
бетіндегі
тесік
орнында
ашық
болуға
тиіс
.
x
Ауаның
ағып
кетуі
үшін
тұтынушының
бүкіл
ені
бойы
үстелдің
үстіңгі
тақтайының
астында
кемінде
7
мм
пайда
болу
үшін
,
жиһаздың
алдыңғы
қатты
қабырғасын
алып
тастау
керек
.
x
Үстелдің
үстіңгі
тақтайының
астындағы
ықтимал
қатты
қабырғаларды
ең
болмағанда
үстіңгі
тақтай
облысында
алып
тастау
керек
.
Индукциялық
пісіру
плитасы
мен
асүй
жиһазы
немесе
басқа
Характеристики
Остались вопросы?Не нашли свой ответ в руководстве или возникли другие проблемы? Задайте свой вопрос в форме ниже с подробным описанием вашей ситуации, чтобы другие люди и специалисты смогли дать на него ответ. Если вы знаете как решить проблему другого человека, пожалуйста, подскажите ему :)