Варочная панель Gorenje IS656USC - инструкция пользователя по применению, эксплуатации и установке на русском языке. Мы надеемся, она поможет вам решить возникшие у вас вопросы при эксплуатации техники.
Если остались вопросы, задайте их в комментариях после инструкции.
"Загружаем инструкцию", означает, что нужно подождать пока файл загрузится и можно будет его читать онлайн. Некоторые инструкции очень большие и время их появления зависит от вашей скорости интернета.

27
VENTILATION
VENTILATIE
ВЕНТИЛЯЦИЯ
ВЕНТИЛЯЦІЯ
IMPORTANT!
Suivre
les
instructions
suivantes
relatives à l'installation de l'appareil.
La quantité insuffisante de l'air de
refroidissement pourrait limiter des
fonctions
de
l'appareil
ou
l'endommager.
Si la plaque d’induction est située au-
dessus du tiroir, il est interdit d’y
mettre les petits objets et les papiers
qui pourraient boucher l’ouverture des
ventilateurs
et
réduire
le
refroidissement
de
la
plaque
d’induction.
BELANGRIJK!
Let op volgende aanwijzingen voor de
installatie van het apparaat:
Onvoldoende
toevoer
van
de
koellucht kan tot de beperking van de
functie van het apparaat, eventueel
tot de beschadiging ervan voeren.
Wordt de inductieplaat boven de lade
geplaatst mogen erin geen kleine
voorwerpen en papieren zijn die de
zuigopeningen van de ventilators
verstoppen en de koeling van de
inductieplaat beperken kunnen.
ВАЖНО!
Соблюдайте следующие указания
по
установке
прибора.
Недостаточный
доступ
охлаждающего
воздуха
может
стать
причиной
ограничения
функциональности прибора или его
повреждения.
В случае установки индукционной
панели над ящиком мебели в
данном
ящике
не
должны
находиться мелкие предметы и
бумаги, которые могли бы забить
отверстия
вентиляторов
и
ограничить
охлаждение
индукционной панели.
ВАЖЛИВО!
Дотримуйте наступні вказівки по
установці приладу. Недостатній
доступ
охолоджуючого
повітря
може стати причиною обмеження
функціональності приладу або його
пошкодження.
У випадку, коли індукційну панель
встановлено над ящиком меблів, у
цьому ящику не сміють знаходитися
дрібні предмети і папери, які могли
б забити отвори вентиляторів і
обмежити
охолоджування
індукційної панелі.
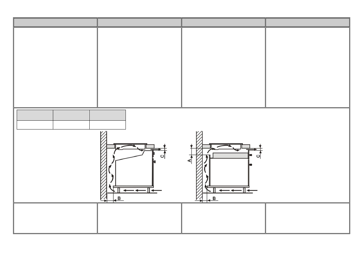
A (mm)
B (mm)
C (mm)
50
20
5
Il est nécessaire que la cloison arrière
de l’armoire inférieure soit ouverte au
niveau de l’ouverture située sur la
plaque de travail pour assurer la
ventilation.
Il faut démonter une entretoise avant
De achterwand van de benedenkast
moet bij de uitsnijding van het
werkblad
geopend
zijn
om
de
luchtwisseling te waarborgen.
Het is nodig de voorverstijving van het
meubelstuk te verwijderen zodat de
Задняя стенка нижнего шкафчика
должна быть в месте отверстия в
столешнице открыта, чтобы был
обеспечен обмен воздуха.
Надо
убрать
переднее
ребро
жесткости мебели, чтобы возникло
Задня
стінка
нижньої
шафки
повинна бути у області вирізу у
стільниці відкритою, щоб було
забезпечно циркуляцію повітря.
Необхідно
усунути
переднє
армування
меблів,
щоб
було













