Пилы дисковые Bosch GKS 55+ GCE - инструкция пользователя по применению, эксплуатации и установке на русском языке. Мы надеемся, она поможет вам решить возникшие у вас вопросы при эксплуатации техники.
Если остались вопросы, задайте их в комментариях после инструкции.
"Загружаем инструкцию", означает, что нужно подождать пока файл загрузится и можно будет его читать онлайн. Некоторые инструкции очень большие и время их появления зависит от вашей скорости интернета.

224
| Lietuviškai
1 609 92A 2AV | (23.3.16)
Bosch Power Tools
Pjovimo kampo nustatymas (GKS 55+ G / GKS 55+ GCE)
Patogiausia dirbti paguldžius elektrinį prietaisą ant priekinės
apsauginio gaubto pusės
17
.
– Atlaisvinkite sparnuotuosius varžtus
8
ir
15
. Paverskite
pjūklą į šoną. Nustatykite pageidaujamą pjūvio kampą ska-
lėje
6
. Vėl užveržkite sparnuotuosius varžtus
8
ir
15
.
Nuoroda:
pjaunant kampu, pjūvio gylis yra mažesnis nei nu-
statytas pjūvio gylio skalėje
28
.
Pjovimo kampo nustatymas (GKS 165)
Patogiausia dirbti paguldžius elektrinį prietaisą ant priekinės
apsauginio gaubto pusės
17
.
– Atlaisvinkite sparnuotąjį varžtą
8
. Paverskite pjūklą į šoną.
Nustatykite pageidaujamą pjovimo kampą skalėje
6
. Tvir-
tai užveržkite sparnuotąjį varžtą
8
.
Nuoroda:
pjaunant kampu, pjūvio gylis yra mažesnis nei nu-
statytas pjūvio gylio skalėje
28
.
Pjūvio linijos žymės
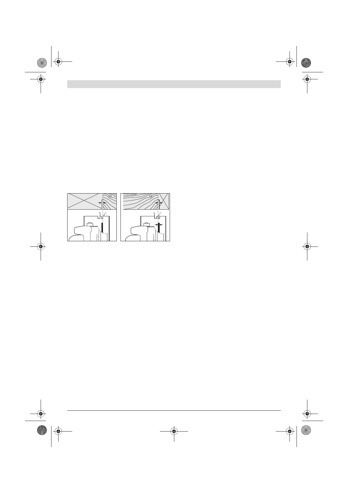
Žymė 0 °
10
rodo pjūklo disko padėtį pjaunant stačiu kampu.
Žymė 45 °
9
rodo pjūklo disko padėtį pjaunant 45 ° kampu.
– Kad pjūvis būtų tikslus, diskinį pjūklą pridėkite prie ruoši-
nio, kaip pavaizduota paveikslėlyje. Prieš pradedant pjau-
ti, geriausia atlikti bandomąjį pjūvį.
Paruošimas naudoti
Atkreipkite dėmesį į tinklo įtampą! Elektros tinklo
įtampa turi atitikti elektrinio įrankio firminėje lentelėje
nurodytą įtampą. 230 V pažymėtus elektrinius įrankius
galima jungti ir į 220 V įtampos elektros tinklą.
Įjungimas ir išjungimas
– Norėdami elektrinį elektrinį įrankį
įjungti
,
pirmiausia
pa-
spauskite įjungimo blokatorių
3
,
o po to
paspauskite įjun-
gimo-išjungimo jungiklį
2
ir laikykite jį paspaustą.
– Norėdami
išjungti
elektrinį įrankį, atleiskite įjungimo-iš-
jungimo jungiklį
2
.
Nuoroda:
dėl saugumo įjungimo-išjungimo jungiklio
2
užfik-
suoti negalima, dirbant su įrankiu jis visada turi būti laikomas
nuspaustas.
Sūkių skaičiaus išankstinis nustatymas (GKS 55+ GCE)
Su sūkių skaičiaus nustatymo reguliatoriaus ratuku
1
reikiamą
sūkių skaičių galite nustatyti ir prietaisui veikiant.
Sūkių skaičius priklauso nuo naudojamo pjūklo disko ir apdir-
bamos medžiagos (žr. pjūklo diskų apžvalgą šios naudojimo
instrukcijos gale).
Inercinis stabdys (GKS 55+ G / GKS 55+ GCE)
Integruotas inercinis stabdys sutrumpina pjūklo disko suki-
mąsi iš inercijos išjungus elektrinį įrankį.
Paleidimo srovės ribotuvas (GKS 55+ GCE)
Elektroninis paleidimo srovės ribotuvas riboja galią elektrinio
įrankio įjungimo metu, todėl elektrinį įrankį galima naudoti su
16 A saugikliu.
Elektroninis sūkių stabilizatorius (GKS 55+ GCE)
Elektroninis sūkių skaičiaus stabilizatorius palaiko beveik pa-
stovų nustatytą sūkių skaičių tiek veikiant prietaisui tuščiąja
eiga, tiek su apkrova, ir užtikrina tolygų darbo našumą.
Darbo patarimai
Saugokite pjūklo diskus nuo smūgių ir sutrenkimų.
Elektrinį prietaisą tolygia ir nedidele pastūma stumkite pjovi-
mo kryptimi. Per didelė pastūma labai sutrumpina darbo įran-
kių eksploatavimo laiką ir gali pakenkti elektriniam prietaisui.
Pjovimo našumas ir kokybė labai priklauso nuo pjūklo disko
būklės ir jo dantų formos. Todėl naudokite tik aštrius ir tik ap-
dirbamam ruošiniui pritaikytus pjūklus.
Medienos pjovimas
Tinkamą pjūklo diską reikia pasirinkti pagal medžio rūšį, koky-
bę ir pagal tai, ar bus pjaunama išilgine ar skersine kryptimi.
Pjaunant išilgai eglės medieną, susidaro ilgos, spiralės formos
drožlės.
Buko ir ąžuolo dulkės labai kenkia sveikatai, todėl šiuos ruoši-
nius pjaukite tik su dulkių nusiurbimo įranga.
Spalvotųjų metalų pjovimas
Nuoroda:
naudokite tik spalvotiesiems metalams skirtą aštrų
pjūklo diską. Tai užtikrins švarų pjūvį ir apsaugos pjūklo diską
nuo užstrigimo.
Įjungtą prietaisą veskite link ruošinio ir atsargiai įpjaukite. Po
to maža pastūma ir be pertrūkių pjaukite toliau.
Norėdami pjauti profilius, pradėkite pjauti siaurąją pusę, o
„U“ formos profilių niekada nepradėkite pjauti atviroje pusė-
je. Kad išvengtumėte pjūklo disko užstrigimo ir prietaiso ata-
trankos, ilgus profilius atitinkamai atremkite.
Pjovimas su lygiagrečiąja atrama (žr. pav. D)
Su lygiagrečiąją atrama
11
galima tiksliai pjauti išilgai ruošinio
krašto arba išpjauti vienodo pločio juostas.
– Atlaisvinkite sparnuotąjį varžtą
7
ir stumkite lygiagrečio-
sios atramos
11
skalę per kreipiamąsias, esančias pagrin-
do plokštėje
14
. Prie atitinkamos pjūvio linijos žymės
10
ar
9
skale nustatykite norimą pjūvio plotį, žr. skyrių „Pjūvio li-
nijos žymės“. Tvirtai užveržkite sparnuotąjį varžtą
7
.
Pjovimas su pagalbine kreipiamąja (žr. pav. E)
Norėdami apdirbti didelį ruošinį ar pjauti tiesiai, prie ruošinio
kaip pagalbinę kreipiamąją galite pritvirtinti lentą ar juostą ir
stumti diskinį pjūklą su pagrindo plokšte palei pagalbinę krei-
piamąją.
0
45
0
45
OBJ_BUCH-2175-002.book Page 224 Wednesday, March 23, 2016 1:40 PM
Содержание
- 137 Описание продукта и услуг; Применение по назначению
- 138 Технические данные
- 139 Заявление о соответствии; Сборка; Установка/смена пильного диска; Отсос пыли и стружки
- 140 Работа с инструментом; Режимы работы
- 141 Включение электроинструмента; Указания по применению
- 142 Техобслуживание и сервис; Техобслуживание и очистка; Утилизация
Характеристики
Остались вопросы?Не нашли свой ответ в руководстве или возникли другие проблемы? Задайте свой вопрос в форме ниже с подробным описанием вашей ситуации, чтобы другие люди и специалисты смогли дать на него ответ. Если вы знаете как решить проблему другого человека, пожалуйста, подскажите ему :)