Мотоциклы HONDA CRF150R 2006 - инструкция пользователя по применению, эксплуатации и установке на русском языке. Мы надеемся, она поможет вам решить возникшие у вас вопросы при эксплуатации техники.
Если остались вопросы, задайте их в комментариях после инструкции.
"Загружаем инструкцию", означает, что нужно подождать пока файл загрузится и можно будет его читать онлайн. Некоторые инструкции очень большие и время их появления зависит от вашей скорости интернета.

Рекомендации по регулировке подвески
108
Гоночные настройки мотоцикла
Жесткая подвеска
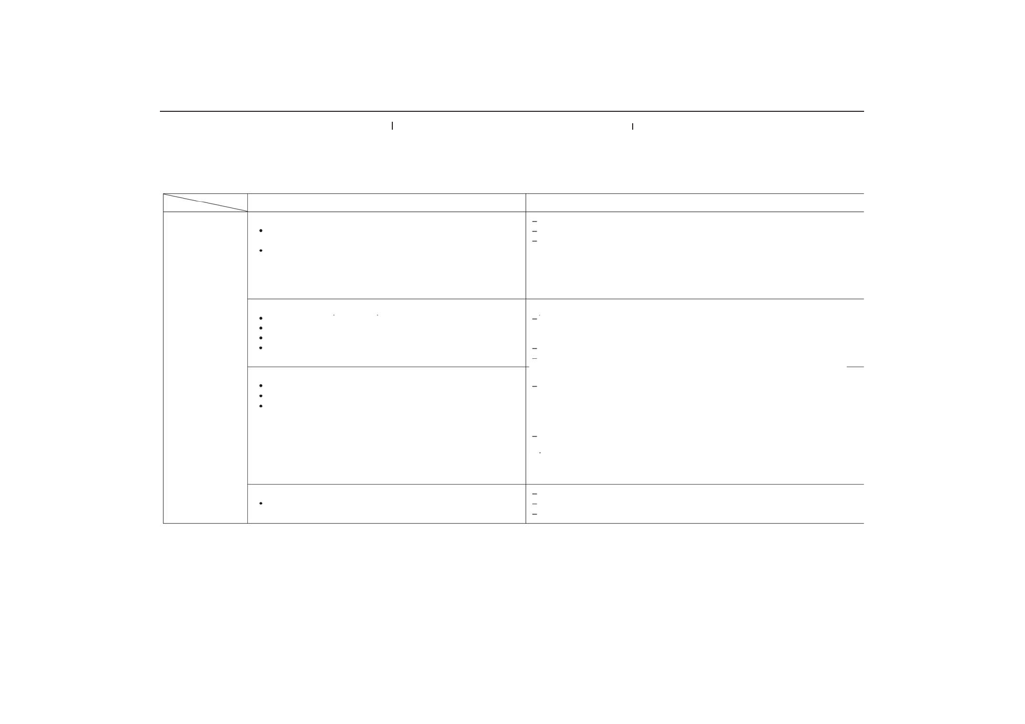
Признак
Вид операции
Характер первичного хода подвески слишком жесткий:
Характер промежуточного хода подвески слишком жесткий:
Характер заключительного хода подвески слишком жесткий:
Характер всего хода подвески слишком жесткий:
При прям. движ. с полностью открытой дроссельной заслонкой подвеска проявляет
чрезмерную жесткость при движении по мелким неровностям.
Характер подвески жесткий при движении в поворотах по мелким неровностям.
При прямолинейном движении с полностью открытой дроссельной заслонкой
передняя часть мотоцикла "плавает".
.
Жесткость проявляется в поворотах при движении по кочкам.
Передняя часть "плавает" при прохождении поворотов.
Чрезмерная жесткость на больших ухабах, особенно при движении под уклон.
В торможении передняя часть "клюет" при первичном ходе подвески, затем
становится жесткой.
Не приседает при приземлениях, но подвеска жесткая.
Характер работы подвески жесткий на больших ухабах, особ. при движении под уклон.
Жесткость проявляется в поворотах при движении по кочкам.
Жесткий характер работы подвески при любых условиях.
Попробуйте придать подвеске менее жест. хар%ки демпф. усилия сжатия, рег.ируя его с шагом в один щелчок.
Попробуйте придать подвеске менее жест. хар%ки демпф. усилия отбоя, регулируя его с шагом в 1/4 оборота.
Проверьте сальников на наличие загрязнений. Проверьте амортизационную жидкости на наличие
загрязнений.
Попробуйте придать подвеске менее жесткие характеристики демпфирующего усилия отбоя, регулируя его с
шагом в 1/4 оборота, если передняя часть "клюет" при прохождении поворотов. Если после этого не удается
добиться нужных характеристик, установите более жесткую опционную пружину.
Если применение жесткой пружины привело к избыточной жесткости всего хода подвески. попробуйте
придать подвеске менее жесткие характеристики демпфирующего усилия сжатия, регулируя его с шагом в
один щелчок до достижения желаемого характера демпфирующего усилия сжатия первичного хода подвески.
Попробуйте придать подвеске более жесткие характеристики демпфирующего усилия сжатия, регулируя его
с шагом в один щелчок. (Это должно сделать характер первичного и промежуточного хода подвески мягче.)
Попробуйте придать подвеске менее жест. хар%ки демпф. усилия сжатия, рег. его с шагом в один щелчок.
Попробуйте придать подвеске менее жест. хар%ки демпф. усилия отбоя, регулируя его с шагом в 1/4 оборота.
Попробуйте придать подвеске более жесткие характеристики демпфирующего усилия сжатия, регулируя его
с шагом в один щелчок. (Это должно сделать характер первичного и промежуточного хода подвески мягче.)
Установите более мягкую опционную пружину.
Попробуйте придать подвеске менее жест.хар%ки демпф. усилия сжатия, рег. его с шагом в один щелчок.
Попробуйте придать подвеске менее жест. хар%ки демпф. усилия сжатия, рег. его с шагом в один щелчок до
достижения желаемого характера демпфирующего усилия сжатия первичного хода подвески.
Уменьшите уровень амортизационной жидкости по 5 мл.
Попробуйте придать подвеске менее жест.хар%ки демпф. усилия сжатия, рег. его с шагом в один щелчок.
Попробуйте придать подвеске менее жест. хар%ки демпф. усилия отбоя, регулируя его с шагом в 1/4 оборота.
Уменьшите уровень амортизационной жидкости по 5 мл.
Характер первичного хода подвески мягкий:
Если характер первичного и промежуточного хода подвески жесткий:
Если характер первичного и промежуточного хода подвески мягкий:
Если после проведения вышеописанной регулировки характер заключительного хода подвески остается жестким:
Если характер первичного и промежуточного хода подвески становится жестким:
Если после проведения вышеописанной регулировки характер всего хода подвески остается жестким:
%%
%%
%%
