Материнские платы MSI MAG B550 - инструкция пользователя по применению, эксплуатации и установке на русском языке. Мы надеемся, она поможет вам решить возникшие у вас вопросы при эксплуатации техники.
Если остались вопросы, задайте их в комментариях после инструкции.
"Загружаем инструкцию", означает, что нужно подождать пока файл загрузится и можно будет его читать онлайн. Некоторые инструкции очень большие и время их появления зависит от вашей скорости интернета.

13
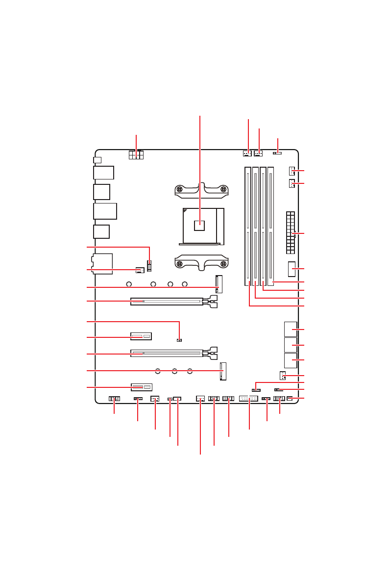
Компоненты материнской платы
Компоненты материнской платы
JUSB3
SYS_FAN3
JRGB2
JRGB1
SATA▼5▲6
SATA▼1▲2
SATA▼3▲4
M2_2
M2_1
SYS_FAN6
JTPM1
JUSB4
JUSB2
JUSB1
SYS_FAN4
SYS_FAN5
CPU_FAN1
SYS_FAN2
SYS_FAN1
PCI_E1
PCI_E2
PCI_E3
JBAT1
PCI_E4
Процессорный сокет
CPU_PWR1
PUMP_FAN1
JRAINBOW2
JAUD1
JCI1
JFP1
JRAINBOW1
JPWRLED1
LED_SW1
JFP2
ATX_PWR1
DIMMB1
DIMMB2
DIMMA1
DIMMA2
Содержание
- 6 Installing the Motherboard/ Installation des Motherboards/
- 7 VII; Connecting the Power Connectors/ Stromanschlüsse
- 132 Содержание
- 133 Режим разгона
- 134 Безопасное использование продукции
- 135 Технические характеристики; GPU
- 136 Подключение; SATA; USB
- 137 Разъемы на плате
- 138 Center
- 139 Эксклюзивные
- 140 Комплект поставки
- 141 Задняя панель портов ввода/ вывода; индикатора; ∙ Порт/Кнопка Flash BIOS; Конфигурация портов Аудио; Порты Аудио; BIOS; Скорость передачи данных
- 142 ∙ Выбор устройства; Автоматическое всплывающее диалоговое окно
- 143 Подключение наушников и микрофона
- 145 Процессор AM4
- 146 Слоты DIMM; Рекомендации по установке модулей памяти
- 147 MSI Gaming Series Graphics Card Bolster; для поддержки веса; Таблица комбинации для слотов M.2 и PCIe; Слот; PCIe x2
- 148 порту можно подключить одно устройство SATA.; Установка модуля M.2; Удалите винты для радиатора M.2 SHIELD FROZR.; Видео Инструкция; Смотрите видео, чтобы узнать как
- 149 Установите на место радиатор M.2 SHIELD FROZR и закрепите его.
- 150 JAUD1: Разъем аудио передней панели; расположенных на передней панели.
- 151 подключения всех кабелей питания к блоку питания АТХ.
- 152 правильно относительно разъема.
- 153 контакты VCC и земли.; JTPM1: Разъем модуля ТРМ
- 154 Переключение режимов работы и скорости вращения вентилятора; Назначение контактов разъема для подключения вентилятора; Разъем
- 155 JCI1: Разъем датчика открытия корпуса; Использование датчика открытия корпуса
- 156 Сброс настроек BIOS до значений по умолчанию
- 157 обесточить систему и отключить кабель питания.; Подключение RGB светодиодных лент
- 158 светодиодных лент 5В к разъему JRGB приведет к их повреждению.; Подключение адресных RGB светодиодных лент
- 159 Индикаторы отладки EZ; - память DRAM не обнаружена или повреждена.; - устройство загрузки не обнаружено или; LED_SW1: Переключатель для управления индикаторами; на материнской плате.
- 160 Установка ОС, драйверов и утилит; Установка Windows® 10
- 161 Преимущества UEFI; ∙ 32-битная ОС Windows; Как проверить режим BIOS?; Режим загрузки UEFI
- 162 Настройка BIOS; всегда устанавливайте настройки по умолчанию; Вход в настройки BIOS; Функциональные клавиши
- 163 Сброс BIOS; очистки данных CMOS; Обновление BIOS; Обновление BIOS при помощи M-FLASH; Yes
- 164 Обновление BIOS при помощи MSI DRAGON CENTER; порт Flash BIOS
- 165 Режим EZ
- 167 ▪ Добавление пункта BIOS в меню Избранное
- 168 переключатель режимов установки; ∙ Выбор меню BIOS
- 169 Меню OC
- 173 ii
Характеристики
Остались вопросы?Не нашли свой ответ в руководстве или возникли другие проблемы? Задайте свой вопрос в форме ниже с подробным описанием вашей ситуации, чтобы другие люди и специалисты смогли дать на него ответ. Если вы знаете как решить проблему другого человека, пожалуйста, подскажите ему :)