Материнские платы MSI B550M PRO-VDH - инструкция пользователя по применению, эксплуатации и установке на русском языке. Мы надеемся, она поможет вам решить возникшие у вас вопросы при эксплуатации техники.
Если остались вопросы, задайте их в комментариях после инструкции.
"Загружаем инструкцию", означает, что нужно подождать пока файл загрузится и можно будет его читать онлайн. Некоторые инструкции очень большие и время их появления зависит от вашей скорости интернета.

12
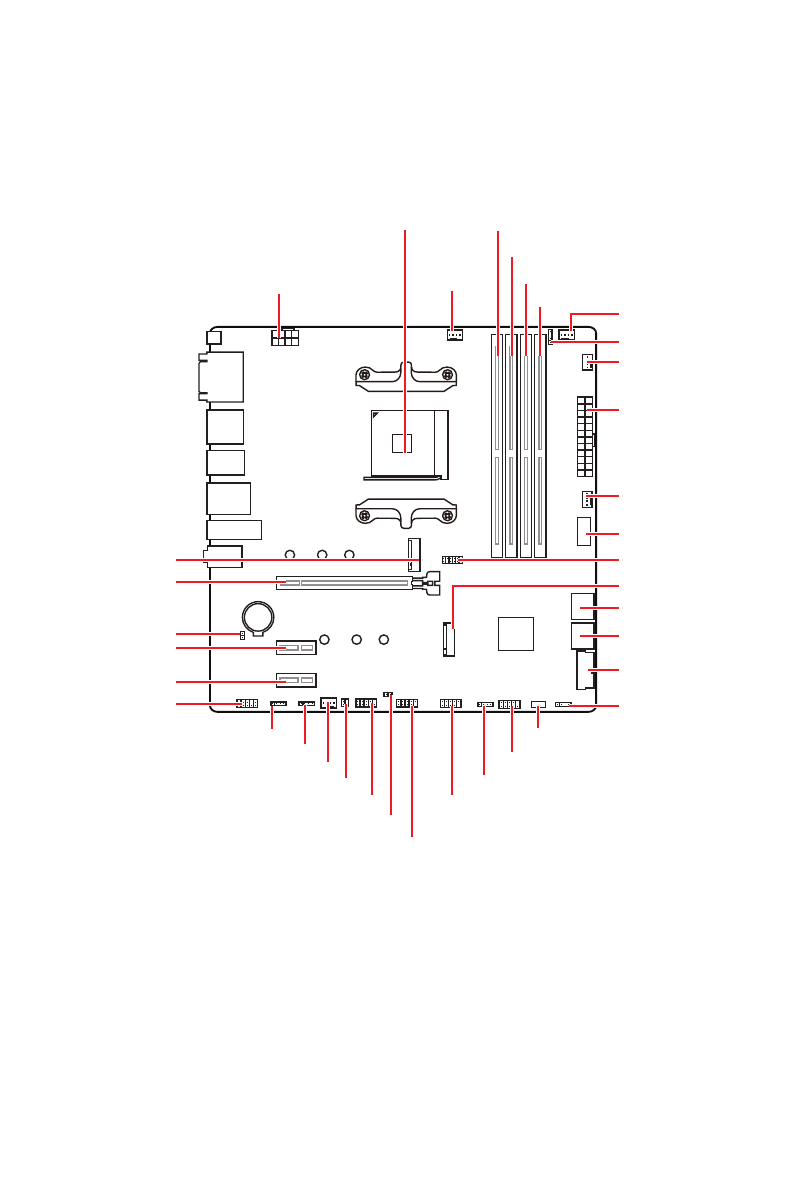
Компоненты материнской платы
Компоненты материнской платы
BAT1
JUSB3
LED_SW1
JRGB2
JRGB1
SATA▼1▲2
M2_1
JUSB1
JTPM1
SATA▼3▲4
JUSB2
JRAINBOW1
M2_2
CPU_FAN1
SYS_FAN2
SYS_FAN1
PCI_E1
PCI_E2
JBAT1
PCI_E3
Процессорный сокет
CPU_PWR1
PUMP_FAN1
JRAINBOW2
JAUD1
JUSB4
JCI1
JFP1
JCOM1
JSMB1
SYS_FAN3
JFP2
ATX_PWR1
DIMMB1
DIMMB2
DIMMA1
DIMMA2
Содержание
- 6 Installing the Motherboard/ Installation des Motherboards/
- 7 VII; Connecting the Power Connectors/ Stromanschlüsse
- 127 Содержание
- 128 Безопасное использование продукции
- 129 Технические характеристики
- 130 Подключение; SATA; USB; Realtek® ALC892 Codec; LAN
- 131 Разъемы на плате
- 132 Center
- 133 Эксклюзивные
- 134 Комплект поставки
- 135 Задняя панель портов ввода/ вывода; ∙ Порт/Кнопка Flash BIOS; Таблица состояний индикатора порта LAN; BIOS
- 136 ∙ Выбор устройства
- 139 Процессорный сокет; Процессор AM4
- 140 Слоты DIMM; Рекомендации по установке модулей памяти
- 141 MSI Gaming Series Graphics Card Bolster
- 142 Видео Инструкция; Смотрите видео, чтобы узнать как; Установка устройства в разъем M2_1; Удалите винты для радиатора M.2 SHIELD FROZR.
- 143 Стойка для радиатора; Установка устройства в разъем M2_2; соответствии с длиной вашего M.2 SSD. Если модуль M.2 SSD и радиатор
- 144 JAUD1: Разъем аудио передней панели; расположенных на передней панели.
- 145 подключения всех кабелей питания к блоку питания АТХ.
- 146 правильно относительно разъема.
- 147 контакты VCC и земли.; JTPM1: Разъем модуля ТРМ
- 148 Переключение режимов работы и скорости вращения вентилятора; Назначение контактов разъема для подключения вентилятора; Разъем
- 149 JCI1: Разъем датчика открытия корпуса; Использование датчика открытия корпуса
- 150 Сброс настроек BIOS до значений по умолчанию; JCOM1: Разъем последовательного порта
- 151 обесточить систему и отключить кабель питания.; Подключение RGB светодиодных лент
- 152 светодиодных лент 5В к разъему JRGB приведет к их повреждению.; Подключение адресных RGB светодиодных лент
- 153 Индикаторы отладки EZ; - память DRAM не обнаружена или повреждена.; - устройство загрузки не обнаружено или; LED_SW1: Переключатель для управления индикаторами EZ; на материнской плате.
- 154 Установка ОС, драйверов и утилит; Установка Windows® 10
- 155 Преимущества UEFI; ∙ 32-битная ОС Windows; Как проверить режим BIOS?; Режим загрузки UEFI
- 156 Настройка BIOS; всегда устанавливайте настройки по умолчанию; Вход в настройки BIOS; Функциональные клавиши
- 157 Сброс BIOS; очистки данных CMOS; Обновление BIOS; Обновление BIOS при помощи M-FLASH; Yes
- 158 Обновление BIOS при помощи кнопки Flash BIOS; порт Flash BIOS
- 159 Режим EZ
- 161 ▪ Добавление пункта BIOS в меню Избранное
- 162 Режим разгона; переключатель режимов установки; ∙ Выбор меню BIOS
- 163 Меню OC
- 166 ii
Характеристики
Остались вопросы?Не нашли свой ответ в руководстве или возникли другие проблемы? Задайте свой вопрос в форме ниже с подробным описанием вашей ситуации, чтобы другие люди и специалисты смогли дать на него ответ. Если вы знаете как решить проблему другого человека, пожалуйста, подскажите ему :)