Котел Ferroli Divatop H C - инструкция пользователя по применению, эксплуатации и установке на русском языке. Мы надеемся, она поможет вам решить возникшие у вас вопросы при эксплуатации техники.
Если остались вопросы, задайте их в комментариях после инструкции.
"Загружаем инструкцию", означает, что нужно подождать пока файл загрузится и можно будет его читать онлайн. Некоторые инструкции очень большие и время их появления зависит от вашей скорости интернета.

DIVAtop HC
9
IT
cod. 3540S840 - 02/2010 (Rev. 00)
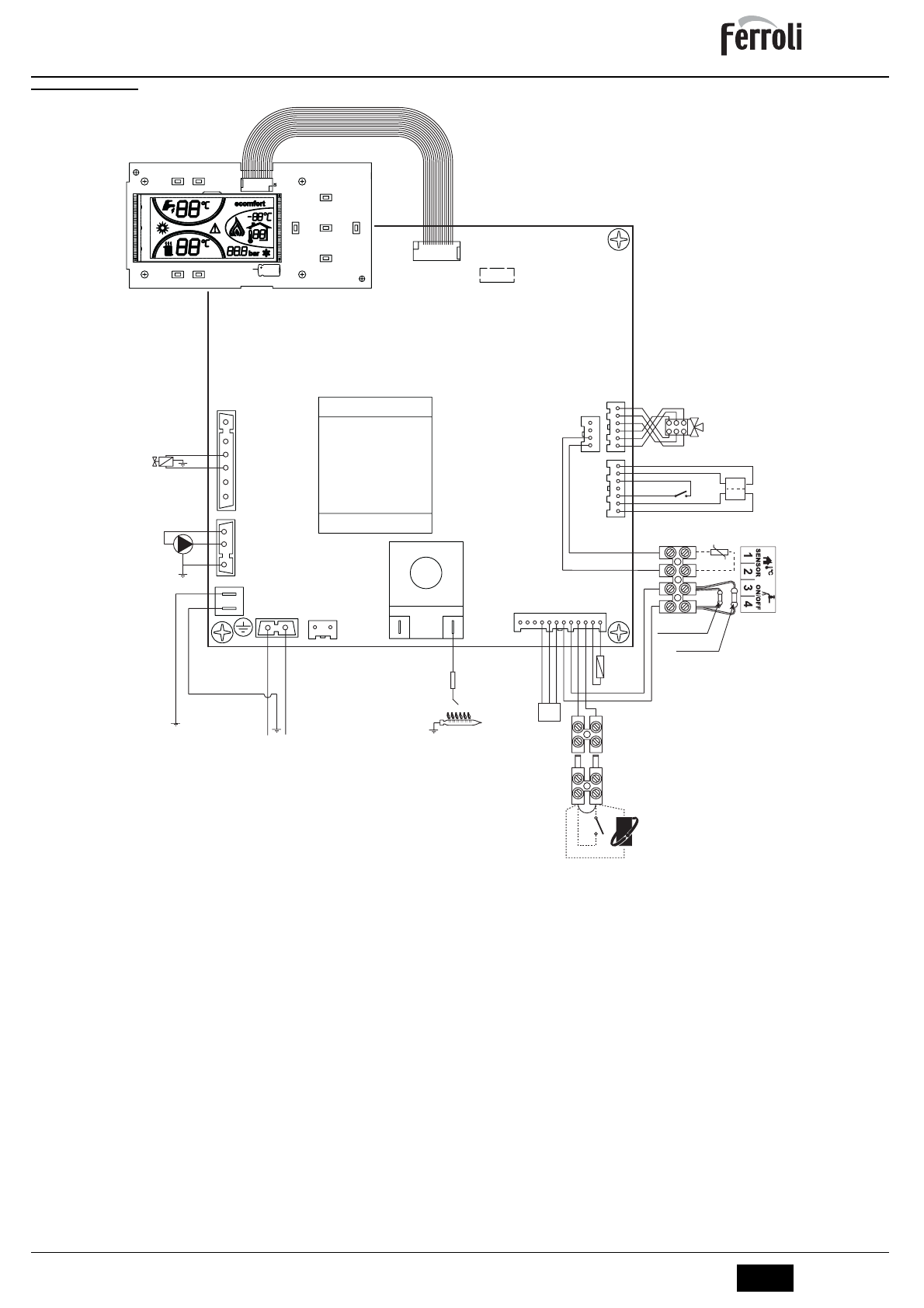
5.5 Schema elettrico
fig. 25 - Schema elettrico
A
Attenzione
: Prima di collegare il
termostato ambiente
o il
cronocomando re-
moto
, togliere il ponticello sulla morsettiera.
Legenda
32
Circolatore riscaldamento
44
Valvola gas
47
Modureg
72
Termostato ambiente
81
Elettrodo d’accensione/rivelazione
95
Valvola deviatrice
126
Termostato fumi
138
Sonda esterna
139
Cronocomando remoto (OpenTherm)
246
Trasduttore di pressione
278
Sensore doppio (Sicurezza + riscaldamento)
LCD
X8
PROG
X10
X7
X9
X6
X5
X2
X1
L
aux
N
L
main
N
X3
X4
TR1
T2
X11
DBM03
81
°
T
°
T
278
126
7
6
5
4
3
2
1
9 8 7 6 5 4 3 2 1
12 11 10
47
246
OUT
+5V
GND
L
N
230V
50Hz
1
2
3
1
2
3
4
5
6
32
44
95
6
5
4
3
2
1
4
3
2
1
DSP05
72
139
10kOhm
1.8kOhm
138
1
2