Котел Ferroli Divatop H C - инструкция пользователя по применению, эксплуатации и установке на русском языке. Мы надеемся, она поможет вам решить возникшие у вас вопросы при эксплуатации техники.
Если остались вопросы, задайте их в комментариях после инструкции.
"Загружаем инструкцию", означает, что нужно подождать пока файл загрузится и можно будет его читать онлайн. Некоторые инструкции очень большие и время их появления зависит от вашей скорости интернета.

DIVAtop HC
68
UK
cod. 3540S840 - 02/2010 (Rev. 00)
5.5
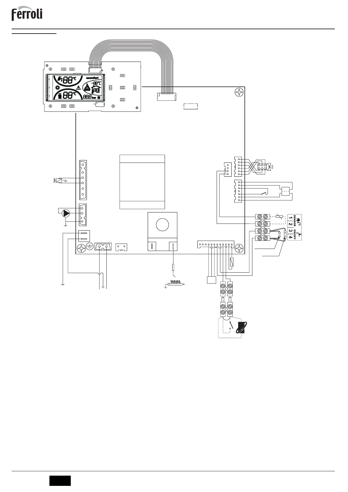
ȿɥɟɤɬɪɢɱɧɚ ɫɯɟɦɚ
ɦɚɥ
. 25 -
ȿɥɟɤɬɪɢɱɧɚ ɫɯɟɦɚ
A
ɍɜɚɝɚ
:
ɉɟɪɟɞ ɩɪɢɽɞɧɚɧɧɹɦ ɤɿɦɧɚɬɧɨɝɨ
ɬɟɪɦɨɫɬɚɬɚ
ɚɛɨ
ɞɢɫɬɚɧɰɿɣɧɨɝɨ
ɯɪɨɧɨɫɬɚɬɚ
ɜɢɞɚɥɿɬɶ ɩɟɪɟɦɢɱɤɭ ɭ ɤɥɟɦɧɿɣ ɤɨɪɨɛɰɿ
.
ɇɚɞɩɢɫɢ
32
ɐɢɪɤɭɥɹɰɿɣɧɢɣ ɧɚɫɨɫ ɫɢɫɬɟɦɢ ɨɩɚɥɟɧɧɹ
44
Ƚɚɡɨɜɢɣ ɜɟɧɬɢɥɶ
47
Ʉɨɬɭɲɤɚ
Modureg
72
Ʉɿɦɧɚɬɧɢɣ ɬɟɪɦɨɫɬɚɬ
81
ȿɥɟɤɬɪɨɞ ɪɨɡɩɚɥɸɜɚɧɧɹ
/
ɫɩɨɫɬɟɪɟɠɟɧɧɹ ɡɚ ɩɨɥɭɦ
'
ɹɦ
95
Ʉɥɚɩɚɧ
-
ɞɟɜ
i
ɚɬɨɪ
126
Ɍɟɪɦɨɫɬɚɬ ɜɿɞɩɪɚɰɶɨɜɚɧɢɯ ɝɚɡɿɜ
138
Ɂɨɜɧɿɲɧɿɣ ɡɨɧɞ
139
Ⱦɢɫɬɚɧɰɿɣɧɢɣ ɯɪɨɧɨɫɬɚɬ
(OpenTherm)
246
Ⱦɚɬɱɢɤ ɬɢɫɤɭ
278
ɉɨɞɜ
i
ɣɧɢɣ ɞɚɬɱɢɤ
(
Ȼɟɡɩɟɤɚ
+
Ɉɩɚɥɟɧɧɹ
)
LCD
X8
PROG
X10
X7
X9
X6
X5
X2
X1
L
aux
N
L
main
N
X3
X4
TR1
T2
X11
DBM03
81
°
T
°
T
278
126
7
6
5
4
3
2
1
9 8 7 6 5 4 3 2 1
12 11 10
47
246
OUT
+5V
GND
L
N
230V
50Hz
1
2
3
1
2
3
4
5
6
32
44
95
6
5
4
3
2
1
4
3
2
1
DSP05
72
139
10kOhm
1.8kOhm
138
1
2