Котел Ferroli Divatop H C - инструкция пользователя по применению, эксплуатации и установке на русском языке. Мы надеемся, она поможет вам решить возникшие у вас вопросы при эксплуатации техники.
Если остались вопросы, задайте их в комментариях после инструкции.
"Загружаем инструкцию", означает, что нужно подождать пока файл загрузится и можно будет его читать онлайн. Некоторые инструкции очень большие и время их появления зависит от вашей скорости интернета.

DIVAtop HC
52
RO
cod. 3540S840 - 02/2010 (Rev. 00)
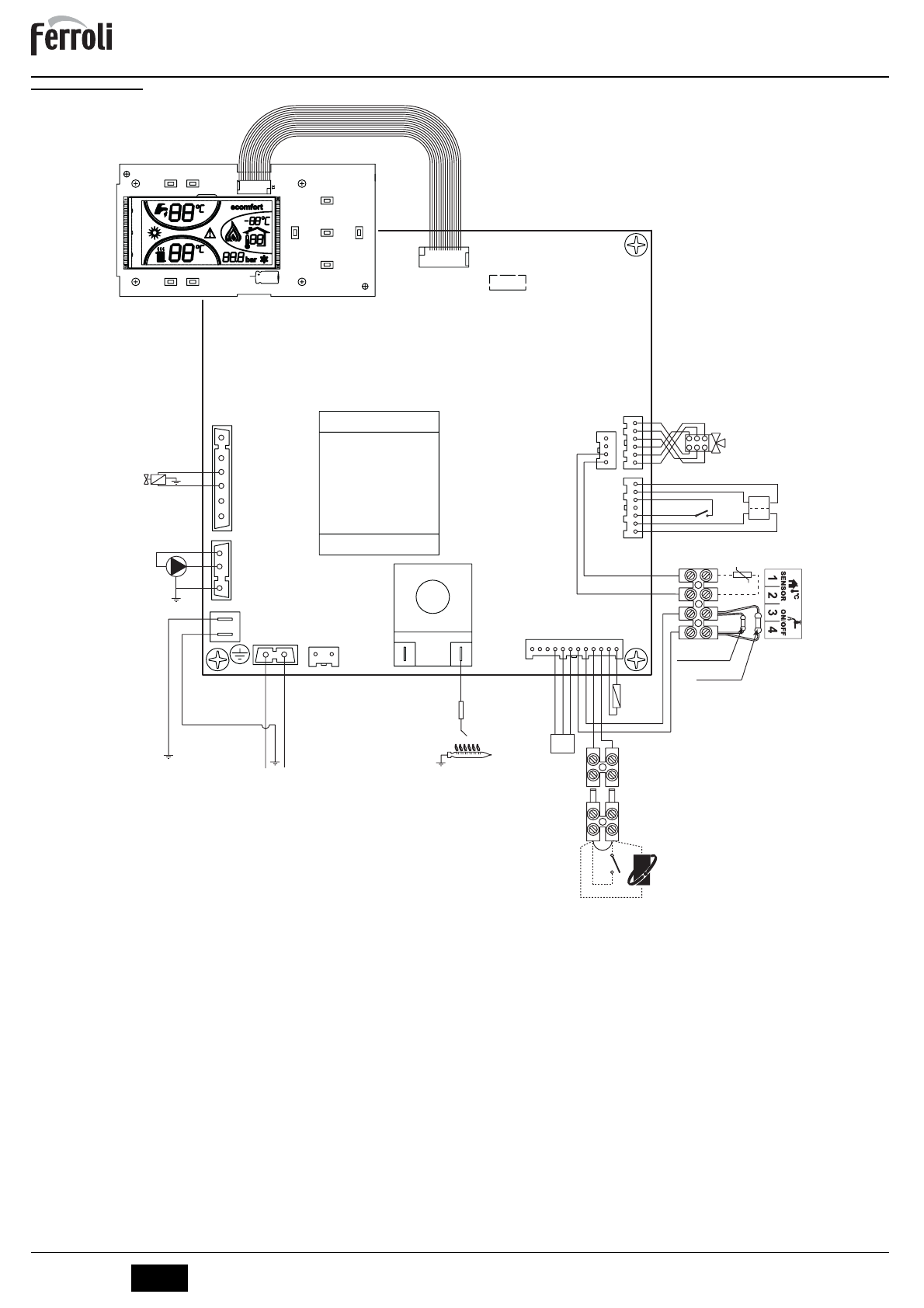
5.5 Schem
ă
electric
ă
fig. 25 - Schem
ă
electric
ă
A
Aten
Ġ
ie
: Înainte de a racorda
termostatul de camer
ă
sau
cronocomanda la
distan
Ġă
, scoate
Ġ
i puntea de pe panoul de borne.
Legend
ă
32
Pomp
ă
de circula
Ġ
ie înc
ă
lzire
44
Valv
ă
de gaz
47
Cablu "modureg"
72
Termostatul de camer
ă
81
Electrod de aprindere/detectare
95
Valv
ă
deviatoare
126
Termostat gaze arse
138
Sond
ă
extern
ă
139
Cronocomand
ă
la distan
Ġă
(OpenTherm)
246
Transductor de presiune
278
Senzor dublu (Siguran
Ġă
+ Înc
ă
lzire)
LCD
X8
PROG
X10
X7
X9
X6
X5
X2
X1
L
aux
N
L
main
N
X3
X4
TR1
T2
X11
DBM03
81
°
T
°
T
278
126
7
6
5
4
3
2
1
9 8 7 6 5 4 3 2 1
12 11 10
47
246
OUT
+5V
GND
L
N
230V
50Hz
1
2
3
1
2
3
4
5
6
32
44
95
6
5
4
3
2
1
4
3
2
1
DSP05
72
139
10kOhm
1.8kOhm
138
1
2