Котел Buderus Logamax U054-24 - инструкция пользователя по применению, эксплуатации и установке на русском языке. Мы надеемся, она поможет вам решить возникшие у вас вопросы при эксплуатации техники.
Если остались вопросы, задайте их в комментариях после инструкции.
"Загружаем инструкцию", означает, что нужно подождать пока файл загрузится и можно будет его читать онлайн. Некоторые инструкции очень большие и время их появления зависит от вашей скорости интернета.

6
Оставляем за собой право на изменения!
Инструкция по монтажу и техническому обслуживанию
•
Настeнный газовый котел Logamax U054
•
Издание
07/2006
Сведения о приборе
2
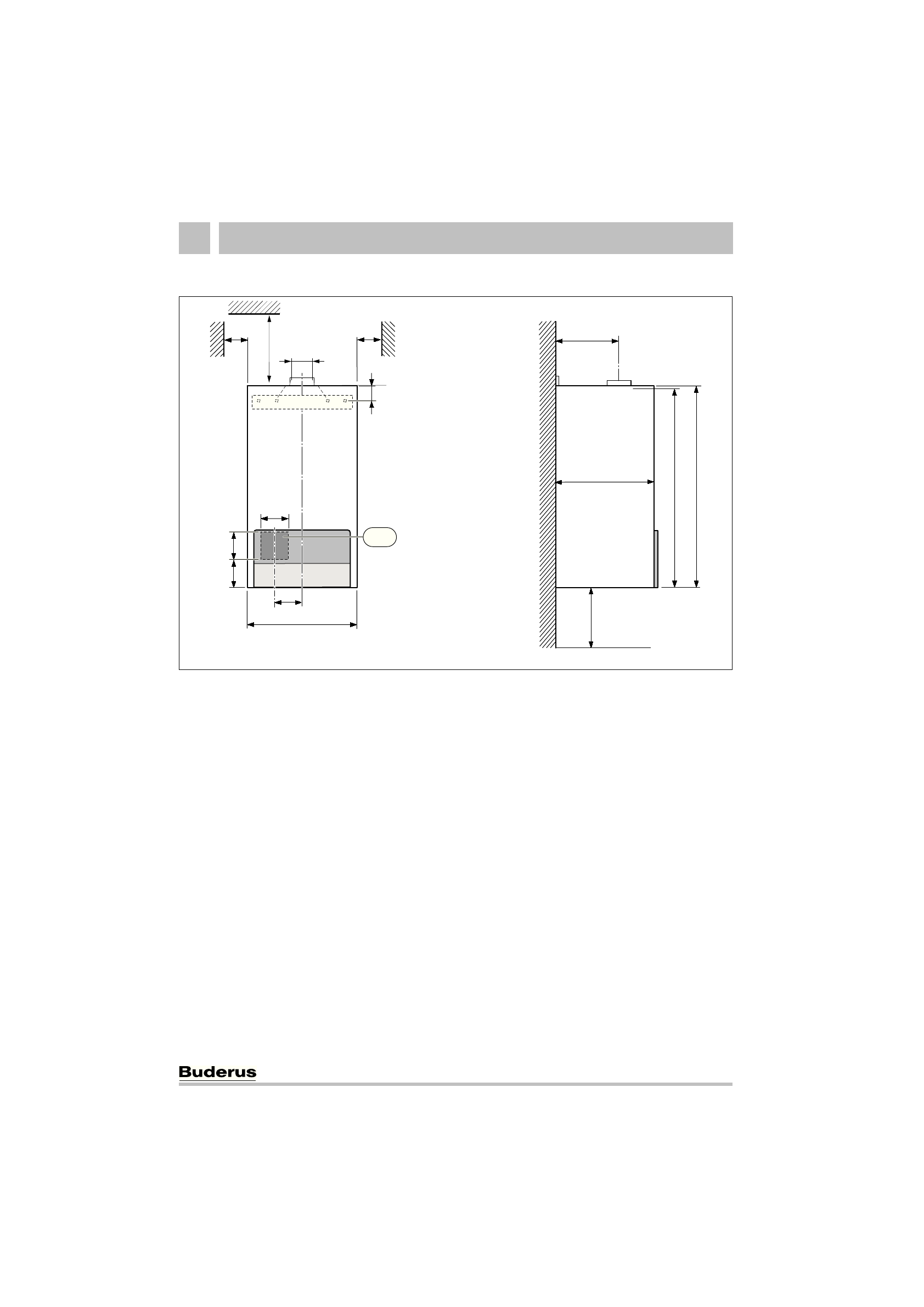
2.9
Габаритные размеры и минимальные расстояния
Рис 2
338
Расположение стенного проема для электрического
кабеля1
min.
100
400
360
725
230
735
min.
100
6 720 612 230-02.2O
≥
220
100
100
100
100
338
62
min.300
Ø130