Кондиционеры Daikin REYQ-T - инструкция пользователя по применению, эксплуатации и установке на русском языке. Мы надеемся, она поможет вам решить возникшие у вас вопросы при эксплуатации техники.
Если остались вопросы, задайте их в комментариях после инструкции.
"Загружаем инструкцию", означает, что нужно подождать пока файл загрузится и можно будет его читать онлайн. Некоторые инструкции очень большие и время их появления зависит от вашей скорости интернета.

9 Технические данные
Руководство по монтажу и эксплуатации
39
REYQ8~20+REMQ5T7Y1B
Система кондиционирования VRV IV
4P353996-1D – 2016.02
9.2
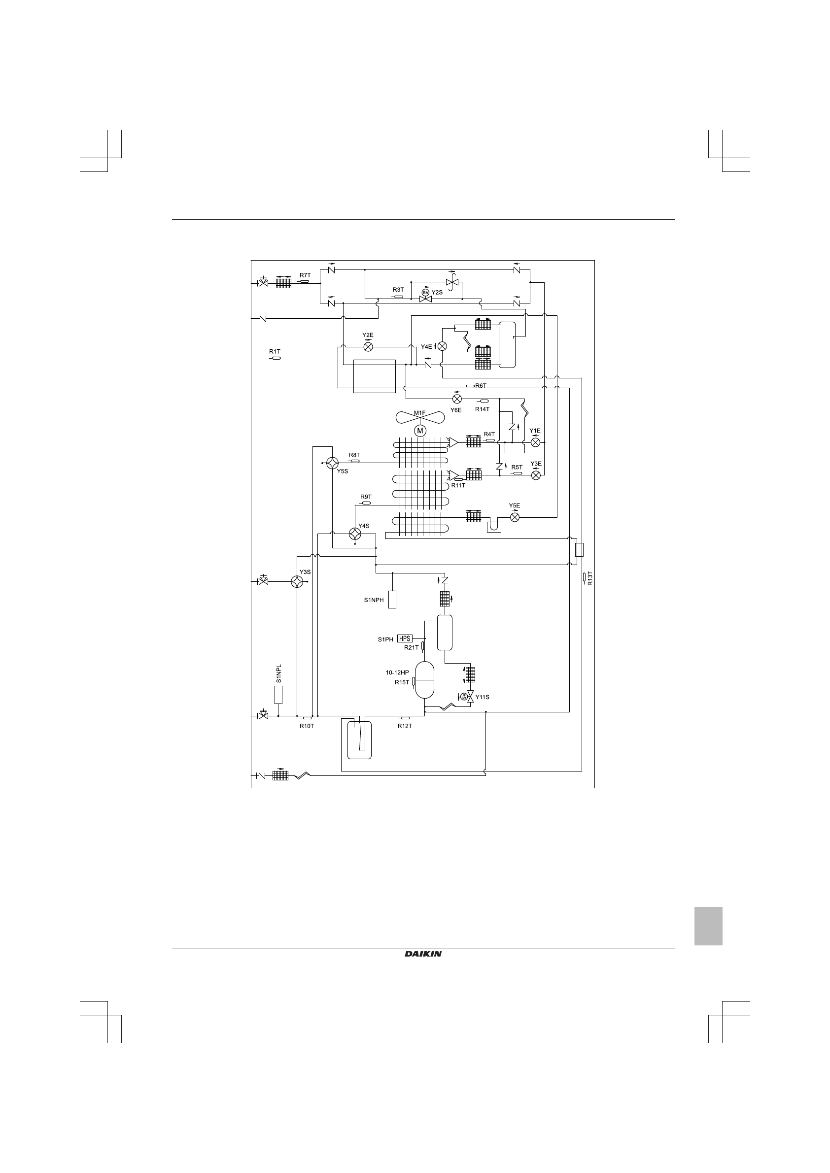
Схема трубопроводов: Наружный блок
Схема трубопроводов: 5~12 HP
3D088100 page 1
Жидкость
Сервисное
отверстие
Газ
Отверстие
для заправки
Высокое давление /
низкое давление
Содержание
- 4 Содержание
- 5 Информация о документации; 3 Техническое обслуживание; Для монтажника
- 6 Информация об агрегатах и дополнительном оборудовании; О наружном блоке
- 7 ИНФОРМАЦИЯ; Подготовка; Подготовка места установки; ПРИМЕЧАНИЕ
- 8 Подготовка; Как подобрать трубки по размеру
- 10 A B; HP
- 11 a b
- 12 Требования к защитным устройствам; Монтаж; Открытие агрегата; Как вскрыть наружный блок
- 13 Подготовка монтажной конструкции; Прокладка трубопроводов хладагента
- 14 Подсоединение; Защита от загрязнения
- 15 Как перекрывается запорный клапан
- 18 Заправка хладагентом
- 19 Порядок заправки хладагента: технологическая карта
- 20 Предварительная заправка хладагентом
- 21 Порядок заправки хладагента
- 24 RXXX; Подключение электропроводки
- 25 b a; Размер винта
- 26 Подключение электропитания; Системы с несколькими наружными блоками; Конфигурирование; Настройка по месту установки
- 27 Элементы местных настроек
- 28 Доступ к режиму 1
- 29 Режим 2: местные настройки; Целевая температура T; Описание
- 30 Автоматический поиск утечек; Ввод в эксплуатацию
- 31 Пробный запуск
- 32 Возможные неисправности и способы их устранения
- 33 Коды сбоя: общее представление
- 37 Технические данные; Зона обслуживания: наружный блок
- 39 Схема трубопроводов: Наружный блок
- 41 Пользователю; Компоновка системы; Модель; Интерфейс пользователя; ПРЕДОСТЕРЕЖЕНИЕ; Операция; Рабочий диапазон
- 42 Охлаждение; Работа системы; О работе системы; Размораживание
- 43 Программируемая осушка; О программируемой осушке
- 44 Техническое обслуживание
- 45 4 Поиск и устранение неполадок; О хладагенте; Гарантийный срок
- 46 Неисправность
- 47 Симптом: Система не работает
- 48 запахи
- 49 Переезд












