Кондиционеры Daikin FTXK-AS - инструкция пользователя по применению, эксплуатации и установке на русском языке. Мы надеемся, она поможет вам решить возникшие у вас вопросы при эксплуатации техники.
Если остались вопросы, задайте их в комментариях после инструкции.
"Загружаем инструкцию", означает, что нужно подождать пока файл загрузится и можно будет его читать онлайн. Некоторые инструкции очень большие и время их появления зависит от вашей скорости интернета.

4-6
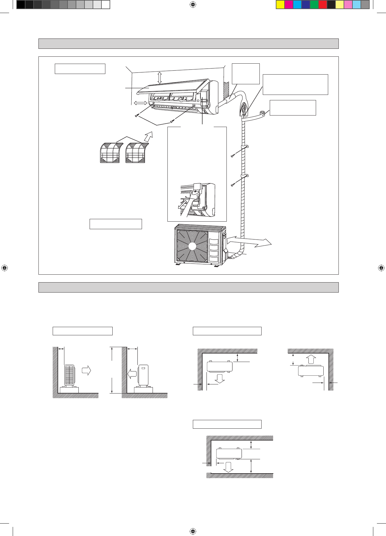
DIAGRAMMA DE LA INSTALACIÓN
INSTALACIÓN DE LA UNIDAD DE EXTERIOR
Unidad interior
Filtros del Aire
M4 x 12L
Panel frontal
75mm o más desde el techo
Unidad exterior
50mm o más desde lasparedes
(en ambos lados)
Calafatee el
huelgo del
orificio del tubo
con masilla.
Corte el tubo termoaislante a un largo
apropiado y enrollarlo con la cinta,
cuidando de que no quede ningún huelgo
en la línea de corte del tubo aislante.
Enrollar el tubo aislante
con cinta de acabado desde
abajo hacia arriba.
Tapa de servicio
500mm desde el muro
Cuando haya una pared u otro obstáculo que obstruya la circulación del aire de entrada o salida de la unidad exterior, siga
las instrucciones de instalación de abajo.
Para cualquiera de los modelo de instalación, la altura de la pared del lado de salida ha de ser de 1200mm o inferior.
•
•
Pared a dos lados
Más de 50
Pared a un lado
Más de 100
Más de 50
Más de 50
Vista superior
Vista lateral
Más de
100
Más de 150
Más de 150
Más de 300
Más de 50
Unidad: mm
1200 ou
menos
Pared a tres lados
Vista superior
Abrir la tapa de servicio
La tapa de servicio es de tipo
apertura/cierre.
Método de apertura
1) Retire los tornillos de la tapa
de servicio.
2) Extraiga la tapa de servicio
tirando de ella hacia abajo
en diagonal, en el sentido de
la flecha.
3) Tire hacia abajo.
¢
¢
4 IM-5WMYJR-1114(2)DK VZ-ES-41826 6
4 IM-5WMYJR-1114(2)DK VZ-ES-41826 6
3/27/15 11:21:45 AM
3/27/15 11:21:45 AM












