Генераторы Ryobi RGN3600 5133002563 - инструкция пользователя по применению, эксплуатации и установке на русском языке. Мы надеемся, она поможет вам решить возникшие у вас вопросы при эксплуатации техники.
Если остались вопросы, задайте их в комментариях после инструкции.
"Загружаем инструкцию", означает, что нужно подождать пока файл загрузится и можно будет его читать онлайн. Некоторые инструкции очень большие и время их появления зависит от вашей скорости интернета.

English
Français
Deutsch
Español
Italiano
Nederlands
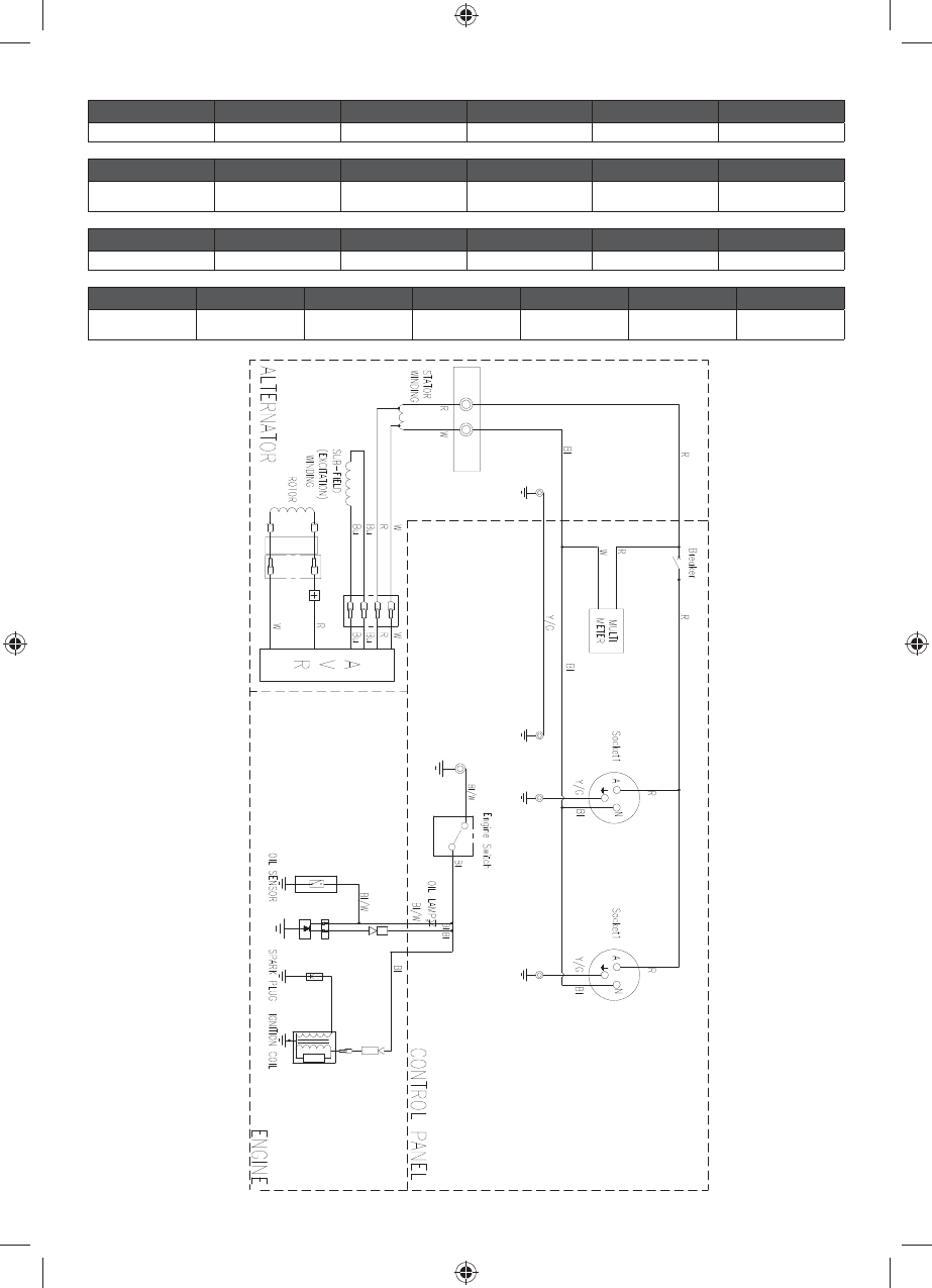
Wiring diagram
Diagramme de câblage
Schaltplan
Diagrama de cableado
Schema di cablaggio
Bedradingsschema
Polski
Č
eština
Magyar
Român
ă
Latviski
Lietuviškai
Schemat okablowania
Diagram zapojení
Vezeték diagram
Schema electric
ă
Sl
ē
guma diagramma
Elektros laid
ų
schema
Português
Dansk
Svenska
Suomi
Norsk
Русский
Esquema eléctrico
Diagram over
ledningsføring
Kopplingsschema
Johdotuskaavio
Koblingsskjema
Электромонтажная
схема
Eesti
Hrvatski
Slovensko
Sloven
č
ina
България
Українська
Turce
Juhtmestiku skeem
Dijagram oži
č
enja
Shema oži
č
enja
Schéma elektrického
zapojenia
Електрическа
схема Монтажна
схема
Ba
ğ
lant
ı
ş
emas
ı