Варочная панель Fulgor Milano CH 302 ID TC BK/2 - инструкция пользователя по применению, эксплуатации и установке на русском языке. Мы надеемся, она поможет вам решить возникшие у вас вопросы при эксплуатации техники.
Если остались вопросы, задайте их в комментариях после инструкции.
"Загружаем инструкцию", означает, что нужно подождать пока файл загрузится и можно будет его читать онлайн. Некоторые инструкции очень большие и время их появления зависит от вашей скорости интернета.

8
9
I
Installazione
Le presenti istruzioni sono rivolte all’installatore qualificato quale guida
all’installazione, regolazione e manutenzione secondo le leggi e le
normative in vigore. Gli interventi devono sempre essere effettuati ad
apparecchiatura disinserita elettricamente.
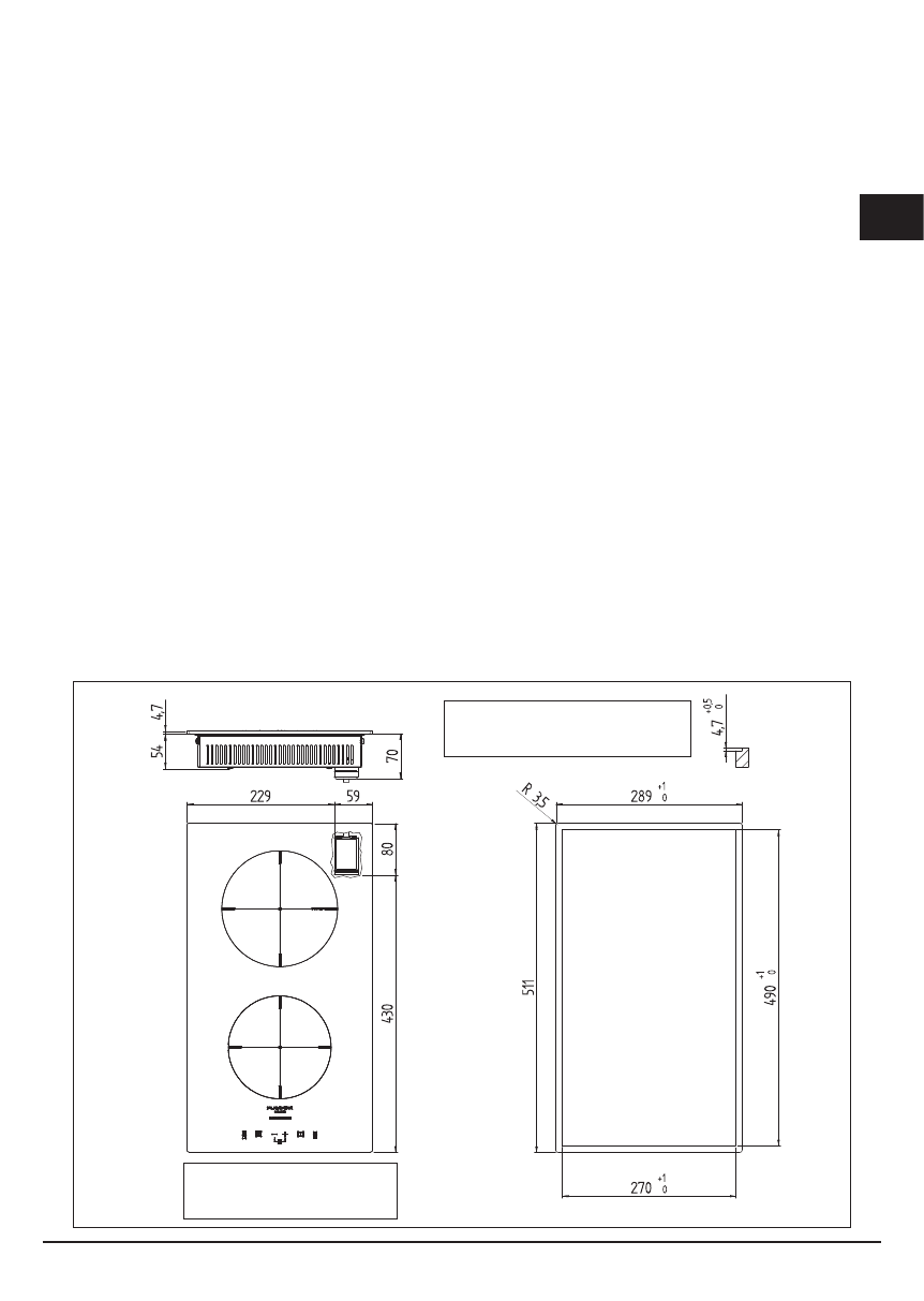
Posizionamento (Fig. 6-7-8)
L’apparecchio è previsto per essere incassato in un piano come illustrato
nell’apposita figura. Predisporre su tutto il perimetro del piano il sigillante
a corredo. E’ sconsigliabile l’installazione sopra un forno contrariamente
accertarsi che:
- il forno sia munito di un efficace sistema di raffreddamento;
- che non avvenga in nessun caso passaggio di aria calda dal forno
verso il piano;
- prevedere passaggi d’aria come indicato in figura.
Collegamento elettrico (Fig. 9)
Prima di effettuare l’allacciamento elettrico accertarsi che:
- le caratteristiche dell’impianto siano tali da soddisfare quanto indicato
sulla targa matricola applicata sul fondo del piano;
- che l’impianto sia munito di un efficace collegamento di terra secondo
le norme e le disposizioni di legge in vigore. La messa a terra è
obbligatoria a termini di legge.
Nel caso in cui l’apparecchiatura non sia munita di cavo e/o di relativa
spina utilizzare materiale idoneo per l’assorbimento indicato in targa
matricola e per la temperatura di lavoro. Il cavo in nessun punto dovrà
raggiungere una temperatura superiore di 50°C a quella ambiente.
Per il collegamento diretto alla rete è necessrio interporre un interruttore
omnipolare dimensionato per il carico di targa che assicuri la sconnesione
della rete con una distanza di apertura dei contatti che consenta la
disconnesione completa nelle condizioni della categoria di sovratensione
III, conformemente alle regole di istallazione (il cavo di terra giallo/verde
non deve essere interrotto).
La presa o interruttore omnipolare devono essere facilmente raggiungibili
con l’apparecchiatura installata.
N.B.:
- Il costruttore declina ogni responsabilità nel caso che quanto sopra e
le usuali norme antinfortunistiche non vengano rispettate.
Se il cavo di alimentazione è danneggiato, esso deve essere sostituito
dal costruttore o dal suo servizio assistenza tecnica o comunque da una
persona con qualifica similare, in modo da prevenire ogni rischio.
Istruzioni per l’installatore
Fig. 6
N.B. Per versione Semifilo l’abbassamento
di 4.7 mm non è necessario.
N.B. Non incollare o siliconare il
vetro nell’abbassamento di 4.7 mm
Характеристики
Остались вопросы?Не нашли свой ответ в руководстве или возникли другие проблемы? Задайте свой вопрос в форме ниже с подробным описанием вашей ситуации, чтобы другие люди и специалисты смогли дать на него ответ. Если вы знаете как решить проблему другого человека, пожалуйста, подскажите ему :)













