Котел Immergas Mini Eolo 28 3 E - инструкция пользователя по применению, эксплуатации и установке на русском языке. Мы надеемся, она поможет вам решить возникшие у вас вопросы при эксплуатации техники.
Если остались вопросы, задайте их в комментариях после инструкции.
"Загружаем инструкцию", означает, что нужно подождать пока файл загрузится и можно будет его читать онлайн. Некоторые инструкции очень большие и время их появления зависит от вашей скорости интернета.

1- 33
У
С
Т
А
Н
О
ВЩИК
П
О
ЛЬ
З
О
В
А
ТЕ
ЛЯ
ТЕХНИК
15 - RU
Условные обозначения:
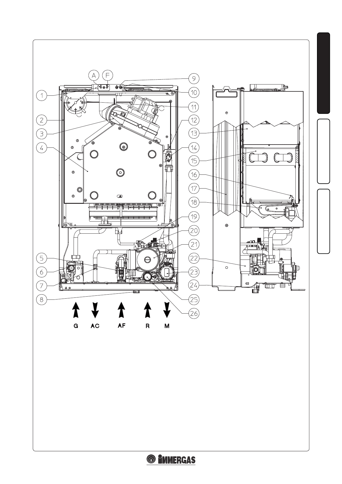
1 - Впускные отверстия (воздух A) - (дым F)
2
- Герметичная
камера
3
- Вентилятор
4
- Камера
сгорания
5 - Регулятор потока ГВС
6
- Газовый
клапан
7
- Сантехнический
зонд
8 - Кран заполнения системы
9 - Вывод давления положительный сигнал
10 - Вывод давления отрицательный сигнал
11 - Реле давления выхлопных газов
12 - Зонд подачи
13 - Вытяжной кожух
14 - Предохранительное реле давления
1.18 КОМПЛЕКТУЮЩИЕ БОЙЛЕРА.
15 - Первичный теплообменник
16 - Свечи зажигания и свечи-детекторы
17 - Расширительный бак установки.
18 - Горелка
19 - Реле давления установки
20 - Клапан стравливания воздуха
21 - Циркуляционный насос бойлера
22 - Пластинчатый теплообменник
23 - Трехходовой клапан (моторизированный)
24 - Кран слива воды из системы
25 - Байпас
26 - Предохранительный клапан 3 бар
Примечание: блок подключения(факультативно)
Содержание
- 3 УСТАНОВКА; УКАЗАНИЯ ПО ТЕХНИКЕ; без всасывающих патруб-; бойлера типа C; Примечание: блок подключения; ДA
- 4 системе электропитания; Качество горючего газа.; ч т о б ы о б е с п е ч и т ь д о л г и й; Подключение к электрической сети.
- 5 УПРАВЛЕНИЕ; Нижеописанные; ПРОБНИК; Цифровой хронотермостат вкл/выкл
- 7 Вид установки; Дымоудаление
- 8 Таблицы факторов сопротивления и эквивалентных длин.
- 9 УСТАНОВКА ВО ВНУТРЕННЕЕ; е с л и б о й л е р д о л ж е н б ы т ь
- 10 П р и м е ч а н и е :; максимального значения
- 12 плектующие или смешанные компоненты
- 13 Клапаны для выхода воздуха на
- 14 При разблокировании насоса.; При; ПРЕДОСТАВЛЯЕМЫЕ ПО ЗАКАЗУ.; • Комплект запорных вентилей для отопитель-
- 15 камера
- 16 ИНСТРУКЦИИ; ОБЩИЕ УКАЗАНИЯ ПО ТЕХНИКЕ
- 18 кран
- 19 ПОДКЛЮЧЕНИЕ
- 20 ВОЗМОЖНЫЕ НЕПОЛАДКИ И ИХ
- 22 колпачок
- 23 МЕДЛЕННОГО
- 24 Условные обозначения чертежей установки:
- 26 ЕЖЕГОДНЫЙ КОНТРОЛЬ И
Характеристики
Остались вопросы?Не нашли свой ответ в руководстве или возникли другие проблемы? Задайте свой вопрос в форме ниже с подробным описанием вашей ситуации, чтобы другие люди и специалисты смогли дать на него ответ. Если вы знаете как решить проблему другого человека, пожалуйста, подскажите ему :)