Котел Fondital MINORCA PLUS CTFS 24 CUPRUM 25.5 кВт CMKR02CG24 - инструкция пользователя по применению, эксплуатации и установке на русском языке. Мы надеемся, она поможет вам решить возникшие у вас вопросы при эксплуатации техники.
Если остались вопросы, задайте их в комментариях после инструкции.
"Загружаем инструкцию", означает, что нужно подождать пока файл загрузится и можно будет его читать онлайн. Некоторые инструкции очень большие и время их появления зависит от вашей скорости интернета.

31
Инструкции по установке
≥
1,5
m
Ø
Ø
2
Ø
2
Ø
≤
1 m
≤
1 m
≥
≥
≥
1,5
m
!
Ø
!
Ø
≥
2 Ø
≥
2 Ø
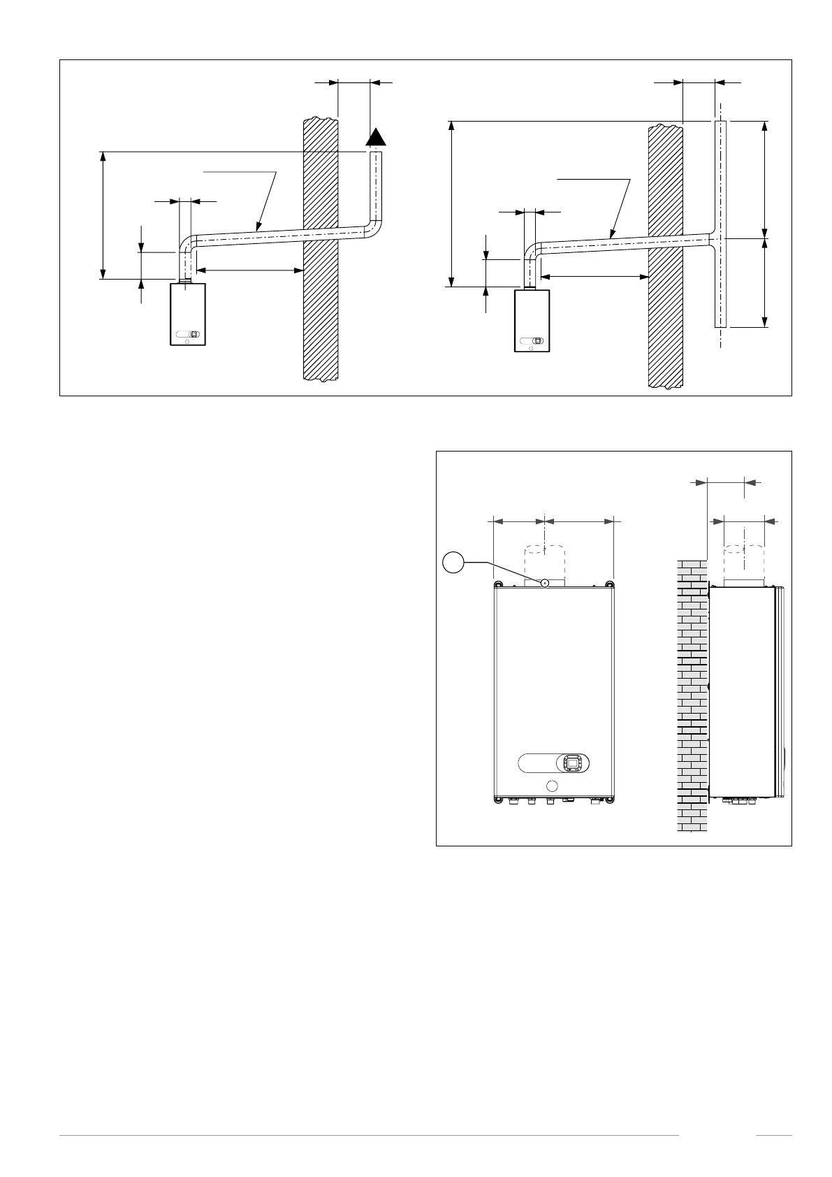
Рис. 8 Подсоединение к дымоходу котлов с открыой камерой сгорания
Прямой вывод наружу
Котлы с естественной тягой могут выводить продукты сго
-
рания напрямую в атмосферу через трубу, проходящую по
внешним стенам здания и окончание которой должно быть
оборудовано вытяжным блоком с устройством защиты от
опрокидывания тяги.
Кроме того, дымоход должен отвечать следующим требова
-
ниям:
• субгоризонтальная часть внутри здания должна быть све
-
дена к минимуму (не более 1000 мм);
• не иметь более двух изменений направления;
• осуществлять вытяжку продуктов сгорания только от од
-
ного котла;
• на участке пересечения со стеной он должен быть защи
-
щен слоем теплоизоляции, обращенным закрытой сторо
-
ной внутрь помещения и открытой стороной – в сторону
дымохода;
• труба, соединяющая котел с дымоходом, должна подни
-
маться от котла вертикально вверх минимум на два диа
-
метра, прежде чем быть повернутой к дымоходу;
• вытяжной блок должен находиться выше уровня крепле
-
ния вытяжной трубы к котлу не менее чем на 1,5 м.
• Соединительная труба должна закрепляться к вытяжному
колпаку котла винтом, который завертывается в соответ
-
ствующем отверстии
A
(см. Рис. 9 Габаритные размеры
для подключения к дымоходу модели с естественной тя
-
гой).
168
232
A
Ø 130
118
Рис. 9 Габаритные размеры для подключения к дымоходу
модели с естественной тягой
Содержание
- 2 эксплуатации и техническому обслуживанию данных устройств.; ПРЕДУПРЕЖДЕНИЕ
- 8 Инструкции для пользователя; Панель управления; RESET; Рис. 1 Панель управления
- 9 Описание
- 10 Oтображение состояния котла на дисплее; Таблица технических неисправностей
- 12 ОПАСНОСТЬ
- 13 Работа с датчиком комнатной температуры; Установка датчиков комнатной температуры; Под; ВНИМАНИЕ
- 14 Блокировка котла
- 15 Техническое обслуживание
- 16 Технические характеристики и габаритные размеры; Технические характеристики; CTFS; с помощью проточного теплообменника.
- 18 Габаритные размеры; Рис. 3 Габаритные размеры CTFS
- 19 CTN; Рис. 4 Габаритные размеры CTN
- 20 Гидравлические схемы; C G; Рис. 5 Гидравлические схемы CTFS
- 21 Рис. 6 Гидравлические схемы CTN
- 22 Рабочие характеристики
- 23 Табл. 7 Тарировочные данные CTN 24; Общие технические характеристики; Табл. 8 Oбщие характеристики CTFS
- 24 Табл. 9 Oбщие характеристики CTN
- 27 Инструкции по установке; Нормы по установке; Выбор места установки котла; Система воздухозабора и дымоотвода; Размещение котла
- 29 Подключение к гидравлической сети; Вентиляция помещений
- 30 Система воздухозабора и дымоотвода; фективное и постоянное удаление продуктов сгорания
- 31 Прямой вывод наружу; Рис. 9 Габаритные размеры для подключения к дымоходу
- 32 Возможные схемы для систем воздухозабора и дымоотвода
- 36 Забор воздуха; Дымоотвод
- 37 Рис. 13 Размеры для подсоединения раздельных труб воз
- 38 Пример 1
- 39 Проверка КПД горения; и удерживать их на протяже; Система раздельных труб; Данные измерения проводить при работающем котле.; Рис. 16 Примеры мест для контроля дымовых газов
- 40 Подключение к газовой сети; Рис. 17 Подключение к газовой сети; Подключение к гидравлической сети; последующем могут повредить насос или теплообменник.
- 42 Установка датчиков комнатной температуры; регулирования
- 43 Работа с датчиком температуры; Tm
- 46 Заполнение системы; ствить стравливание воздуха.
- 47 Включение котла; Перед пуском котла следует убедиться в том, что:; при включенном котле не должно; ладку котла на соответствующий вид газа (см.; “Инструкции для пользователя”; Инструкции для; Располагаемый напор; Рис. 19 Располагаемый напор CTFS
- 49 Электрические схемы; Рис. 21 Электрическая схема CTFS
- 51 VE
- 52 Переналадка котла на другой тип газа и регулировка горелки; • изменить значение параметра
- 53 IN; Регулировка минимальной мощности
- 54 Испытание котла; Предварительный контроль; Перед проведением испытаний котла следует убедиться в том, что:; Включение и выключение; Правила включения и выключения котла см. в разделе; «Инструкции для пользователя”
- 55 Техническое обслуживание; ный Центр или к квалифицированному специалисту.; График технического обслуживания; При выполнении первого технического обслуживания проверить:
- 56 Анализ параметров процесса горения
- 57 Неисправности, их причины и устранение; Таблица технических неисправностей; НЕИСПРАВНОСТИ
- 60 ООО «Фондиталь»