Котел Fondital MINORCA PLUS CTFS 24 CUPRUM 25.5 кВт CMKR02CG24 - инструкция пользователя по применению, эксплуатации и установке на русском языке. Мы надеемся, она поможет вам решить возникшие у вас вопросы при эксплуатации техники.
Если остались вопросы, задайте их в комментариях после инструкции.
"Загружаем инструкцию", означает, что нужно подождать пока файл загрузится и можно будет его читать онлайн. Некоторые инструкции очень большие и время их появления зависит от вашей скорости интернета.

28
Инструкции по установке
IT
ES FR PL PT RU NL DE GB GR RO CZ HU TR
1
Tiraggio
naturale
Tiro
natural
Tirage
naturel
iąg
naturalny
Tiragem
natural
Natuurlijke
trek
Schornstein-
zug
Natural
draught
Φυσικός
ελκυσμός
Tiraj
natural
Přirozený tah
Kémény
Bacalı
2
Tiraggio
forzato
Tiro
forzado
Tirage
forcé
iąg
wymuszony
Tiragem
forçada
Geforceerde
trek
Raumluftu-
nabhängig
Forced
draught
Αναγκαστικός
ελκυσμός
Tiraj forat
Nucený tah
Ventilátor
Hermetik fanlı
C
Uscita acqua
calda sanitaria
Salida agua
caliente sani-
taria
Sortie eau
chaude sani-
taire
Wyjście ciepłej
wody
użytkowej
Saída de
água quente
sanitária
Uitgang warm
tapwater
WW
(Auslauf War-
mwasser)
DHW
Έξοδος
θερμού νερού
οικιακής
Ieire apă cal-
dă menajeră
Výstup TPV
HMV
csatlakozás
Sıcak su
çıkı
F
Ingresso
acqua fredda
sanitaria
Entrada agua
fría
Eau froide
sanitaire
Wejście
wody zimnej
Entrada de
água
fria
Ingang koud
tapwater
KW
(Einlauf Kal-
twasser)
Domestic
cold water
Είσοδος
ψυχρού νερού
Intrare apă
rece
Přívod
studené vody
Hidegvíz
csatlakozás
Soğuk
su giri
R
Ritorno
impianto
riscaldamento
Retorno
instalación
calefacción
Retour instal-
lation
Powrót
systemu
ogrzewania
Retorno do
sistema de
aquecimento
Terugvoer
verwarming-
sinstallatie
RL
(Rücklauf
Heizanlage)
CH return
Επιστροφή
εγκατάστασης
θέρμανσης
Retur
instalaie
încălzire
Vratné
potrubí ÚT
Fűtési
rendszer
visszatérő
csatlakozás
Kalorifer
dönü
M
Mandata
impianto
riscaldamento
Ida
instalación
calefacción
Départ
installation
Zasilanie
systemu
grzewczego
Ida do sistema
de
aquecimento
Toevoer
verwarming-
sinstallatie
VL
(Vorlauf Hei-
zanlage)
Προσαγωγή
εγκατάστασης
θέρμανσης
Tur instalaie
încălzire
Průtok vody
Fűtési
rendszer
előremenő
csatlakozás
Kalorifer
gidi
G
Ingresso
gas
Entrada gas
Entrée gaz
Wejście gazu Entrada de gás
Gasingang
Gas
(Gaseinlass)
Gas inlet
Είσοδος
αερίου
Racord gaz
Přívod plynu
Gázcsat-
alkozás
Gaz
0DIMACAR24
Рис. 7 Шаблон из картона
Содержание
- 2 эксплуатации и техническому обслуживанию данных устройств.; ПРЕДУПРЕЖДЕНИЕ
- 8 Инструкции для пользователя; Панель управления; RESET; Рис. 1 Панель управления
- 9 Описание
- 10 Oтображение состояния котла на дисплее; Таблица технических неисправностей
- 12 ОПАСНОСТЬ
- 13 Работа с датчиком комнатной температуры; Установка датчиков комнатной температуры; Под; ВНИМАНИЕ
- 14 Блокировка котла
- 15 Техническое обслуживание
- 16 Технические характеристики и габаритные размеры; Технические характеристики; CTFS; с помощью проточного теплообменника.
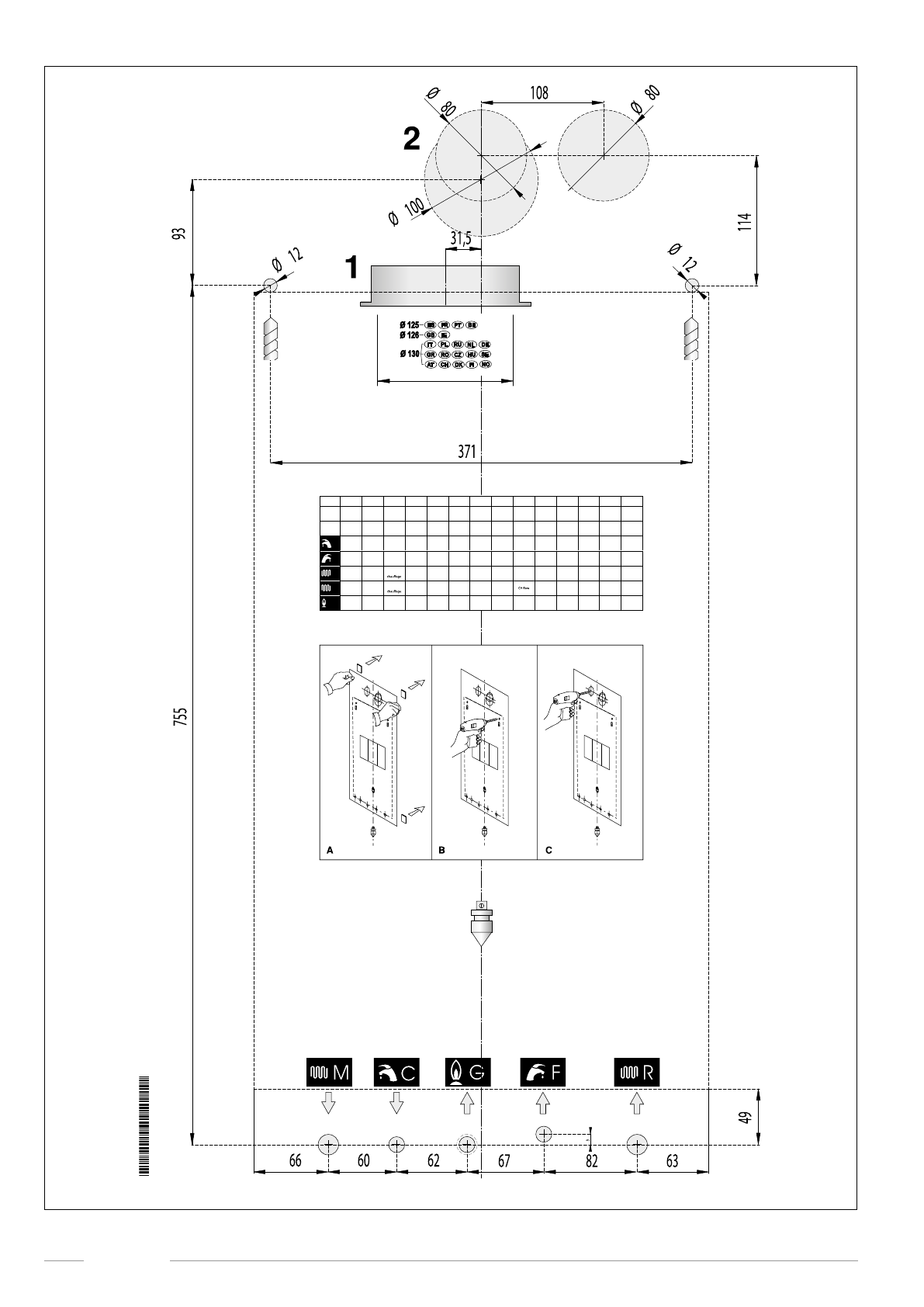
- 18 Габаритные размеры; Рис. 3 Габаритные размеры CTFS
- 19 CTN; Рис. 4 Габаритные размеры CTN
- 20 Гидравлические схемы; C G; Рис. 5 Гидравлические схемы CTFS
- 21 Рис. 6 Гидравлические схемы CTN
- 22 Рабочие характеристики
- 23 Табл. 7 Тарировочные данные CTN 24; Общие технические характеристики; Табл. 8 Oбщие характеристики CTFS
- 24 Табл. 9 Oбщие характеристики CTN
- 27 Инструкции по установке; Нормы по установке; Выбор места установки котла; Система воздухозабора и дымоотвода; Размещение котла
- 29 Подключение к гидравлической сети; Вентиляция помещений
- 30 Система воздухозабора и дымоотвода; фективное и постоянное удаление продуктов сгорания
- 31 Прямой вывод наружу; Рис. 9 Габаритные размеры для подключения к дымоходу
- 32 Возможные схемы для систем воздухозабора и дымоотвода
- 36 Забор воздуха; Дымоотвод
- 37 Рис. 13 Размеры для подсоединения раздельных труб воз
- 38 Пример 1
- 39 Проверка КПД горения; и удерживать их на протяже; Система раздельных труб; Данные измерения проводить при работающем котле.; Рис. 16 Примеры мест для контроля дымовых газов
- 40 Подключение к газовой сети; Рис. 17 Подключение к газовой сети; Подключение к гидравлической сети; последующем могут повредить насос или теплообменник.
- 42 Установка датчиков комнатной температуры; регулирования
- 43 Работа с датчиком температуры; Tm
- 46 Заполнение системы; ствить стравливание воздуха.
- 47 Включение котла; Перед пуском котла следует убедиться в том, что:; при включенном котле не должно; ладку котла на соответствующий вид газа (см.; “Инструкции для пользователя”; Инструкции для; Располагаемый напор; Рис. 19 Располагаемый напор CTFS
- 49 Электрические схемы; Рис. 21 Электрическая схема CTFS
- 51 VE
- 52 Переналадка котла на другой тип газа и регулировка горелки; • изменить значение параметра
- 53 IN; Регулировка минимальной мощности
- 54 Испытание котла; Предварительный контроль; Перед проведением испытаний котла следует убедиться в том, что:; Включение и выключение; Правила включения и выключения котла см. в разделе; «Инструкции для пользователя”
- 55 Техническое обслуживание; ный Центр или к квалифицированному специалисту.; График технического обслуживания; При выполнении первого технического обслуживания проверить:
- 56 Анализ параметров процесса горения
- 57 Неисправности, их причины и устранение; Таблица технических неисправностей; НЕИСПРАВНОСТИ
- 60 ООО «Фондиталь»