Котел Buderus Logano S121-2 26 - инструкция пользователя по применению, эксплуатации и установке на русском языке. Мы надеемся, она поможет вам решить возникшие у вас вопросы при эксплуатации техники.
Если остались вопросы, задайте их в комментариях после инструкции.
"Загружаем инструкцию", означает, что нужно подождать пока файл загрузится и можно будет его читать онлайн. Некоторые инструкции очень большие и время их появления зависит от вашей скорости интернета.

2
Информация об оборудовании
Logano S121-2 - Оставляем за собой право на изменения!
10
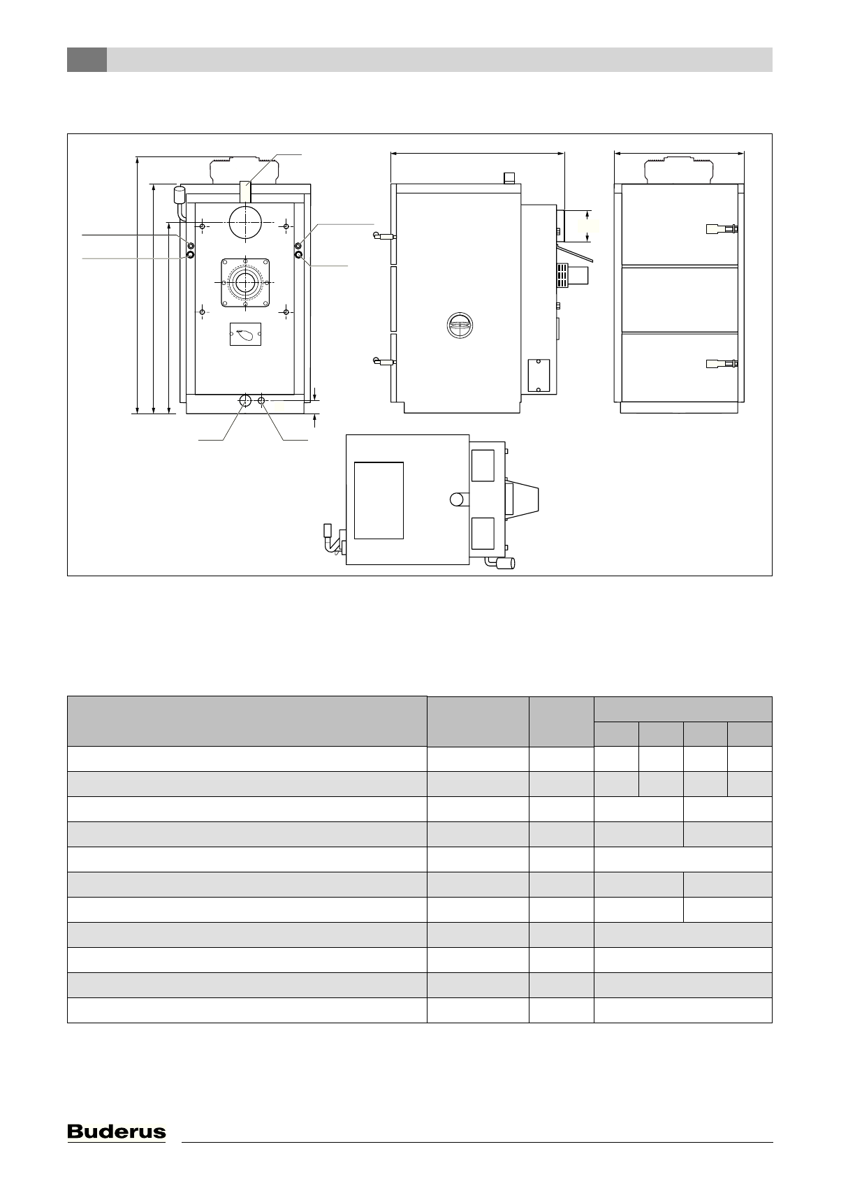
2.10 Размеры и технические характеристики
Рис 4
Размеры и подключения Logano S121-2
RK
обратная линия котла (R 1
½
")
VK
подающая линия котла (R 1
½
")
MV
место замера температуры для термической
защиты (R
½
")
EL
слив (R
½
")
VL-SWT
подающая линия предохранительного
теплообменника (R
½
")
RL-SWT
обратная линия предохранительного
теплообменника (R
½
")
H
H
VK
H
AA
H
RK/EL
L
B
D
AA
6 720 647 613-08.2T
VK
VL/RL
SWT
VL/RL
SWT
MV
MV
EL
RK
Сокращение
Ед.изм.
Тип котла
21
26
32
38
Типоразмер котла
–
кВт
21
26
32
38
Длина
L
мм
753
853
803
903
Ширина
B
мм
623
683
Высота с системой управления
H
мм
1257
1322
Ø
патрубка подключения отвода дымовых газов
D
AA
мм
150
Высота патрубка подключения отвода дымовых газов
H
AA
мм
900
977
Высота подающей линии котла
H
VK
мм
1101
1166
Высота обратной линии котла/слива
H
RK
/EL
мм
60
Подающая линия предохранительного теплообменника
VL
SWT
(R
½
")
мм
G1/2"
Обратная линия предохранительного теплообменника RL
SWT
(R
½
")
мм
G1/2"
Место замера температуры для термической защиты
MV (R
½
")
мм
G1/2"
Таб. 4
Размеры и подключения