Винные шкафы AEG SWB63001DG - инструкция пользователя по применению, эксплуатации и установке на русском языке. Мы надеемся, она поможет вам решить возникшие у вас вопросы при эксплуатации техники.
Если остались вопросы, задайте их в комментариях после инструкции.
"Загружаем инструкцию", означает, что нужно подождать пока файл загрузится и можно будет его читать онлайн. Некоторые инструкции очень большие и время их появления зависит от вашей скорости интернета.

262 www.aeg.com
PLACERING
Tillräcklig luftcirkulation måste
säkerställas runt produkten för att
förhindra överhettning. För att erhålla
tillräcklig ventilation, följ instruktionerna
som är relevanta för installationen.
Installera produkten på en plats där
omgivningstemperaturen motsvarar den
klimatklass som anges på typskylten:
ELEKTRISK ANSLUTNING
VARNING!
Allt arbete avseende elektricitet
som krävs för att installera denna
produkt ska utföras av en behörig
elektriker.
Klimatklass
Omgivnings-
temperatur
SN
+10 °C till +32 °C
N
+16 °C till +32 °C
ST
+16 °C till +38 °C
T
+16 °C till +43 °C
VARNING!
Denna produkt måste vara
ansluten till ett jordat eluttag.
Tillverkaren accepterar
inget ansvar om dessa
säkerhetsanvisningar inte följs.
Konsultera en behörig elektriker
eller servicetekniker om jordningens
instruktioner inte är helt tydliga, eller
om tvivel råder om huruvida produkten
är ordentligt jordad.
Kontrollera att nätspänningen och
nätfrekvensen överensstämmer med
hushållsapparatens märkdata som anges
på typskylten före anslutning till ett eluttag.
VARNING!
Vi rekommenderar att du väntar
4 timmar innan du ansluter och
installerar produkten för att tillåta
kylmediet att strömma tillbaka in
i kompressorn.
Produkten måste vara jordad.
Nätkabelns stickkontakt är försedd med
en kontakt för detta ändamål.
Om nätspänningsmatningen inte är
jordad, anslut produkten till en separat
jord enligt gällande bestämmelser.
Kontakta en behörig elektriker.
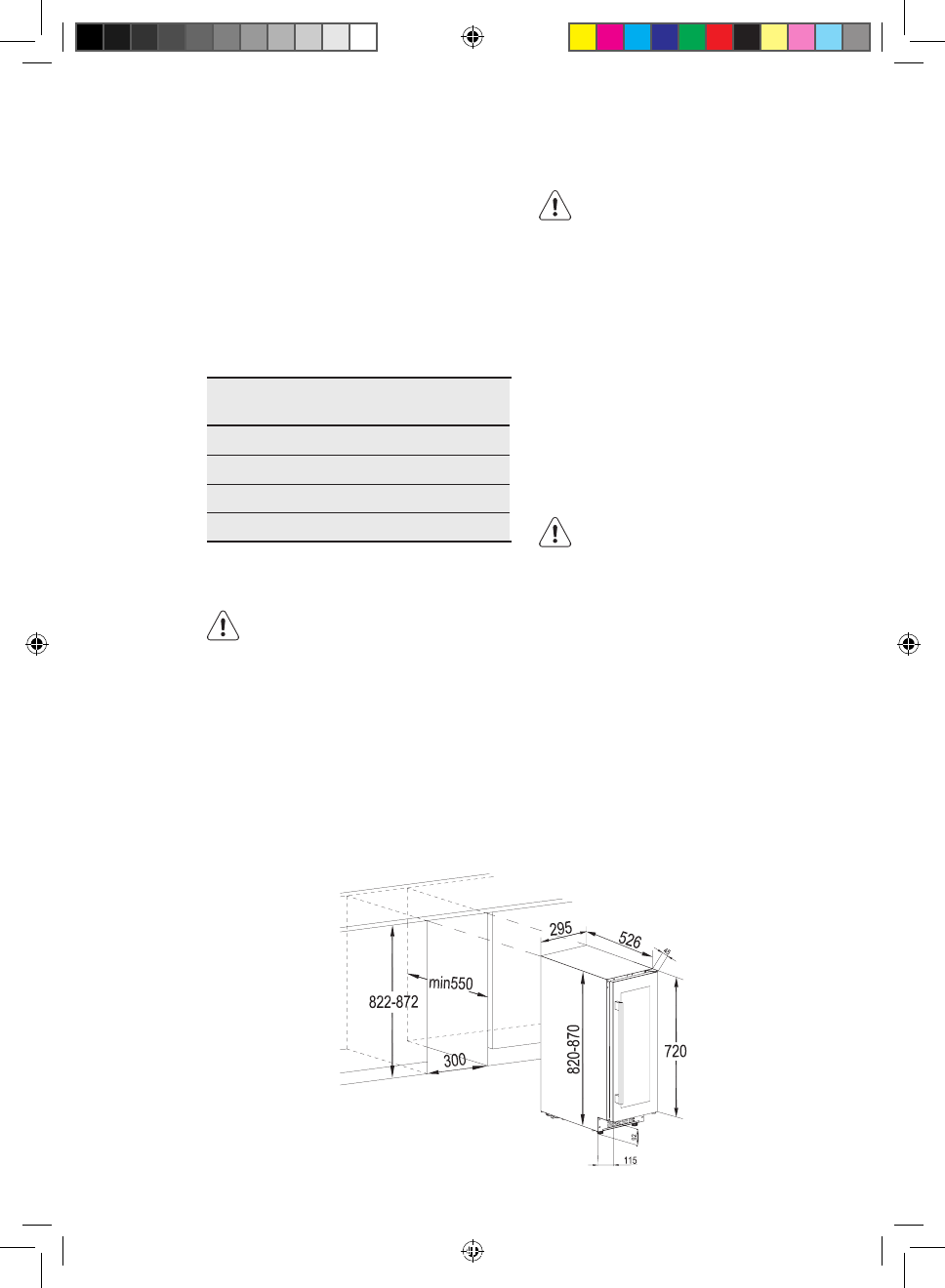
INSTALLATION
INSTALLATIONSMÅTT (MM)
OCH VENTILATIONSKRAV
SWB63001DG-SWE63001DG_Wine_cellar_AEG_CZ_DA_EN_ET_FI_FR_IT_LT_LV_NO_PL_RO_RU_SK_SV.indd 262
2017-06-28 10:10:35
Содержание
- 219 БЕЗОПАСНОСТЬ ДЕТЕЙ И ЛИЦ С ОГРАНИЧЕННЫМИ; СВЕДЕНИЯ ПО ТЕХНИКЕ БЕЗОПАСНОСТИ
- 220 УКАЗАНИЯ ПО БЕЗОПАСНОСТИ
- 221 ЭКСПЛУАТАЦИЯ
- 223 ВКЛЮЧЕНИЕ; ЕЖЕДНЕВНОЕ ИСПОЛЬЗОВАНИЕ; ОЧИСТКА
- 224 ХРАНЕНИЕ ВИНА
- 226 УСТАНОВКА; И ТРЕБОВАНИЯ К ВЕНТИЛЯЦИИ
- 227 УСТАНОВКА ВЕРХНЕЙ СКОБЫ; ПЕРЕВЕШИВАНИЕ ДВЕРЦЫ
- 229 ПЕРИОДИЧЕСКАЯ ЧИСТКА; УХОД И ОЧИСТКА; ЗАМЕНА ЛАМПЫ
- 230 ПОИСК И УСТРАНЕНИЕ НЕИСПРАВНОСТЕЙ; СБОЙ В СЕТИ
- 232 ШУМЫ ПРИ РАБОТЕ
- 233 ТЕХНИЧЕСКИЕ ДАННЫЕ
- 234 ОХРАНА ОКРУЖАЮЩЕЙ СРЕДЫ; УПАКОВОЧНЫЕ
Характеристики
Остались вопросы?Не нашли свой ответ в руководстве или возникли другие проблемы? Задайте свой вопрос в форме ниже с подробным описанием вашей ситуации, чтобы другие люди и специалисты смогли дать на него ответ. Если вы знаете как решить проблему другого человека, пожалуйста, подскажите ему :)