Котел Ferroli Divatop 60 C24 - инструкция пользователя по применению, эксплуатации и установке на русском языке. Мы надеемся, она поможет вам решить возникшие у вас вопросы при эксплуатации техники.
Если остались вопросы, задайте их в комментариях после инструкции.
"Загружаем инструкцию", означает, что нужно подождать пока файл загрузится и можно будет его читать онлайн. Некоторые инструкции очень большие и время их появления зависит от вашей скорости интернета.

29
DI VAtop 6 0 c 24
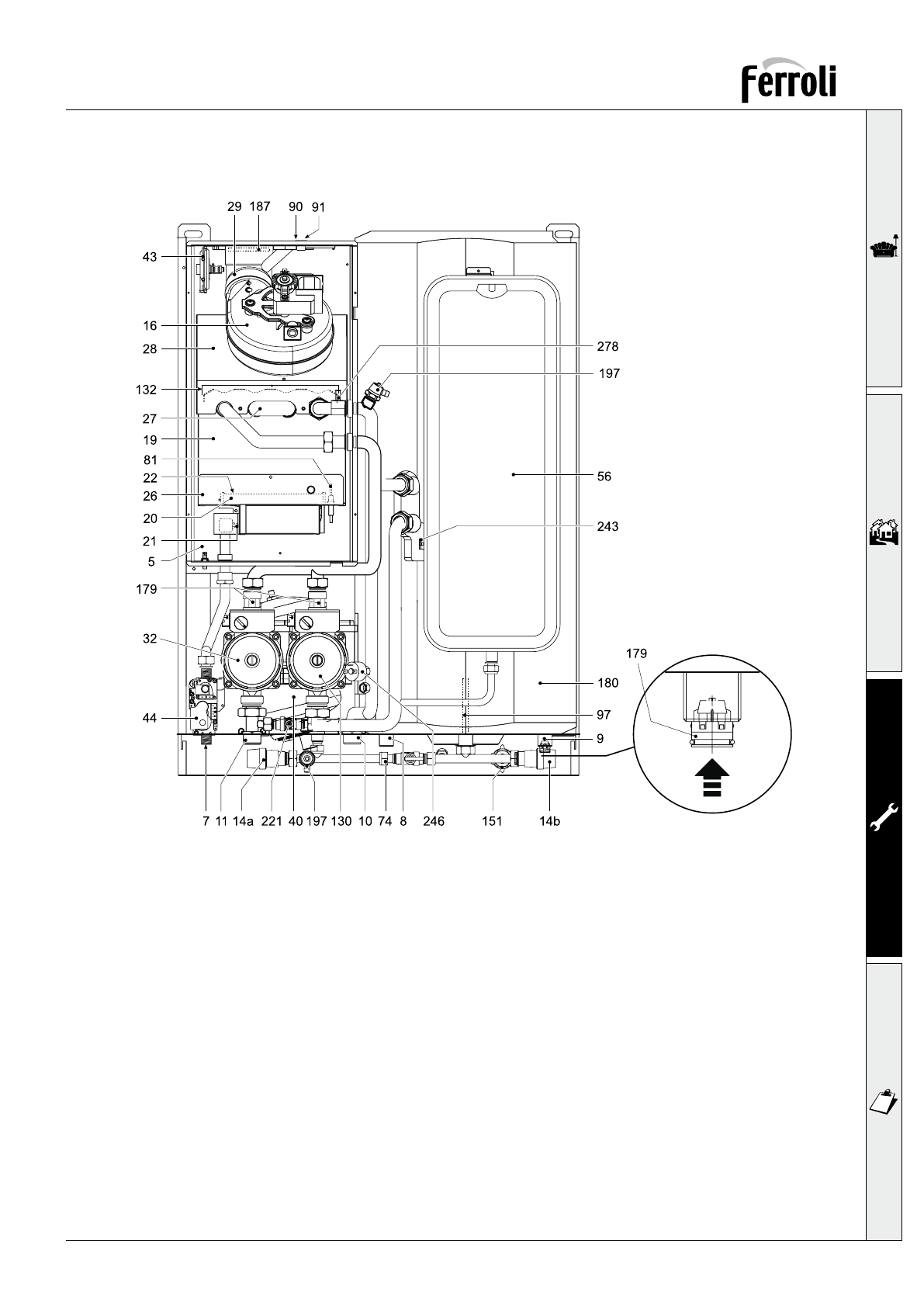
Общий вид и основные узлы
4.2
7
Вход газа
8
Выход воды ГВС
9
Вход воды ГВС
10
Напорный трубопровод системы отопления
11
Обратный трубопровод системы отопления
14a
Предохранительный клапан 3 бар (отопление)
14b
Предохранительный клапан 9 бар (бойлер)
19
Топка
20
Горелка
21
Основная форсунка
22
Горелочное устройство
26
Термоизоляция камеры сгорания
27
Медный теплообменник
28
Коллектор дымовых газов
29
Выпускной коллектор дымовых газов
32
Циркуляционный насос системы отопления
40
Расширительный бак ГВС
44
Газовый клапан
56
Расширительный бак
74
Кран заполнения системы отопления
78
Рассекатель дымовых газов
81
Электрод розжига и обнаружения пламени
97
Магниевый анод
126
Термостат дымовых газов
130
Циркуляционный насос бойлера
151
Сливной кран бойлера
179
Обратный клапан
180
Бойлер
197
Ручной воздухоотводчик
221
Байпас
243
Датчик ГВС
246
Датчик давления
278
Многофункциональный датчик отопления
(предохранительная и регулировочная функции)
290
Противоветровая решетка (опционально)
рис. 31 - Общий вид