Котел Ferroli Divatop 60 C24 - инструкция пользователя по применению, эксплуатации и установке на русском языке. Мы надеемся, она поможет вам решить возникшие у вас вопросы при эксплуатации техники.
Если остались вопросы, задайте их в комментариях после инструкции.
"Загружаем инструкцию", означает, что нужно подождать пока файл загрузится и можно будет его читать онлайн. Некоторые инструкции очень большие и время их появления зависит от вашей скорости интернета.

DI VAtop 6 0 c 24
20
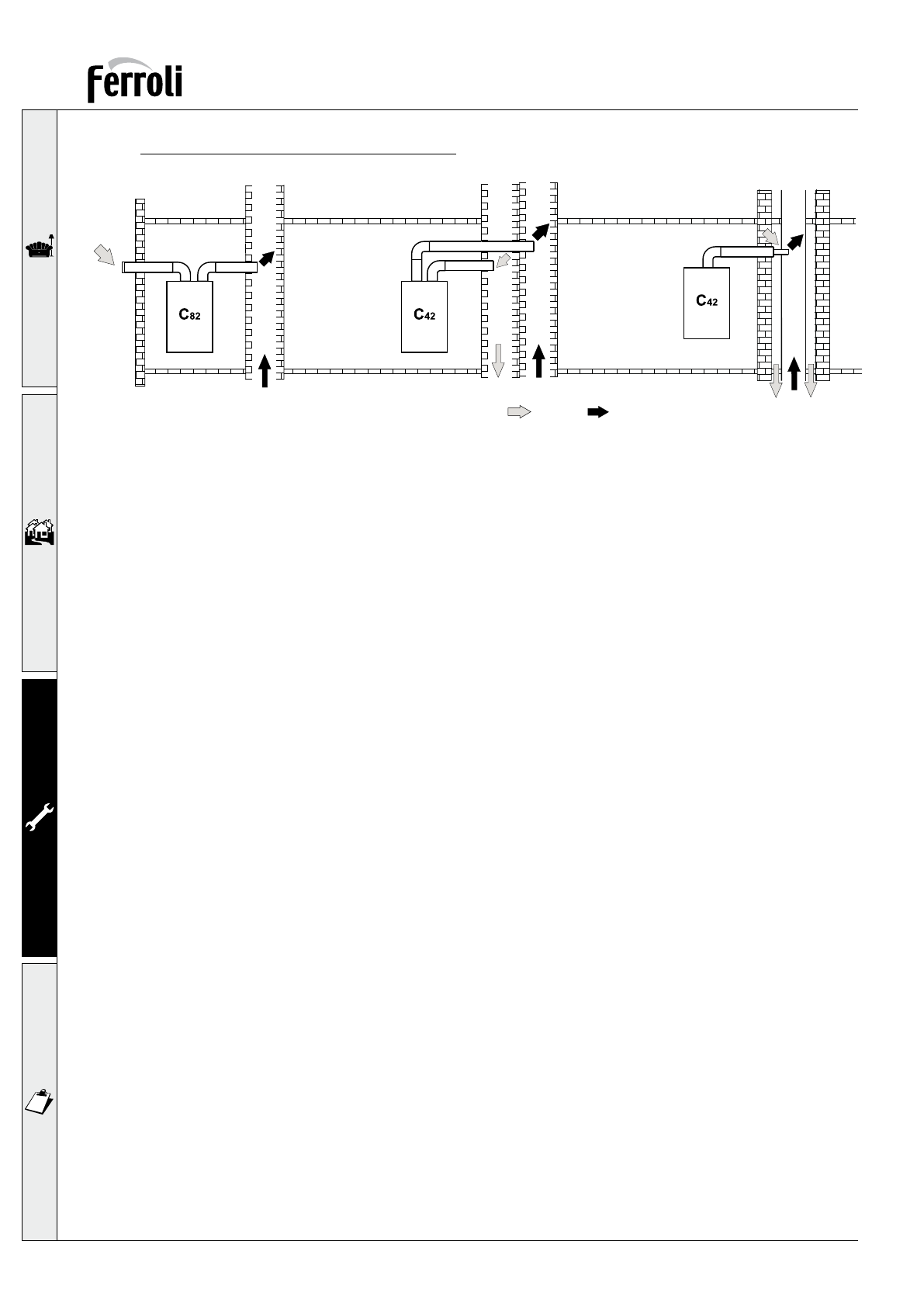
Подключение к коллективным дымоходам
рис. 25 - Примеры подключения к дымоходам ( -воздух / - дымовые газы)
Если предполагается подключать котел
DIVAtop 60 F 24
к коллективному дымоходу или к одиночной ды-
мовой трубе с естественной тягой, дымоход или дымовая труба должны проектироваться квалифициро-
ванными специалистами с соблюдением действующих норм для котлов с герметичной камерой сгорания,
укомплектованных вентилятором.
В частности, нормой предусмотрено, что дымоходы и дымовые трубы должны обладать следующими ха-
рактеристиками:
Их размеры должны быть рассчитаны по методике, приведенной в действующих нормах;
•
Они должны быть непроницаемыми для продуктов сгорания, устойчивыми к воздействию дымовых
•
газов и высоких температур, непроницаемыми для конденсата;
Дымоход или дымовая труба должны располагаться по вертикали, не иметь узких мест, сечение труб
•
должно быть круглым или квадратным.
Каналы горячих дымовых газов должны проходить на безопасном расстоянии от горючих материалов
•
или быть изолированы.
Они должны быть подключены только к одному котлу на этаж.
•
Они должны быть подключены к котлоагрегатам одного типа (или все котлы с принудительной тягой
•
или все котлы с естественной тягой).
В магистральных каналах запрещается использование механических всасывающих устройств;
•
При работе в стабильных условиях дымоход или дымовая труба должны находится в разрежении по
•
всей своей длине;
Внизу должна устраиваться камера для сбора твердых веществ или возможного конденсата, которая
•
оборудуется металлическим лючком с герметичным прилеганием.