Котел Ferroli DIVABEL 24 с закрытой камерой сгорания - инструкция пользователя по применению, эксплуатации и установке на русском языке. Мы надеемся, она поможет вам решить возникшие у вас вопросы при эксплуатации техники.
Если остались вопросы, задайте их в комментариях после инструкции.
"Загружаем инструкцию", означает, что нужно подождать пока файл загрузится и можно будет его читать онлайн. Некоторые инструкции очень большие и время их появления зависит от вашей скорости интернета.

DIVABEL
7
RU
Внимание:
категорически запрещается срывать пломбы завода изготовителя или сервис
ного центра, в случаях повреждения пломбы – сервисный центр имеет право снять обо
рудование с гарантии. Необходимо проводить ежегодное техническое обслуживание для
продления срока гарантии и вашей безопасности.
4.3 Техническое обслуживание
Периодический контроль
Чтобы обеспечить исправную работу агрегата с течением времени, необходимо раз в год
приглашать квалифицированный персонал для следующих проверок:
•
Управляющие и предохранительные устройства (газовый клапан, термостаты и пр.)
должны исправно работать.
•
Контур отвода дыма должен быть безукоризненно эффективным.
(Котел с закрытой камерой: вентилятор, реле давления и пр. – Закрытая камера долж -
на быть герметичной: прокладки, прижимы для кабелей и пр.).
(Котел с открытой камерой: стабилизатор тяги, термостат дыма и пр.).
•
Трубопроводы и оголовки для забора воздуха и отвода дыма не должны быть загро -
мождены и не должны иметь утечек.
•
Горелка и теплообменник должны быть чистыми и без отложений. Для их очистки не
используйте химические продукты или стальные щетки.
•
Электрод не должен иметь нагара и должен правильно располагаться.
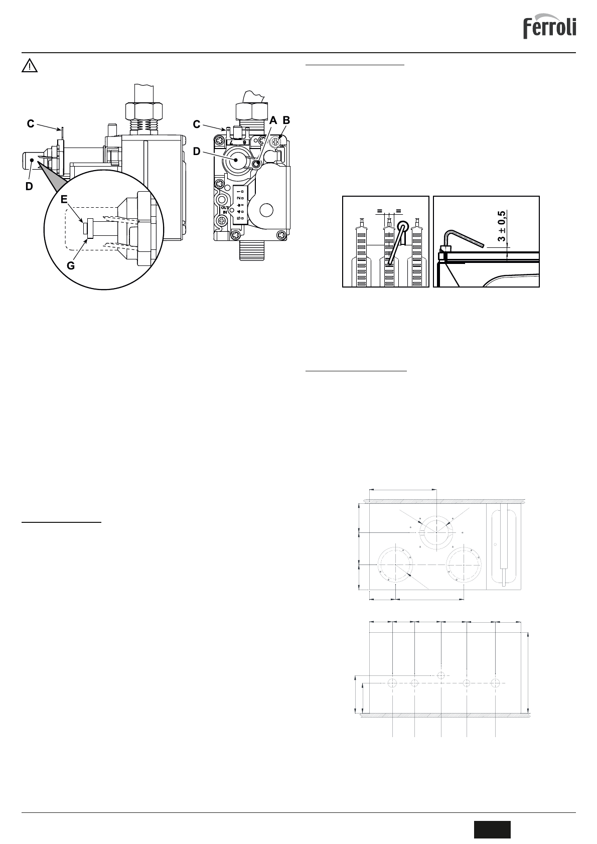
рис. 15 – Положение электрода
•
Все газовые и гидравлические соединения должны быть герметичными.
•
Давление воды в холодном отопительном контуре должно составлять около 1,2 бара;
в противном случае следует настроить это значение.
•
Циркуляционный насос не должен быть заблокированным.
•
Давление воздуха в расширительном баке должно равняться 1 бар.
•
Расход и давление газа должны соответствовать значениям из соответствующих
таблиц.
4.4 Устранение неисправностей
Диагностика
Котел оснащен современной системой самодиагностики. В случае возникновения ка -
кой-либо неисправности, символ неисправности (поз. 11 – рис. 1) и соответствующий код
начинают мигать на дисплее.
Некоторые неисправности (обозначаемые буквой «А») приводят к постоянной блокировке
котла: В этом случае следует произвести ручной сброс блокировки, нажав кнопку
«RESET»
(поз. 6 – рис. 1) в течение 1 секунды или кнопку
«RESET»
на пульте ДУ с таймером
(опция), если таковой установлен; если котел не включится, то необходимо устранить
неисправность.
Другие неисправности (обозначенные буквой «F») вызывают временную блокировку кот -
ла. Данная блокировка снимается автоматически, как только вызвавший ее возникнове -
ние параметр возвращается в нормальные рабочие пределы.
•
Проверьте правильность запрограммированных параметров и, если необходимо, вне -
сите необходимые изменения (мощность, температура и т.д.).
Регулировка мощности отопления
Для регулировки мощности отопления установите котел в режим TEST (см. п. 4.1). Нажи -
майте кнопки задания температуры в системе отопления (поз. 3 – рис. 1) для соответствен-
ного увеличения или уменьшения мощности (минимальная – 00, максимальная – 100). При
нажатии в течение 5 секунд после этого кнопки
«RESET»
сохранится только что заданная
максимальная мощность.
Выйдите из режима TEST (см. п. 4.1).
Регулировка мощности розжига
В течении 5 секунд удерживайте кнопку
«RESET»
, чтобы активировать режим настройки
параметров.
Кнопками отопления (поз.З и 4 – рис.1) пролистайте меню с параметра Р01 до Р09.
Кнопками ГВС (поз.1 и 2 – рис.1) измените параметр Р09 до необходимого значения.
Запоминание происходит автоматически.
В течении 5 секунд удерживайте кнопку
«RESET»
, чтобы выйти из режима.
4.2 Ввод в эксплуатацию
Перед включением котла
•
Проверьте герметичность системы подвода газа.
•
Проверьте правильность предварительно созданного в расширительном сосуде дав-
ления.
•
Заполните систему водой и полностью спустите воздух из котла и системы отопления.
•
Удостоверьтесь в отсутствии утечек воды из системы отопления, контура ГВС, из котла
и в различных соединениях.
•
Проверьте правильность выполнения электрических соединений и эффективность
заземления.
•
Удостоверьтесь, что величина давления газа соответствуют требуемому значению.
•
Проверьте, что в непосредственной близости от котла не находятся огнеопасные жид-
кости и материалы.
Контрольные операции, выполняемые во время работы
•
Включите аппарат.
•
Проверьте герметичность топливного контура и водопроводов.
•
При работающем котле проверьте, нормально ли работают дымоход и воздуховоды
для притока воздуха и удаления дымовых газов.
•
Проверьте, правильно ли циркулирует вода между котлом и системой отопления.
•
Удостоверьтесь, что газовый клапан правильно обеспечивает модуляцию мощности,
как в режиме отопления, так и в режиме ГВС.
•
Проверьте работу системы розжига котла. Для этого несколько раз включите и выклю -
чите котел путем регулировки комнатного термостата или с пульта дистанционного
управления.
•
Удостоверьтесь по показаниям счетчика, что расход газа соответствует величине, ука -
занной в таблице технических данных.
•
Проверьте, что при отсутствии сигнала на включение отопления, горелка зажигается
при открытии любого крана системы ГВС.
После проверки давления или его регулировки необходимо запечатать
краской или специальной печатью регулировочный винт.
рис. 14 – Газовый клапан
А – Винт защитный колпачок
В – Разъем для замера давления на выходе из клапана
С – Провод катушки регулирования Modureg
D – Защитный колпачок
Е – Регулировка минимального давления
G – Регулировка максимального давления
G3/4
72
89
72
188
203
R42
R35,5
R48,5
74
87
109
67
65
77
74
84
73
235
А
B
С
D
Е
G3/4 G1/2 G1/2 G1/2