Кондиционеры Daikin VAM-FC - инструкция пользователя по применению, эксплуатации и установке на русском языке. Мы надеемся, она поможет вам решить возникшие у вас вопросы при эксплуатации техники.
Если остались вопросы, задайте их в комментариях после инструкции.
"Загружаем инструкцию", означает, что нужно подождать пока файл загрузится и можно будет его читать онлайн. Некоторые инструкции очень большие и время их появления зависит от вашей скорости интернета.

VAM150+250FC
Инверторный кондиционер системы
HRV (Вентиляция с регенерацией тепла)
4P415946-1 – 2015.08
Руководство по монтажу
8
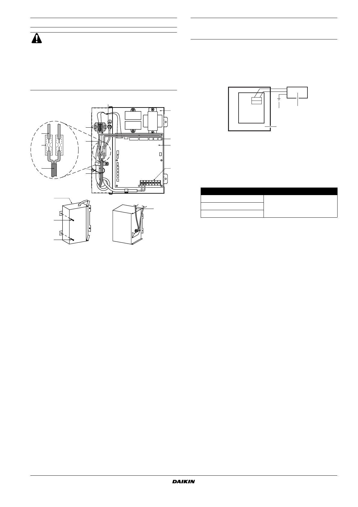
Открытие распределительной коробки
Электрические соединения, необходимые для возмож-
ного подключения дополнительной приобретаемой на
внутреннем рынке внешней воздушной заслонки
Внешняя воздушная заслонка предотвращает поступление
наружного воздуха при выключенной системе вентиляции
с регенерацией тепла (HRV). (См. рисунки
, деталь 19).
1.
Электропитание на внешнюю воздушную заслонку подает
управляющая работой HRV печатная плата главного блока
HRV.
Напряжение питания подается при включении HRV.
Подача
напряжения
питания
прекращается
при
выключении HRV.
2.
Необходимые электрические соединения
Подсоедините один конец дополнительного провода с
разъему X15A на печатной плате, а другой конец -- к
проводу, ведущему к внешней воздушной заслонке через
стыковой соединитель изолированного кабеля в закрытом
корпусе (0,75 мм
2
).
Убедитесь в отсутствии натяжения провода.
3.
Необходимые настройки
Настройка разъема X15A по умолчанию: не задействован.
Чтобы задействовать в системе внешнюю воздушную заслонку,
измените эту настройку по умолчанию с помощью пульта
управления следующим образом:
•
№
режима:
18
(групповое
управление)
или
28
(индивидуальное управление)
•
Установка переключателя № 3
•
Установка в положение № 03
ПРЕДОСТЕРЕЖЕНИЕ
Перед открытием крышки не забудьте выключить
выключатели питания основных блоков и прочие
устройства, подключенные к основным блокам.
■
Удалите винт, фиксирующий крышку, и откройте
распределительную коробку.
■
Закрепите с помощью зажима провода управле-
ния шнура питания, как показано на Рис. ниже.
1
2
9
7
6
4
1
4
5
PCB
12
13
12
11
12
10
10
1
Монтажное основание электрического отсека
2
Печатная плата
3
Крышка электрического отсека
4
Крепежный винт
5
Клемма заземления
6
Клеммная колодка
7
Клеммная колодка проводки передачи
8
Подвинуть
9
разъем X15A
10
Проводка для подключения дополнительной внешней
воздушной заслонки (входит в комплект поставки)
11
Стыковой соединитель изолированного кабеля в закрытом
корпусе (0,75 мм
2
) (приобретается на внутреннем рынке)
12
Двойной или усиленный гибкий изолированный кабель
(0,75 мм
2
) на внешнюю воздушную заслонку
(приобретается на внутреннем рынке)
13
Обхватная петля (приобретается на внутреннем рынке)
Напряжение питания
Допустимая нагрузка
220 V
≤0,5 A
230 V
240 V
2
1
PCB
X15A
3
1
Главный блок HRV
2
Внешняя воздушная заслонка
3
Земля на внешнюю воздушную заслонку, при отсутствии
конструкции класса II (EN60335-2-40)












