Кондиционеры Daikin EWWD-I-SS - инструкция пользователя по применению, эксплуатации и установке на русском языке. Мы надеемся, она поможет вам решить возникшие у вас вопросы при эксплуатации техники.
Если остались вопросы, задайте их в комментариях после инструкции.
"Загружаем инструкцию", означает, что нужно подождать пока файл загрузится и можно будет его читать онлайн. Некоторые инструкции очень большие и время их появления зависит от вашей скорости интернета.

D
–EIMWC00404-14RU - 30/88
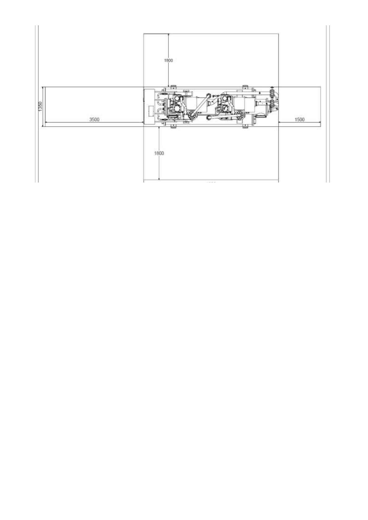
Рис. 2 - Минимальное пространство, необходимое для технического обслуживания агрегата
Вентиляция
В помещении с установленным агрегатом необходимо поддерживать температуру в диапазоне от 0 °C до 40 °C.
Защита от шума
Если уровень шума требует особого контроля, необходимо с величайшей осторожностью изолировать агрегат от
основания, применив соответствующие антивибрационные элементы (поставляются отдельно). Кроме того, на
водяных соединениях необходимо установить гибкие сочленения.
Трубопровод воды
Трубопровод должен быть проведен с наименьшим количеством колен и вертикальных изменений направления.
В этом случае стоимость установки существенно снизится, а производительность системы улучшится.
В состав системы трубопроводов должны входить
1.
Антивибрационные крепления для сокращения передачи вибрации на нижние конструкции.
2.
Разделяющие клапаны для изоляции агрегата от водяной системы на время технического обслуживания.
3.
Ручное или автоматическое устройство выпуска воздуха в самой высокой точке системы и устройство
слива и самой низкой точке. Не допускается установка испарителя и устройства теплоутилизации в
самой высокой точке системы.
4.
Устройство, способное поддерживать водяную систему под давлением (расширительный бак и др.).
5.
Индикаторы температуры и давления воды на агрегате для облегчения ремонта и технического
обслуживания.
6.
Фильтр или устройство для удаления грязи из воды до поступления в насос (во избежание кавитации
обратитесь за рекомендациями по приобретению подходящего фильтра к производителю насоса).
Применение фильтра продлит срок службы насоса и поможет поддерживать водяную систему в
наилучшем состоянии.
7.
Еще один фильтр следует установить вблизи испарителя и блока теплоутилизации (если он установлен)
на трубе подвода воды. Фильтр не пускает твердые частицы в теплообменник, так как они могут
повредить его или уменьшить теплообмен.
8.
При установке нового агрегата на месте старого необходимо сначала опорожнить и очистить всю
водяную систему. Перед запуском нового агрегата рекомендуется провести стандартные испытания и
надлежащую химическую обработку воды.
9.
В случае добавления в водяную систему гликоля в качестве защиты от замерзания обратите внимание
на тот факт, что давление в линии всасывания уменьшится, производительность агрегата снизится, а
падение давления воды будет больше. Потребуется скорректировать все защитные системы агрегата,
например, системы защиты от замерзания и защиты от низкого давления.
10.
В системе отсутствуют устройства, предупреждающие замерзание воды при снижении температуры
окружающей среды ниже 0 °C (для гарантированной защиты от замерзания одной теплоизоляции
недостаточно). Агрегат и водяные трубы необходимо защитить от замерзания.
Перед изоляцией водяного трубопровода убедитесь в отсутствии утечек.
1200
1200
Содержание
- 2 Содержание
- 6 Общие сведения; ВАЖНО; Предупреждения для оператора
- 9 Технические характеристики; Технические данные – EWWD I-SS
- 22 Уровни звукового давления
- 23 со звукопоглощающим шкафом
- 25 Эксплуатационные ограничения; Хранение; Эксплуатация
- 26 Рабочая зона
- 28 Монтажные работы; Доставка; ПРЕДУПРЕЖДЕНИЕ; Перемещение и подъем
- 33 Рис. 1 - Регулировка защитного реле расхода; Предохранительные клапаны контура хладагента
- 39 Падения давления
- 42 Монтаж электрической системы; Общие характеристики
- 43 Электрические характеристики
- 45 Нагреватели масла
- 46 Ограничения агрегата – электропроводка (дополнительно)
- 47 Указания по удаленной конденсаторной установки; Проектирование трубопроводов хладагента
- 49 Рис. 5 - Конденсатор расположен ниже чиллера; Определение размеров линии жидкости
- 50 Таблица 3 - Размеры линий жидкости; Подбор размеров линии нагнетания (горячего газа)
- 51 Таблица 4 - Размеры линий нагнетания; Заряд масла
- 52 Обязанности оператора; Описание цикла циркуляции хладагента
- 71 Предпусковые проверки; Общие положения
- 72 Агрегаты с внешним водяным насосом; Электропитание; Небаланс напряжения питания; max; Питание электронагревателей масла
- 73 Порядок запуска; Включение агрегата
- 74 Сезонное отключение
- 75 Техническое обслуживание системы; Техническое обслуживание компрессора
- 76 Рис. 27 - Установка устройств управления для компрессора Fr4
- 77 Плановое техническое обслуживание; Замена фильтра-осушителя
- 78 Порядок замены патрона фильтра-осушителя
- 79 Замена масляного фильтра
- 81 Порядок пополнения хладагента
- 82 Стандартные проверки
- 83 Карта проверок; Измерения на стороне воды
- 84 Электрические измерения
- 85 Гарантия на обслуживание и ограниченная гарантия
- 86 Утилизация