Генераторы EuroPower EPS34TDE - инструкция пользователя по применению, эксплуатации и установке на русском языке. Мы надеемся, она поможет вам решить возникшие у вас вопросы при эксплуатации техники.
Если остались вопросы, задайте их в комментариях после инструкции.
"Загружаем инструкцию", означает, что нужно подождать пока файл загрузится и можно будет его читать онлайн. Некоторые инструкции очень большие и время их появления зависит от вашей скорости интернета.

/8
&+7
8,7
/$
$
752267
(5
*5,//('
e9$
&8
$
7,21
'
$
,5
$
,528
7/(7
*5,'
*,7
7(5)h
5$
%/8
)7
/8
&+7
,1
/$
$
752267
(5
*5,//('
(1
75e('
$
,5
$
,5,1
7$
.(*5,'
*,7
7(5)h
5=8
/8
)7
'
G
'(7
$
,/$
6&$
/(
'HKR
RIGPDWHQO
[E]
LMQR
SJHJHY
HQL
QFO
XV
LHINR
SSHQY
DQ
ER
XWHQ
/HV
GL
PHQV
LR
QV
SU
LQFL
SDO
HV
O
OL
QFO
XHQWO
HV
WrWHV
GXER
XO
RQV
0DL
QGL
PHQV
LR
QV
O
ZZL
WKER
OWV
LQFO
XGHG
'L
H+DXSWPD
HO
EV
LQGDQJHJHEHQHL
QV
FKO
LH
OLFK%
RO
]HQN|
SIH
=,-$
$
1
=,&+7
=,-'(',(6(/3
203
&Ñ7
e3
203
('
$
/,0(1
7$
7,21
6,'(9,(:)8
(/3
803
6,'(
6(,7
(1
$
1
6,&+7
6(,7
(',(6(/3
803
(
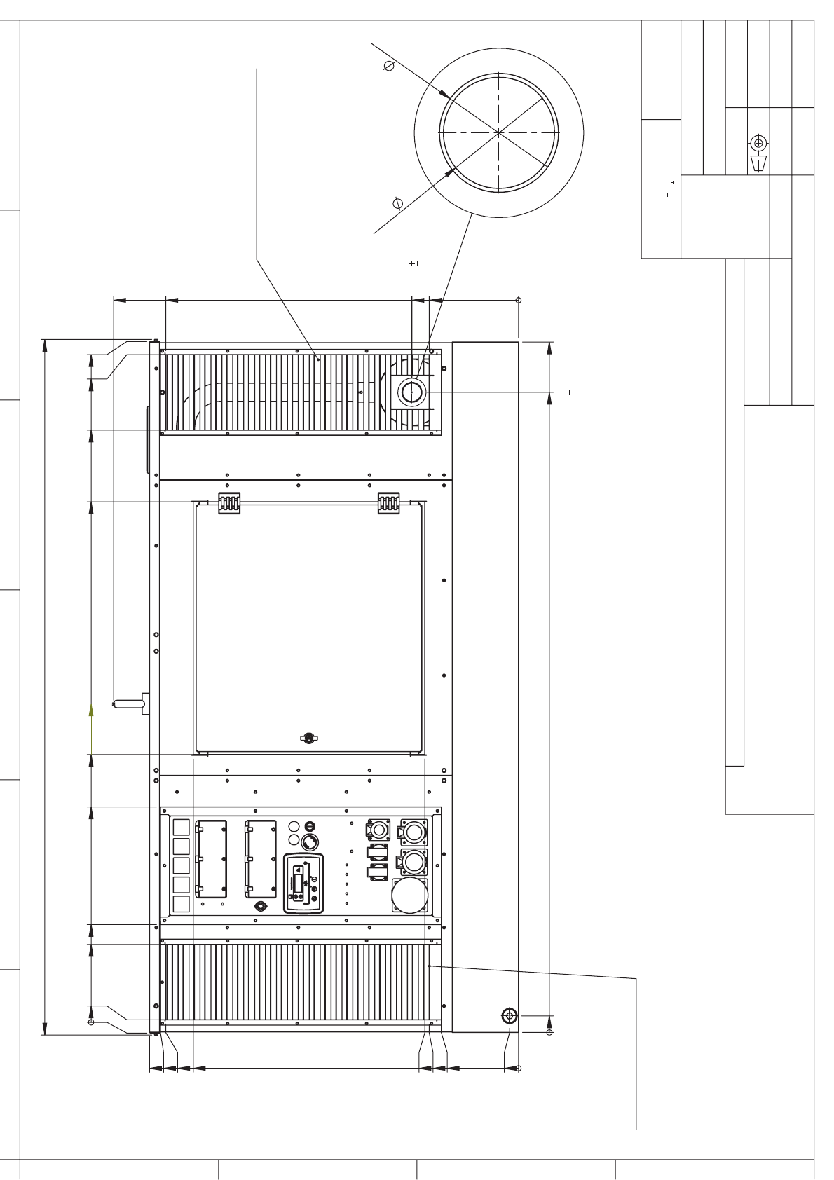
0DWHQL
QPP'L
PHQV
LR
QV
LQPP0D
HL
QPP'L
PHQV
HQPP
PP
5(0$
5.
6
72/$
1
*8
/$
5
72//,1
($
5
$
57
1
5
(85232:(5
*HQHUDW
RUV
&8
67
20(5
7,7
/(
2'1
5
5(91
5
6(1
721
5(9,6('21
'3
%
/
+=
+=
'(6,*1
'5$
:1
5(9,6('
$
33
9
'
81
/(6627
+(5:,6(63
(&,),('
',0(1
6,21
6$
5(,1
0,//,0(7
(56
'(%
85$
1
'
%5($
.6+$
53
('*(6
0$
7(5,$
/
',5(&7
25<
6&$
/(
6+((7
2)
$
$
%
&
'
,1
%28
:0$
7(1
',0(1
6,21
6*e1
e5$
/(6
0$
,1
',0(1
6,21
6(,1
%$
8$
%0(668
1
*(1
(3
6
7
'((3
6
'((3
6
7
'(

