Электропилы Bosch GKS 190 - инструкция пользователя по применению, эксплуатации и установке на русском языке. Мы надеемся, она поможет вам решить возникшие у вас вопросы при эксплуатации техники.
Если остались вопросы, задайте их в комментариях после инструкции.
"Загружаем инструкцию", означает, что нужно подождать пока файл загрузится и можно будет его читать онлайн. Некоторые инструкции очень большие и время их появления зависит от вашей скорости интернета.

74
| Suomi
1 619 P09 868 | (4.11.11)
Bosch Power Tools
Pölyn ja lastun poistoimu
f
Irrota pistotulppa pistorasiasta ennen kaikkia sähkö-
työkaluun kohdistuvia töitä.
f
Materiaalien, kuten lyijypitoisen pinnoitteen, muutamien
puulaatujen, kivennäisten ja metallin pölyt voivat olla ter-
veydelle vaarallisia. Pölyn kosketus tai hengitys saattaa ai-
heuttaa käyttäjälle tai lähellä oleville henkilöille allergisia
reaktioita ja/tai hengitystiesairauksia.
Määrättyjä pölyjä, kuten tammen- tai pyökinpölyä pidetään
karsinogeenisina, eritoten yhdessä puukäsittelyssä käy-
tettyjen lisäaineiden kanssa (kromaatti, puunsuoja-aine).
Asbestipitoisia aineita saavat käsitellä vain ammattilaiset.
– Käytä materiaalille soveltuvaa pölynimua, jos se on
mahdollista.
– Huolehdi työkohteen hyvästä tuuletuksesta.
– Suosittelemme käyttämään suodatusluokan P2 hengi-
tyssuojanaamaria.
Ota huomioon maassasi voimassaolevat säännökset, kos-
kien käsiteltäviä materiaaleja.
f
Vältä pölynkertymää työpaikalla.
Pöly saattaa helposti
syttyä palamaan.
Imuadapterin asennus (katso kuva B)
Työnnä imuadapteri
23
lastujen poistoaukkoon
14
niin että
se lukittuu kiinni. Imuadapteriin
23
sopii imuletku, jonka hal-
kaisija on 35 mm.
f
Imuadapteria ei saa käyttää, ellei koneeseen liitetä
imuria.
Imukanava voi muutoin mennä tukkoon.
f
Pölypussia ei saa liittää suoraan imuadapteriin.
Imujär-
jestelmä voi muutoin mennä tukkoon.
Optimaalisen imutehon takaamiseksi imuadapteri
23
on
muistettava puhdistaa säännöllisesti.
Ulkopuolinen poistoimu
Liitä imuletku pölynimuriin (lisätarvike). Katsauksen liittämi-
sestä eri pölynimureihin löydät tämän ohjeen lopusta.
Sähkötyökalu voidaan liittää suoraan kaukokäynnistyksellä
varustetun Bosch-yleisimurin pistorasiaan. Tämä käynnistyy
automaattisesti sähkötyökalua käynnistettäessä.
Pölynimurin tulee soveltua työstettävälle materiaalille.
Käytä erikoisimuria terveydelle erityisen vaarallisten, karsino-
geenisten tai kuivien pölyjen imurointiin.
Käyttö
Käyttömuodot
f
Irrota pistotulppa pistorasiasta ennen kaikkia sähkö-
työkaluun kohdistuvia töitä.
Sahaussyvyyden asetus (katso kuva C)
f
Aseta sahaussyvyys työkappaleen paksuuden mukaan.
Työkappaleen alla tulisi terää näkyä korkeintaan täysi ham-
maskorkeus.
Löysää kiristinvipu
24
. Kun tarvitaan pienempi sahauassy-
vyys, sahaa vedetään poispäin pohjalevystä
12
, kun sahaus-
syvyyden taas on oltava suurempi, sahaa painetaan pohjale-
vyyn
12
päin. Aseta haluttu mitta sahaussyvyyden asteikolle.
Vedä sitten kiristinvipu
24
kiinni.
Jos et pysty säätämään sahaussyvyyttä kokonaan kiinnitysvi-
vun
24
avaamisen jälkeen, tulee sinun vetää kiinnitysvipu
24
irti sahasta ja kääntää sitä alaspäin. Päästä taas kiristysvipu
24
vapaaksi. Toista tämä toimenpide, kunnes haluttu sahaus-
syvyys on asennettavissa.
Jos et pysty säätämään sahaussyvyyttä riittävästi kiristysvi-
vun
24
kiristämisen jälkeen, tulee sinun vetää kiristysvipu
24
poispäin sahasta ja kääntää sitä ylöspäin. Päästä taas kiristys-
vipu
24
vapaaksi. Toista tämä toimenpide, kunnes haluttu sa-
haussyvyys on lukittu.
Jiirikulman asetus
Löysää siipiruuveja
6
ja
26
. Käännä sahaa sivusuunnassa.
Aseta haluttu mitta asteikolle
5
. Kiristä sitten siipiruuvit
6
ja
26
uudelleen kiinni.
Huomio:
Jiirisahauksissa sahaussyvyys on sahaussyvyysas-
teikon
25
arvoa pienempi.
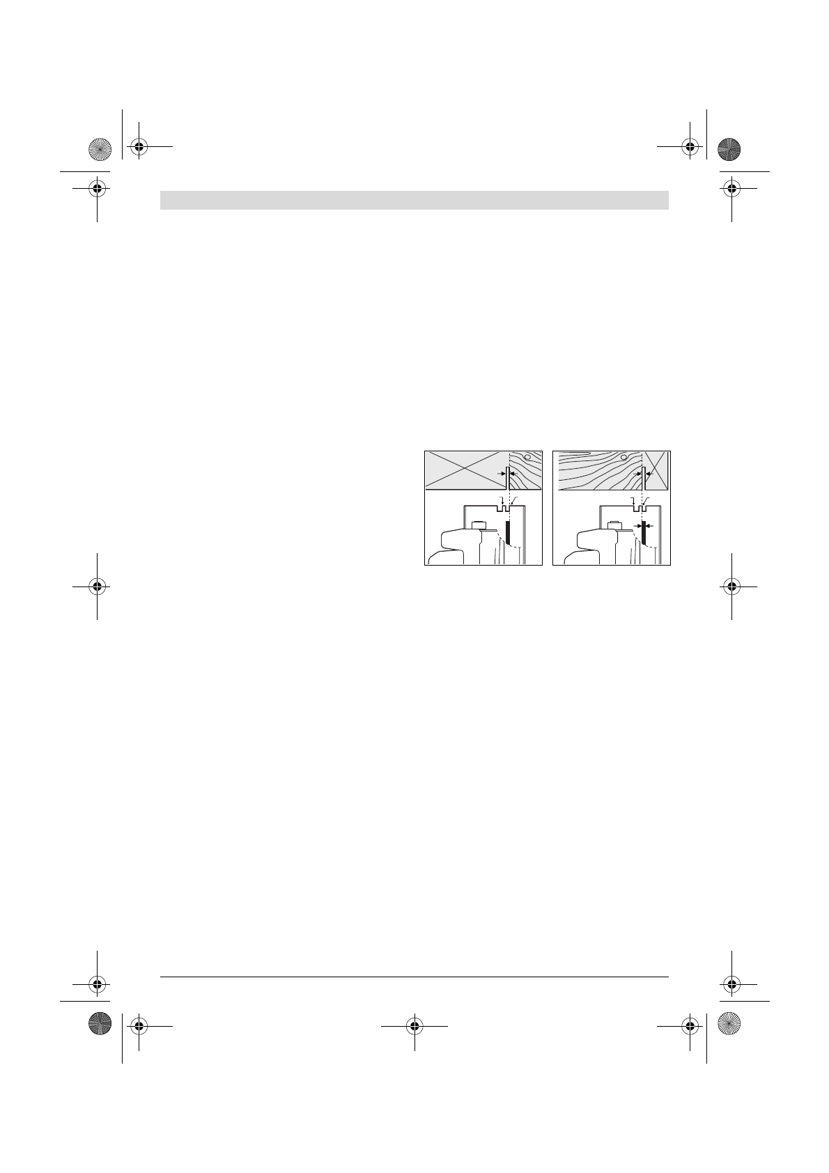
Sahausmerkit
Sahausmerkki 0 ° (
9
) näyttää sahanterän sijainnin suorakul-
maisessa sahauksessa. Sahausmerkki 45 ° (
8
) näyttää sahan-
terän sijainnin 45 ° -sahauksessa.
Mittatarkkaa sahausta varten tulee pyörösaha asettaa työkap-
paleelle kuvan osoittamalla tavalla. Kannattaa suorittaa
koesahaus.
Käyttöönotto
f
Ota huomioon verkkojännite! Virtalähteen jännitteen
tulee vastata laitteen tyyppikilvessä olevia tietoja.
230 V merkittyjä laitteita voidaan käyttää myös 220 V
verkoissa.
Käynnistys ja pysäytys
Sähkötyökalun
käyttöönotto
painamalla
ensin
käynnistys-
varmistinta
2
ja painamalla
samalla
käynnistyskytkintä
1
sekä
pitämällä se painettuna.
Sähkötyökalun
pysäytys
päästämällä käynnistyskytkin
1
va-
paaksi.
Huomio:
Turvallisuussyistä laitteen käynnistyskytkintä
1
ei
voida lukita, vaan sitä on painettava koko käytön ajan.
Työskentelyohjeita
Suojele sahanteriä iskuilta ja kolhuilta.
Liikuta sähkötyökalua tasaisesti ja kevyesti syöttäen sahaus-
suuntaan. Liian voimakas syöttö lyhentää vaihtotyökalun elin-
ikää huomattavasti ja saattaa vahingoittaa sähkötyökalua.
Sahausteho ja sahausjälki ovat pitkälti riippuvaisia sahante-
rän kunnosta ja terähampaiden muodosta. Käytä siksi ainoas-
taan teräviä ja työstettävään materiaaliin soveltuvia sahante-
riä.
0
45
0
45
OBJ_BUCH-813-003.book Page 74 Friday, November 4, 2011 7:23 AM