Электропилы Bosch GKS 190 - инструкция пользователя по применению, эксплуатации и установке на русском языке. Мы надеемся, она поможет вам решить возникшие у вас вопросы при эксплуатации техники.
Если остались вопросы, задайте их в комментариях после инструкции.
"Загружаем инструкцию", означает, что нужно подождать пока файл загрузится и можно будет его читать онлайн. Некоторые инструкции очень большие и время их появления зависит от вашей скорости интернета.

106
| Slovensky
1 619 P09 868 | (4.11.11)
Bosch Power Tools
–
Vyklopte výkyvný ochranný kryt
11
a pridržte ho v tejto
polohe.
–
Nasaďte pílový list
20
na unášač
21
. Smer rezania zubov
(smer šípky na rezacom kotúči) a smer otáčania označený
šípkou na ochrannom kryte
15
sa musia zhodovať.
–
Založte upínaciu prírubu
19
a zaskrutkujte upevňovaciu
skrutku
18
v smere otáčania
o
. Dajte pozor na správnu
montážnu polohu unášača
21
a upínacej príruby
19
.
–
Stlačte tlačidlo aretácie vretena
4
a podržte ho stlačené.
–
Pomocou kľúča na skrutky s vnútorným šesťhranom
17
zaskrutkujte upevňovaciu skrutku
18
v smere otáčania
o
.
Uťahovací moment by mal mať hodnotu
6 – 9
Nm, čo
zodpovedá utiahnutiu rukou plus
¼
jedna obrátka.
Odsávanie prachu a triesok
f
Pred každou prácou na ručnom elektrickom náradí
vytiahnite zástrčku náradia zo zásuvky.
f
Prach z niektorých materiálov, napr. z náterov
obsahujúcich olovo, z niektorých druhov tvrdého dreva,
minerálov a kovov môže byť zdraviu škodlivý. Kontakt s
takýmto prachom alebo jeho vdychovanie môže vyvolávať
alergické reakcie a/alebo spôsobiť ochorenie dýchacích
ciest pracovníka, prípadne osôb, ktoré sa nachádzajú v
blízkosti pracoviska.
Určité druhy prachu, napr. prach z dubového alebo z
bukového dreva, sa považujú za rakovinotvorné, a to
predovšetkým spolu s ďalšími materiálmi, ktoré sa
používajú pri spracovávaní dreva (chromitan, chemické
prostriedky na ochranu dreva). Materiál, ktorý obsahuje
azbest, smú opracovávať len špeciálne vyškolení
pracovníci.
–
Používajte podľa možnosti také odsávanie, ktoré je pre
daný materiál vhodné.
–
Postarajte sa o dobré vetranie svojho pracoviska.
–
Odporúčame Vám používať ochrannú dýchaciu masku
s filtrom triedy P2.
Dodržiavajte aj predpisy vlastnej krajiny týkajúce sa
konkrétneho obrábaného materiálu.
f
Vyhýbajte sa usadzovaniu prachu na Vašom
pracovisku.
Viaceré druhy prachu sa môžu ľahko vznieť.
Montáž odsávacieho adaptéra (pozri obrázok B)
Nasuňte odsávací adaptér
23
na otvor na vyhadzovanie
triesok
14
tak, aby zaskočil. Na odsávací adaptér
23
sa dá
pripojiť hadica vysávača s priemerom 35 mm.
f
Odsávací adaptér nesmie byť namontovaný bez
pripojeného externého odsávania.
Inak by sa mohol
odsávací kanál upchať.
f
Na odsávací adaptér sa nesmie pripojiť vrecko na
prach.
Inak by sa mohol odsávací systém upchať.
Na zabezpečenie optimálneho odsávania treba odsávací
adaptér
23
pravidelne čistiť.
Externé odsávanie
Spojte odsávaciu hadicu s nejakým vysávačom
(príslušenstvo). Prehľad pripojení rozličných typov
vysávačov nájdete na konci tohto Návodu na používanie.
Elektrické náradie sa dá pripojiť priamo na zásuvku
univerzálneho vysávača Bosch, ktorý je vybavený diaľkovým
spúšťaním. Pri spustení ručného elektrického náradia sa
vysávač automaticky zapne.
Vysávač musí byť vhodný pre daný druh opracovávaného
materiálu.
Pri odsávaní materiálov mimoriadne ohrozujúcich zdravie,
rakovinotvorných alebo suchých prachov používajte
špeciálny vysávač.
Prevádzka
Druhy prevádzky
f
Pred každou prácou na ručnom elektrickom náradí
vytiahnite zástrčku náradia zo zásuvky.
Nastavenie hĺbky rezu (pozri obrázok C)
f
Hrúbku rezu prispôsobte hrúbke obrobka.
Pod
obrobkom by malo byť vidieť menej pílového listu ako plnú
výšku zuba píly.
Uvoľnite upínaciu páku
24
. Ak budete robiť menej hlboké
rezy, odtiahnite pílu od základnej dosky
12
, ak potrebujete
väčšiu hĺbku rezu, zatlačte pílu smerom k základnej doske
12
.
Nastavte požadovanú hodnotu na stupnici hĺbky rezu.
Upínaciu páku
24
opäť utiahnite.
Ak nebudete môcť po uvoľnení upínacej páčky
24
úplne
nastaviť hĺbku rezu, potiahnite upínaciu páčku
24
smerom od
píly a pootočte ju smerom dole. Upínaciu páčku
24
opäť
uvoľnite. Tento úkon opakujte dovtedy, kým sa bude dať
nastaviť požadovaná hĺbka rezu.
Ak nebudete môcť po utiahnutí upínacej páčky
24
hĺbku rezu
dostatočne fixovať, potiahnite upínaciu páčku
24
smerom od
píly a pootočte ju smerom hore. Upínaciu páčku
24
opäť
uvoľnite. Tento úkon opakujte dovtedy, kým sa bude dať
požadovaná hĺbka rezu zaaretovať.
Nastavenie uhla zošikmenia
Uvoľnite krídlové skrutky
6
a
26
. Vyklopte pílu do strany.
Nastavte požadovanú hodnotu na stupnici
5
. Krídlové skrutky
6
a
26
opäť utiahnite.
Upozornenie:
Pri šikmých rezoch je skutočná hĺbka rezu
menšia ako hodnota zobrazená na stupnici hĺbky rezu
25
.
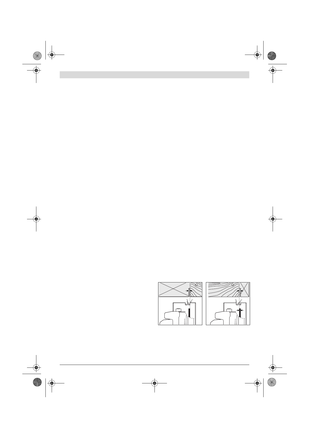
Značky rezu
Značka rezu 0
°
(
9
) ukazuje polohu pílového listu pri
pravouhlom reze. Značka rezu 45
°
(
8
) ukazuje polohu
pílového listu pri šikmom reze so sklonom 45
°
.
Ak chcete rezať presný rozmer, prikladajte kotúčovú pílu k
obrobku podľa obrázku. Odporúčame Vám vykonať skúšobný
rez.
0
45
0
45
OBJ_BUCH-813-003.book Page 106 Friday, November 4, 2011 7:23 AM