Электропилы Bosch GKS 190 - инструкция пользователя по применению, эксплуатации и установке на русском языке. Мы надеемся, она поможет вам решить возникшие у вас вопросы при эксплуатации техники.
Если остались вопросы, задайте их в комментариях после инструкции.
"Загружаем инструкцию", означает, что нужно подождать пока файл загрузится и можно будет его читать онлайн. Некоторые инструкции очень большие и время их появления зависит от вашей скорости интернета.

Hrvatski |
159
Bosch Power Tools
1 619 P09 868 | (4.11.11)
Rad
Načini rada
f
Prije svih radova na električnom alatu izvucite mrežni
utikač iz utičnice.
Namještanje dubine rezanja (vidjeti sliku C)
f
Prilagodite dubinu rezanja debljini izratka.
Ispod izratka
treba biti vidljiva manje od jedna puna visina zupca.
Otpustite steznu polugu
24
. Za manje dubine rezanja
povlačite pilu dalje od temeljne ploče
12
, a za veće dubine
rezanja pritišćite pilu prema temljenoj ploči
12
. Namjestite
željenu mjeru na skali dubine rezanja. Ponovno stegnite
steznu polugu
24
.
Ako se nakon otpuštanja stezne poluge
24
dubina rezanja ne
može potpuno regulirati, odmaknite steznu polugu
24
od pile
i zakrenite je prema dolje. Ponovno otpustite steznu polugu
24
. Ponovite ovaj postupak sve do podešavanja tražene
dubine rezanja.
Ako se nakon čvrstog stezanja stezne poluge
24
dubina
rezanja ne može dovoljno fiksirati, odmaknite steznu polugu
24
od pile i zakrenite je prema gore. Ponovno otpustite steznu
polugu
24
. Ponovite ovaj postupak sve dok dubina rezanja ne
bude fiksirana.
Namještanje kuta kosog rezanja
Otpustite leptiraste vijke
6
i
26
. Zakrenite pilu bočno.
Namjestite željenu mjeru na skali
5
. Ponovno stegnite
leptiraste vijke
6
i
26
.
Napomena:
Kod kosog rezanja je dubina rezanja manja od
prikazane vrijednosti na skali dubine rezanja
25
.
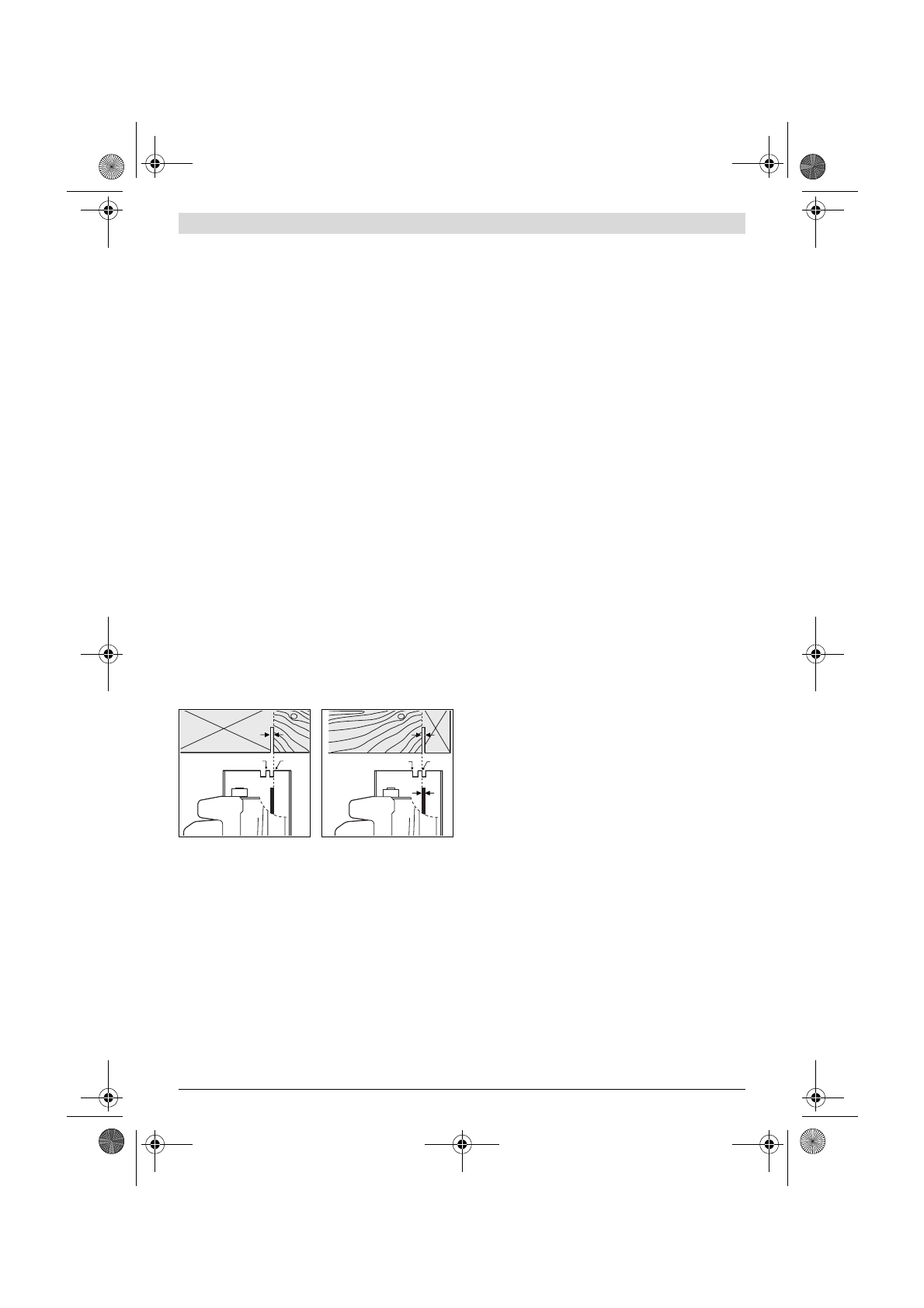
Oznake rezanja
Oznaka rezanja 0
°
(
9
) pokazuje položaj lista pile kod rezanja
pod pravim kutom. Oznaka rezanja 45
°
(
8
) pokazuje položaj
lista pile kod 45
°
-reza.
Za točno rezanje kružnu pilu postavite na izradak kako je
prikazano. Najbolje je da provedete probni rez.
Puštanje u rad
f
Pridržavajte se mrežnog napona! Napon izvora struje
mora se podudarati s podacima na tipskoj pločici
električnog alata. Električni alati označeni s 230 V
mogu raditi i na 220 V.
Uključivanje/isključivanje
Za
puštanje u rad
električnog alata pritisnite
najprije
zapor
uključivanja
2
i
nakon toga
pritisnite prekidač za
uključivanje/isključivanje
1
i držite ga pritisnutog.
Za
isključivanje
električnog alata otpustite prekidač za
uključivanje/isključivanje
1
.
Napomena:
Iz razloga sigurnosti se prekidač za uključivanje/
isključivanje
1
ne može utvrditi, nego tijekom rada mora
stalno ostati pritisnut.
Upute za rad
Zaštitite list pile od udara i udaraca.
Električni alat vodite jednoličnim gibanjem i sa manjim
posmakom u smjeru rezanja. Preveliki posmak znatno
skraćuje vijek trajanja radnog alata i može oštetiti električni
alat.
Učinak piljenja i kvaliteta reza uglavnom ovise od stanja i
oblika zubaca lista pile. Zbog toga koristite samo oštre listove
pile i koji su prikladni za obrađivani materijal.
Piljenje drva
Pravilan izbor lista pile ravna se prema vrsti drva, kvaliteti
drva i prema tome da li se radi o uzdužnom i poprečnom
rezanju.
Kod uzdužnog rezanja smreke nastaje dugačka strugotina
spiralnog oblika.
Prašina od bukve i hrasta posebno je štetna za zdravlje, te
zbog toga radite samo sa usisavanjem prašine.
Piljenje sa graničnikom paralelnosti (vidjeti sliku D)
Graničnik paralelnosti
10
omogućava točno rezanje uzduž
ruba izratka, odnosno rezanje traka jednakih mjera.
Otpustite leptirasti vijak
7
i pomaknite skalu graničnika
paralelnosti
10
, vođenjem u temeljnoj ploči
12
. Namjestite
željenu širinu rezanja kao vrijednost skale, na odgovarajućim
oznakama rezanja
9
odnosno
8
, vidjeti poglavlje
„
Oznake
rezanja
“
. Ponovno stegnite leptirasti vijak
7
.
Piljenje sa pomoćnim graničnikom (vidjeti sliku E)
Za obradu velikih izradaka ili za rezanje ravnih rubova, možete
na izradak pričvrstiti dasku ili letvu kao pomoćni graničnik i
kružnu pilu voditi uzduž sa temeljnom pločom kao pomoćnim
graničnikom.
Održavanje i servisiranje
Održavanje i čišćenje
f
Prije svih radova na električnom alatu izvucite mrežni
utikač iz utičnice.
f
Električni alat i otvore za hlađenje održavajte čistim
kako bi se moglo dobro i sigurno raditi.
Njišući štitnik mora se moći uvijek slobodno pomicati i sam
zatvarati. Zbog toga područje oko njišućeg štitnika uvijek
održavajte čistim. Prašinu i strugotinu od ispuhivanja treba
uvijek očistiti komprimiranim zrakom ili kistom.
Listovi pile koji nisu površinski zaštićeni mogu se zaštititi od
korozije tankim slojem ulja bez kiseline. Prije piljenja ponovno
odstranite ulje, jer će inače na drvu ostati mrlje.
Smola ili ostaci ljepila na listu pile štetno utječu na kvalitetu
rezanja. Zbog toga list pile očistite odmah nakon uporabe.
0
45
0
45
OBJ_BUCH-813-003.book Page 159 Friday, November 4, 2011 7:23 AM