Страница 3 - НЕПРЕДНАМЕРЕННЫЙ ПУСК!; Время разрядки; Минимальное время ожидания [в минутах]; ПРЕДУПРЕЖДЕНИЕ; Техника безопасности; является зарегистрированным товарным знаком компании Danfoss
Техника безопасности ВНИМАНИЕ! ВЫСОКОЕ НАПРЯЖЕНИЕ! В подключенных к сети переменного токапреобразователях частоты имеется опасноенапряжение. Монтаж, пусконаладочные работы иобслуживание должны осуществляться толькоквалифицированным персоналом. Несоблюдение этоготребования может привести к летальному...
Страница 4 - Разрешения; УВЕДОМЛЕНИЕ
УВЕДОМЛЕНИЕ Выделяет информацию, на которую следует обратитьвнимание во избежание ошибок или для повышенияэффективности работы. Разрешения УВЕДОМЛЕНИЕ Установлены следующие ограничениявыходной частоты (в соответствии справилами экспортного контроля): Начиная с версии ПО 1.10 выходная частотапреобраз...
Страница 5 - Оглавление
Оглавление 1 Введение 4 1.1 Цель руководства 6 1.2 Обзор изделий 6 1.3 Функции внутреннего регулятора преобразователя частоты 6 1.4 Типоразмеры и номинальная мощность 7 2 Монтаж 8 2.1 Перечень проверок на месте установки 8 2.2 Перечень предмонтажных проверок 8 2.3 Механический монтаж 8 2.3.1 Охлажде...
Страница 6 - Проверка соблюдения требований безопасности; Интерфейс пользователя
3.1 Предпусковые проверки 30 3.1.1 Проверка соблюдения требований безопасности 30 3.2 Подключение к сети питания 32 3.3 Базовое рабочее программирование 32 3.3.1 Мастер настройки параметров 32 3.4 Настройка асинхронного двигателя 38 3.5 Автоматическая адаптация двигателя 38 3.6 Настройка двигателя с...
Страница 7 - Один или несколько вентиляторов или насосов; Сообщения о состоянии; Предохранители защиты параллельных цепей; Алфавитный указатель
6.2.2 Один или несколько вентиляторов или насосов 59 6.2.3 Компрессорная группа 60 7 Сообщения о состоянии 61 7.1 Дисплей состояния 61 7.2 Расшифровка сообщений о состоянии 61 8 Предупреждения и аварийные сигналы 64 8.1 Мониторинг системы 64 8.2 Типы предупреждений и аварийных сигналов 64 8.3 Диспле...
Страница 8 - Введение
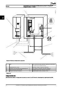
1 Введение 1 2 3 4 5 6 7 8 9 10 11 12 13 14 8 15 16 17 18 130BB492.10 Рисунок 1.1 Пространственный вид, типоразмер A 1 LCP 10 Выходные клеммы двигателя 96 (U), 97 (V), 98 (W) 2 Разъем шины последовательной связи RS-485 (+68, -69) 11 Реле 2 (01, 02, 03) 3 Разъем аналогового входа/выхода 12 Реле 1 (04...
Страница 10 - Цель руководства; Монтаж; Функции внутреннего регулятора; Рисунок 1.3 Блок-схема преобразователя частоты
1.1 Цель руководства Данное руководство содержит подробную информациюо монтаже и вводе в эксплуатацию преобразователячастоты. В главе 2 Монтаж представлены требования к монтажу механической и электрической части, в томчисле питания, двигателя, проводки подключенияэлементов управления и последователь...
Страница 11 - Типоразмеры и номинальная мощность; Таблица 1.4 Типоразмеры и номинальная мощность
Область Название Функции 6 Инвертор • Преобразует постоянныйток в переменный ток навыходе, предназначенныйдля управленияэлектродвигателем иимеющий формуколебаний, регулируемуюпосредством широтно-импульсной модуляции(PWM). 7 Выходной сигнална двигатель • Регулируемое трехфазноевыходное питаниедвигате...
Страница 12 - Монтаж; Перечень проверок на месте; Преобразователь частоты; Механический монтаж; F) и с высоты 1000 м над уровнем моря.
2 Монтаж 2.1 Перечень проверок на месте установки • Преобразователь частоты охлаждаетсяокружающим воздухом. Для обеспеченияоптимальной работы устройства соблюдайтепредельно допустимые значения температурыокружающей среды. • Убедитесь, что место, подготовленное длямонтажа преобразователя частоты, име...
Страница 13 - Корпус; Найдите подходящее подъемное устройство.; При монтаже на рейки требуется задняя панель.
a b 130BA419.10 Рисунок 2.1 Зазоры для охлаждения в верхней и нижнейчасти устройства Корпус A2-A5 B1-B4 C1, C3 C2, C4 a/b [мм] 100 200 200 225 Таблица 2.1 Требования к минимальным зазорам дляциркуляции воздуха 2.3.2 Подъем • Проверьте массу устройства и определитеспособ безопасного подъема. • Найдит...
Страница 14 - Электрический монтаж; Подключение проводки цепи управления и последовательной связи.
2.3.4 Моменты затяжки См. 10.4 Моменты затяжки контактов с описанием требуемых усилий затяжки.. 2.4 Электрический монтаж В данном разделе подробно описывается процедура подключения преобразователя частоты. Здесь представленоописание следующих видов работ. • Подключение двигателя к выходным клеммам п...
Страница 15 - Рисунок 2.4 Схематический чертеж базовой схемы подключения.; Дополнительную информацию см. в
На Рисунок 2.4 приведена схема базовых электрических соединений. * 91 (L1)92 (L2)93 (L3) PE 88 (-)89 (+) 50 (+10 V OUT ) 53 (A IN) 54 (A IN) 55 (COM A IN) 0/4-20 mA 12 (+24V OUT ) 13 (+24V OUT ) 18 (D IN) 20 (COM D IN) 15mA 200mA (U) 96( V ) 97 ( W ) 98 (PE) 99 (COM A OUT ) 39 (A OUT ) 42 0/4-20 mA ...
Страница 16 - Использование кабеля с поперечным сечением не менее 10 мм2
1 2 3 4 5 6 7 8 PE U V W 9 L1 L2 L3 PE 130BB607.10 10 Рисунок 2.5 Типовые электрические соединения 1 ПЛК 6 Мин. расстояние между кабелями управления, двигателем ипитающей сетью составляет 200 мм 2 Преобразователь частоты 7 Двигатель, 3 фазы и защитное заземление 3 Выходной контактор (обычно не реком...
Страница 17 - ОПАСНОЕ ОБОРУДОВАНИЕ!; Защита оборудования от перегрузки; Рисунок 2.6 Предохранители преобразователя частоты; Тип и номинал провода
2.4.1 Требования ВНИМАНИЕ! ОПАСНОЕ ОБОРУДОВАНИЕ! Вращающиеся валы и электрическое оборудованиемогут быть опасны. Все электромонтажные работыдолжны выполняться в соответствии сгосударственными и местными нормамиэлектробезопасности. Настоятельно рекомендуется,чтобы все монтажные, пусконаладочные работ...
Страница 18 - ОПАСНОСТЬ ЗАЗЕМЛЕНИЯ!; Монтаж
2.4.2 Требования к заземлению ВНИМАНИЕ! ОПАСНОСТЬ ЗАЗЕМЛЕНИЯ! В целях безопасности оператора важно правильнозаземлить преобразователь частоты в соответствии сгосударственными и местными нормамиэлектробезопасности, а также согласно инструкциям,содержащимся в данном документе. Блуждающие токипревышают...
Страница 19 - экранированного кабеля; Рисунок 2.7 Заземление с помощью экранированного кабеля; Перед затяжкой крышек см.; Типоразмер; ИНДУЦИРОВАННОЕ НАПРЯЖЕНИЕ!; Максимальные размеры проводов указаны в
2.4.2.2 Заземление с использованием экранированного кабеля Для проводки двигателя предлагаются зажимызаземления (зануления) (см. Рисунок 2.7 ). 130BA266.10 +DC BR- B M A I N S L1 L2 L3 91 92 93 RELA Y 1 RELA Y 2 99 - LC - U V W MO TOR Рисунок 2.7 Заземление с помощью экранированного кабеля 2.4.3 Дос...
Страница 21 - Рисунок 2.13 Подключение двигателя, корпуса A2 и A3; Рисунок 2.14 Монтаж кабельного зажима; Подключите заземление двигателя.; Рисунок 2.15 Подключение двигателя, корпуса A4 и A5
2.4.4.1 Подключение двигателя, корпуса A2 и A3 При подключении двигателя к преобразователю частотышаг за шагом следуйте приведенным ниже инструкциям. 1. Подключите к клеммной колодке заземляющийпровод двигателя, а также провода фаздвигателя U, V и W, и затяните клеммы. M A I N S L1 L2 L3 91 92 93 - ...
Страница 22 - Рисунок 2.16 Подключение двигателя, корпуса B1 и B2; Рисунок 2.17 Подключение двигателя, корпуса C1 и C2; зависящие от мощности
2.4.4.3 Подключение двигателя, корпуса B1 и B2 1. Подключите заземление двигателя. 2. Присоедините провода двигателя U, V и W кклеммам и затяните клеммы. 3. Убедитесь, что наружная изоляция кабелядвигателя под зажимом ЭМС удалена. 130B T333.10 Рисунок 2.16 Подключение двигателя, корпуса B1 и B2 2.4....
Страница 23 - Рисунок 2.18 Подключение к сети питания переменного тока; значение; Рисунок 2.19 Положение монтажной платы; Установите и затяните кабель заземления.; Рисунок 2.20 Монтаж кабеля заземления
L 1 L 2 L 3 91 92 93 130B T336.10 Рисунок 2.18 Подключение к сети питания переменного тока • Заземлите кабель в соответствии синструкциями по заземлению, указанными в 2.4.2 Требования к заземлению . • Все преобразователи частоты могутиспользоваться как с изолированнымисточником входного тока, так и ...
Страница 24 - или необходимо использовать два сетевых; Рисунок 2.21 Монтаж сетевого разъема; Закрепите скобу крепления на проводке сети.; Рисунок 2.22 Монтаж опорного кронштейна; Используется кабельный зажим.
ВНИМАНИЕ! Заземляющий кабель должен иметь сечение не менее10 мм², или необходимо использовать два сетевых провода, рассчитанных на номинальный ток, сотдельными соединительными наконечниками всоответствии со стандартами EN 50178/IEC 61800-5-1. 4. Присоедините провода к сетевому разъему изатяните клем...
Страница 25 - Правильные сечения кабелей см. в
2.4.5.3 Подключение к сети, корпуса B1 и B2 . 130B T332.10 Рисунок 2.25 Подключение к сети и заземление, корпуса B1 иB2 УВЕДОМЛЕНИЕ Правильные сечения кабелей см. в 10.2 Общие технические данные . 2.4.5.4 Подключение к сети, корпуса C1 и С2 130BA389.10 95 91 L1 92 L2 93 L3 Рисунок 2.26 Подключение к...
Страница 26 - управления; Рисунок 2.27 Расположение клемм управления; технические данные; Аналоговые входы/выходы
2.4.6 Подключение элементов управления 2.4.6.1 Типы клемм управления На Рисунок 2.27 показаны съемные разъемы преобразователя частоты. Функции клемм и настройкипо умолчанию приведены в Таблица 2.5 . 1 4 2 3 130BA012.12 61 68 69 39 42 50 53 54 55 12 13 18 19 27 29 32 33 20 37 Рисунок 2.27 Расположени...
Страница 27 - Характеристики, зависящие от мощности
Цифровые входы/выходы Клемма Задание Настройка по умолчанию Описание 42 6-50 [100] Вых.частота Программируемыйаналоговый выход.Аналоговый сигнал0–20 мА или 4–20 мАпри макс. 500 Ом. 50 - +10 В пост.тока Напряжение питания10 В пост. тока,аналоговые входы.Максимум 15 мА,обычно используетсядля подключен...
Страница 28 - кабелей управления
2.4.6.3 Использование экранированных кабелей управления Правильное экранированиеВ большинстве случаев предпочтительным методомбудет фиксация кабелей управления и кабелейпоследовательной связи с помощью входящих вкомплект экранирующих зажимов на обоих концах, чтопозволит обеспечить наилучший контакт ...
Страница 29 - VLT; Рисунок 2.34 Расположение переключателей клемм 53 и 54
2.4.6.4 Клеммы с перемычкой 12 и 27 Между клеммами 12 (или 13) и 27 может понадобитьсяперемычка для работы преобразователя частоты сзапрограммированными значениями заводскихнастроек по умолчанию. • Клемма 27 цифрового входа служит дляполучения команды внешней блокировки 24 Впостоянного тока. Во мног...
Страница 34 - Пусконаладка и функциональные проверки; Предпусковые проверки; Отмечайте элементы, установка которых закончена.; Прокладка кабелей
3 Пусконаладка и функциональные проверки 3.1 Предпусковые проверки 3.1.1 Проверка соблюдения требований безопасности ВНИМАНИЕ! ВЫСОКОЕ НАПРЯЖЕНИЕ! При неправильном подключении входных и выходных разъемов возникает риск появления высокого напряжения наклеммах. Если провода питания для нескольких двиг...
Страница 35 - Описание
Осматриваемыйкомпонент Описание ☑ Проводка цепиуправления • Убедитесь в отсутствии поврежденных кабелей или слабых соединений. • Проверьте, изолирована ли проводка управления от проводов питания и кабелей двигателя;это необходимо для защиты от помех. • Если требуется, проверьте источник питания для ...
Страница 36 - Подключение к сети питания; устройство; Базовое рабочее программирование; Компрессоры
3.2 Подключение к сети питания ВНИМАНИЕ! ВЫСОКОЕ НАПРЯЖЕНИЕ! В подключенных к сети переменного токапреобразователях частоты имеется опасноенапряжение. Монтаж, пусконаладочные работы иобслуживание должны осуществляться толькокомпетентным персоналом. Несоблюдение данноготребования может привести к лет...
Страница 37 - Рисунок 3.3 Выбор языка; Настройка компрессорной группы
Работу «Руководства по применению» можно отменить влюбое время, нажав кнопку [Back] (Назад). При помощибыстрого меню можно снова войти в «Руководство поприменению». При повторном запуске «Руководства поприменению» пользователя попросят сохранитьизменения заводских настроек или восстановитьзначения п...
Страница 38 - Рисунок 3.8 Минимальное время между пусками; Рисунок 3.11 Выбор типа датчика
Рисунок 3.7 Настройка мин. и макс. частоты Рисунок 3.8 Минимальное время между пусками Рисунок 3.9 Выбор работы с участием/безучастия обводного клапана Рисунок 3.10 Выбор разомкнутого илизамкнутого контура УВЕДОМЛЕНИЕ Внутренний/замкнутый контур: FC 103 контролируетприменение при помощи внутреннего ...
Страница 40 - Рисунок 3.24 Запуск применения; программирование; Интерфейс пользователя
130BC955.10 Рисунок 3.22 Информационное сообщение:выполните соответствующееподключение Рисунок 3.23 Информационное сообщение:настройка завершена По завершении установки перезапустите мастер илизапустите применение. В данном меню возможен выборследующих опций: • Перезапуск мастера. • Переход в главно...
Страница 41 - Рисунок 3.28 Основные настройки; или; Местное, Дистанционное
Вводите данные при ВКЛЮЧЕННОМ питании, но довключения преобразователя частоты. 1. Дважды нажмите кнопку [Main Menu] (Главноеменю) на LCP. 2. Используйте навигационные кнопки длявыбора группы параметров 0-** Управл./ отображ. и нажмите [OK]. 130BP 066.10 Рисунок 3.26 Main Menu (Главное меню) 3. Испол...
Страница 42 - Настройка асинхронного двигателя; Рисунок 3.30 Настройка двигателя; Автоматическая адаптация двигателя; Настройка двигателя с постоянными
3.4 Настройка асинхронного двигателя Введите данные электродвигателя в параметрах с1-20/1-21 по 1-25. Эту информацию можно найти напаспортной табличке двигателя. 1. 1-20 Мощность двигателя [кВт] или 1-21 Мощность двигателя [л.с.] 1-22 Напряжение двигателя 1-23 Частота двигателя 1-24 Ток двигателя 1-...
Страница 46 - Панель местного управления; LCP выполняет несколько пользовательских функций.; LCP разделена на четыре функциональные зоны (см.; Интерфейс пользователя
4 Интерфейс пользователя 4.1 Панель местного управления Панель местного управления (LCP) представляет собойкомбинацию дисплея и клавиатуры и расположена напередней части преобразователя. LCP представляетсобой интерфейс пользователя к преобразователючастоты. LCP выполняет несколько пользовательских ф...
Страница 47 - Кнопка; Быстрая настройка
4.1.2 Установка значений дисплея LCP Дисплей включается при подключении преобразователячастоты к сети питания, клемме шины постоянного токаили внешнему источнику питания 24 В. Отображаемая на LCP информация может бытьнастроена в соответствии с требованиями конкретногоприменения. • Все показания дисп...
Страница 49 - Резервирование и копирование; Восстановление установок по
4.2 Резервирование и копирование настроек параметров. Данные программирования хранятся внутрипреобразователя частоты. • Данные можно загрузить в память LCP какрезервную копию. • После сохранения в LCP данные можнозагрузить обратно в преобразователь частоты. • Кроме того, данные можно загрузить в дру...
Страница 50 - Дистанционное программирование с
4.3.1 Рекомендуемая инициализация 1. Дважды нажмите [Main Menu] (Главное меню)для доступа к параметрам. 2. Прокрутите до пункта 14-22 Режим работы . 3. Нажмите [OK]. 4. Выберите Инициализация . 5. Нажмите [OK]. 6. Отключите электропитание устройства иподождите, пока не погаснет дисплей. 7. Подключит...
Страница 51 - Пример программирования; -15 Источник задания 1; Рисунок 5.1 Пример программирования, шаг 1; . Установите минимальное; Рисунок 5.2 Пример программирования, шаг 2; -03 Максимальное задание; Рисунок 5.3 Пример программирования, шаг 3; Программирование
5 Программирование 5.1 Введение Преобразователь частоты запрограммирован навыполнение своих функций с применением параметров.Доступ к параметрам открывается нажатием на кнопку[Quick Menu] (Быстрое меню) или [Main Menu] (Главноеменю) на LCP. (Более подробную информацию обиспользовании функциональных ...
Страница 52 - -10 Клемма 53, низкое напряжение; Рисунок 5.4 Пример программирования, шаг 4; -11 Клемма 53, высокое напряжение; Рисунок 5.5 Пример программирования, шаг 5; Рисунок 5.7 Пример программирования, шаг 7; На; Примеры программирования клемм; Клеммы управления программируются.
4. 6-10 Клемма 53, низкое напряжение . Установите минимальное задание внешнего напряженияна клемме 53 на уровне 0 В. (Минимальныйвходной сигнал в этом случае устанавливаетсяна уровне 0 В.) Q3-21 130B T764.10 6-10 Terminal 53 Low Voltage 0.00 V 14.7% 0.00A 1(1) Analog Reference Рисунок 5.4 Пример про...
Страница 54 - Сброс вручную; Рисунок 5.12 Внесенные изменения; Рисунок 5.13 Q5 Changes Made (Внесенные изменения); Структура меню параметров
Задание Международные значения параметров установок по умолчанию Североамериканс кие значения параметров установок по умолчанию 14-20 Режим сброса Сброс вручную Неопр. число авт.сбр. Таблица 5.1 Международные/североамериканские настройкипараметров по умолчанию Примечание 1. 1-20 Мощность двигателя [...
Страница 55 - Q3-1 Общие настройки; Про
5.5.1 Структура быстрого меню Q3-1 Общие настройки 0-24 Строка дисплея 3, большая 1-00 Режим конфигурирования Q3-31 Внешняя уставка, одна зона 20-70 Тип замкнутого контура Q3-10 Расшир. настр.двиг. 0-37 Текст 1 на дисплее 20-12 Ед.изм. задания/сигн. ОС 1-00 Режим конфигурирования 20-71 Реж. настр. П...
Страница 58 - меню
5.5.2 Структура главного меню 0-** Управл./Отображ. 0-0* Основные настройки 0-01 Язык 0-02 Единица измер. скор. вращ. двигат. 0-03 Региональные установки 0-04 Рабочее состояние при включениипитания 0-05 Ед. измер. в местном режиме 0-1* Раб.с набор.парам 0-10 Активный набор 0-11 Программирование набо...
Страница 62 - Примеры настройки для различных применений; -03 Региональные установки; Примеры настройки
6 Примеры настройки для различных применений 6.1 Введение УВЕДОМЛЕНИЕ При использовании поставляемой по заказу функции безопасного останова по превышению крутящего моментамежду клеммами 12 (или 13) и 37 может понадобиться перемычка для работы преобразователя частоты сзапрограммированными значениями ...
Страница 64 - Рисунок 6.4 Датчик давления P; Чтобы узнать необходимые параметры, запустите мастер.
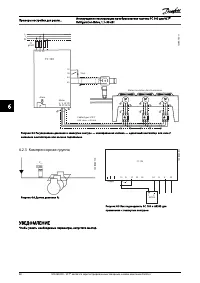
Start L 1 L 2 PE F1gL/UR 91 92 93 FC 103 12 18 54 55 Cables type: LIYCYLtot. max. = 40 mm Alarm MotorU V W PE96 97 95 93 Motors insulation class B minimum 130BA760.11 Рисунок 6.3 Регулирование давления в замкнутом контуре — изолированная система — одиночный вентилятор или насос/несколько вентиляторо...
Страница 65 - Дисплей состояния; Расшифровка сообщений о состоянии; В таблицах; -10 Функция торможения; Сообщения о состоянии
7 Сообщения о состоянии 7.1 Дисплей состояния Если преобразователь частоты находится в режимеотображения состояния, сообщения о состоянии будутгенерироваться автоматически и отображаться внижней строке на экране (см. Рисунок 7.1 .) Status 799RPM 7.83A 36.4kW 0.000 53.2% 1(1) Auto Hand Off Remote Loc...
Страница 68 - Предупреждения и аварийные сигналы; Мониторинг системы; Команда сброса для цифрового входа; Дисплеи предупреждений и; Рисунок 8.1 Экран предупреждений; Рисунок 8.2 Отображение аварийных сигналов
8 Предупреждения и аварийные сигналы 8.1 Мониторинг системы Преобразователь частоты контролирует состояниепитания на входе, выходных сигналов, характеристикидвигателя, а также другие рабочие параметры системы.Предупреждение или аварийный сигнал не обязательноозначают, что проблема связана с самимпре...
Страница 69 - Определения предупреждений и аварийных сигналов
Auto on Reset Hand on Off Back C anc el In fo OK On Alarm Warn. 130BB467.10 Рисунок 8.3 Световые индикаторы состояния Светодиод Warning(предупреждение) Светодиод Alarm(аварийный сигнал) Предупреждение Горит Не горит Аварийныйсигнал Не горит Горит (мигает) Отключениесблокировкой Горит Горит (мигает) ...
Страница 71 - Автоматический сброс с помощью 14-20 Режим сброса невозможен
№ Описание Предупре ждение Аварийный сигнал/ отключение Аварийный сигнал/ отключение с блокировкой Ссылка на параметр 67 Изменена конфигурация дополнительныхустройств X 69 Темп. силовой платы X X 70 Недопустимая конфигурация ПЧ X 71 Безопасный останов PTC 1 X X 1) 72 Опасный отказ X 1) 73 Автоматиче...
Страница 77 - -18 Предел по току
АВАРИЙНЫЙ СИГНАЛ 46, Питание силовой платыНа силовую плату питания подается питание, несоответствующее установленному диапазону. Импульсный блок питания (SMPS) на силовой платепитания вырабатывает три питающих напряжения: 24 В,5 В, ± 18 В. При использовании источника питания 24 В пост. тока с дополн...
Страница 80 - Поиск и устранение основных неисправностей; Пусконаладка и эксплуатация; Признак
9 Поиск и устранение основных неисправностей 9.1 Пусконаладка и эксплуатация Признак Возможная причина Проверка Решение Дисплей не светится/не работает Нет входного питания См. Таблица 3.1 . Проверьте источник питания навходе. Отсутствуют или открытыпредохранители илизаблокирован автоматическийвыклю...
Страница 82 - -14 Верхний предел
Признак Возможная причина Проверка Решение Двигатель не достигаетмаксимальной скорости Неправильно заданы пределычастоты Проверьте выходные пределы в 4-13 Верхн.предел скор.двигателя [об/мин] , 4-14 Верхний предел скорости двигателя [Гц] и 4-19 Макс. выходная частота Запрограммируйте правильныепреде...
Страница 83 - Аварийного
Признак Возможная причина Проверка Решение Дисбаланс тока сетипревышает 3 % Проблема с сетевым питанием(см. описание Аварийного сигнала 4, Обрыв фазы ) Поверните силовые кабелипреобразователя частоты на одноположение: A на B, B на C, C на А. Если за проводом находитсянесбалансированная ветвь, топроб...
Страница 84 - 0 Технические характеристики; Характеристики, зависящие от мощности; Выходной ток; Технические характеристики
10 Технические характеристики 10.1 Характеристики, зависящие от мощности 10.1.1 Питание от сети 3 x 200–240 В перем. тока Преобразователь частотыТипичная выходная мощность на валу [кВт] P1K1 1.1 P1K5 1.5 P2K2 2.2 P3K0 3 P3K7 3.7 IP20/шасси 6) A2 A2 A2 A3 A3 IP55/Тип 12 A4/A5 A4/A5 A4/A5 A5 A5 IP66/N...
Страница 91 - С торможением и разделением нагрузки 95/4/0
ПреобразовательчастотыТипичная выходнаямощность на валу[кВт] P11K 11 P15K 15 P18K 18.5 P22K 22 P30K 30 P37K 37 P45K 45 P55K 55 P75K 75 P90K 90 Масса, IP20 [кг] 12 12 12 23,5 23,5 23,5 35 35 50 50 Масса IP21/IP55 [кг] 23 23 23 27 27 27 45 45 65 65 Коэффициентполезного действия 4) 0,98 0,98 0,98 0,98 ...
Страница 94 - Общие технические данные; Зависит от напряжения и мощности
10.2 Общие технические данные Питание от сетиПитающие клеммы L1, L2, L3 Напряжение питания 200–240 В ± 10 % Напряжение питания 380–480 В ± 10 % Напряжение питания 525–600 В ± 10 % Низкое напряжение сети/пропадание напряжения:При низком напряжении сети или при пропадании напряжения сети преобразовате...
Страница 96 - Рисунок 10.1 Изоляция PELV аналоговых входов; Ом
Mains Functionalisolation PELV isolation Motor DC-Bus High voltage Control +24V RS485 18 37 130BA117.10 Рисунок 10.1 Изоляция PELV аналоговых входов Импульсные входыПрограммируемый импульс 2/1 Номера клемм импульсных входов 29, 33 1) /32 2) , 33 2) Макс. частота на клемме 29, 32, 33 110 кГц (двухтак...
Страница 102 - Моменты затяжки контактов; Для различных сечений кабеля x/y, где x 95 мм2 и y 95 мм2.
10.3.2 Сменные предохранители на 240 В Оригинальныйпредохранитель Изготовитель Сменныепредохранители KTN Bussmann KTS FWX Bussmann FWH KLNR LITTEL FUSE KLSR L50S LITTEL FUSE L50S A2KR FERRAZ SHAWMUT A6KR A25X FERRAZ SHAWMUT A50X Таблица 10.11 Сменные предохранители 10.4 Моменты затяжки контактов Мощ...