Danfoss VLT 2800 Series - инструкции и руководства
Преобразователь частоты Danfoss VLT 2800 Series - инструкции пользователя по применению, эксплуатации и установке на русском языке читайте онлайн в формате pdf
Инструкции:
Инструкция по эксплуатации Danfoss VLT 2800 Series
Краткое содержание
Управление механическим тормозом 83 Доступ к клеммам управления 83 Электрический монтаж , кабели управления 84 Моменты затяжки , кабели управления 85 Электрический монтаж , клеммы управления 85 Подключение реле 85 Программное обеспечение Dialog для VLT 86 Примеры подключения 87 Все о преобразователе...
Быстрая настройка Общее предупреждение Используя режим быстрого запуска , Вы можете быстро и корректно ( по ЕМС ) выполнить монтаж преобразователя частоты всего за пять шагов . Ин - струкции по эксплуатации , которые также включе - ны в это руководство , дают все остальные приме - ры монтажа и детал...
Установить диапазон задания Мин . опорное значение , Ref MIN параметр 204 Макс . опорное значение , Ref MAX параметр 205 Время разгона [ с ] параметр 207 Время замедления [ с ] параметр 208 В параметре 002 местное или дистанционное управление режим преобразователя частоты мо - жет быть выбран либо к...
Остановленный двигатель может вновь запуститься , если имеет место неисправность в электронике преоб - разователя частоты или прекращается временная перегрузка двигателя , не - исправность в сети переменного тока или ошибка в подключении двигателя . Внимание Указывает , на что нужно обратить осо - б...
Предупреждение о высоком напряжении Напряжение преобразователя частоты опасно , если преобразователь подклю - чен к сети переменного тока . Непра - вильный монтаж двигателя или преоб - разователя частоты может привести к повреждению оборудования , тяжелым травмам или смертельному исходу . Та - ким о...
Используется с изолированными сетями пита - ния Относительно использования с изолированными сетями питания см . раздел Выключатель фильт - ра ВЧ - помех . Необходимо выполнять рекомендации по монтажу в IT- сетях , поскольку должна обеспечиваться до - статочная защита всей установки . Если не исполь ...
004 Активный набор (ACTIVE SETUP) Hodnota: Заводской набор (FACTORY SETUP) [0] Набор 1 (SETUP 1) [1] Набор 2 (SETUP 2) [2] Набор 3 (SETUP 3) [3] Набор 4 (SETUP 4) [4] Несколько наборов (MULTI SETUP) [5] Функция : Здесь выбирается активный Набор параметров . Все параметры могут быть запрограммированы...
007 Копировать с помощью панели упра - вления (LCP COPY) Hodnota: Нет копирования (NO COPY) [0] Загрузить в панель все параметры (UPL. ALL PAR.) [1] Загрузить все параметры (DWNL. ALL PAR.) [2] Загрузить параметры , не зависящие от ти - поразмера (DWNL.OUTPIND.PAR.) [3] Функция : Если должна применя...
Аналоговый вход 60 [ мА ] (analog input 60 [mA]) [19] Импульсное задание [ Гц ] (Pulse ref. [Hz]) [20] Внешнее задание [%] (external ref. [%]) [21] Слово состояния [16- ричн .] (Status word [hex]) [22] Температура радиатора [°C] (Heatsink temp [°C]) [25] Слово аварийной сигнализации [16- рич - ное ]...
минимального задания Ref MIN до максимального задания Ref MAX . Слово состояния [16- ричное ] устанавливает одно или несколько значений состояния в шестнадца - теричном коде . Для получения более подробной информации см . раздел Последовательная связь в Руководстве по проектированию VLT 2800 . Темпе...
Нагрузка и двигатель 100 Конфигурация (Configuration) Hodnota: Регулирование скорости без обратной свя - зи (SPEED OPEN LOOP) [0] Регулирование скорости с обратной связью (SPEED CLOSED LOOP) [1] Регулирование процесса с обратной связью (PROCESS CLOSED LOOP) [3] Функция : Этот параметр используется д...
Описание выбора : Установить значение , которое соответствует вели - чине , указанной на фирменной табличке двигате - ля . Установить ток двигателя I M,N взятый с учетом типа подключения двигателя ( звездой Y или треу - гольником Δ ). 106 Номинальная скорость вращения двигателя (MOTOR NOM. SPEED) Ho...
Функция : Этот параметр используется для установки режи - ма торможения переменным током . Используя пар .144, можно настроить величину генераторного крутящего момента , который может быть прило - жен к двигателю без превышения уровня пред - упреждения по напряжению в промежуточной це - пи . Описани...
Описание выбора : Максимальное задание устанавливается в случае , если скорость двигателя должна быть равна мак - симально установленной , независимо от того , пре - вышает результирующее задание максимальное или нет . 206 Характеристика разгона / замедления ((RAMP TYPE)) Hodnota: Линейная ((LINEAR)...
Задания и ограничения Цифровые входы № клеммы 18 1 19 1 27 29 33 № параметра 302 303 304 305 307 Значение : Не используется (NO OPERATION) [0] [0] [0] [0] [0] Сброс (RESET) [1] [1] [1] [1] [1] Останов с выбегом , инверсный (MOTOR COAST INVERSE) [2] [2] [2] [2] [2] Сброс и останов выбегом , инверсный...
предустановленных заданий в соответствии с при - веденной выше таблицей . Функция Термистор выбирается , если встроен - ный в двигатель термистор должен останавливать преобразователь частоты при перегревах двига - теля . Отключение происходит при значении сопро - тивления , равном 3 кОм . Если в дви...
налы задания подаются более чем на один вход , то эти сигналы должны быть сложены . Если по - дается напряжение сигнала обратной связи , то для клеммы 53 следует выбрать режим Обратная связь [2]. Качание [10] Разностная частота может регулироваться с по - мощью аналогового входа . Если в качестве фу...
Мин .- макс . сигнал обратной связи = 4-20 мА (fb min-max = 4-20 mA) [4] Выходная частота 0- макс . 0-20 мА (0-fmax = 0-20 mA) [5] Выходная частота 0- макс . 4-20 мА (0-fmax = 4-20 mA) [6] Выходной ток 0-I INV => 0-20 м A (0-iinv = 0-20 mA) [7] Выходной ток 0-I INV 4-20 м A (0-iinv = 4-20 mA) [8]...
нижних частот составит 1/0,1 = 10 рад / с , что соот - ветствует (10 / 2 x π ) = 1,6 Гц . Таким образом , PID- регулятор будет отслеживать только сигнал обрат - ной связи , который изменяется с частотой , меньшей 1,6 Гц . Если же сигнал обратной связи изменяется с частотой более 1,6 Гц , то такое из...
461 Преобразование обратной связи (FEEDBACK CONV.) Hodnota: Линейное (LINEAR) [0] Корень квадратный (SQUARE ROOT) [1] Функция : В этом параметре выбирается функция преобраз - ования подключенного сигнала обратной связи , характеризующего процесс , в сигнал обратной связи , равный квадратному корню и...
ожидания или отключается вследствие работы всухую ( в зависимости от конфигурации ). • Защита от работы всухую . Останавливает при отсутствии потока или малом потоке и защищает двигатель и насос от перегре - ва . • Повышенное энергосбережение благода - ря использованию улучшенного режима ожидания . ...
485 Скорость заполнения (FILL RATE) Hodnota: ВЫКЛ /000000,001 - 999999,999 ( ед . изм ./ с ) - ВЫКЛ . Функция : Задает скорость , с которой происходит заполне - ние трубопровода . Описание выбора : Величина этого параметра - единицы измерения в секунду . Единицы измерения выбираются в пара - метре 4...
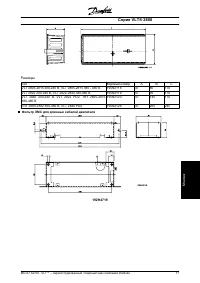
Габаритные и присоединительные размеры На приведенных ниже рисунках указаны габарит - ные и установочные размеры . Размеры даны в мм . Внимание Следует отметить , что все варианты фильтров следует устанавливать вер - тикально . VLT 2803-2815 200-240 В VLT 2805 - 2815 380 480 В . VLT 2822 200 - 240 В...
Размеры Тип Кодовый номер A B C VLT 2803-2815 200-240 В , VLT 2805-2815 380 - 480 В 195N2118 47 80 170 VLT 2822 200-240 В , VLT 2822-2840 380-480 В 195N2119 47 95 170 VLT 2840 200-240 В , VLT 2822 PD2, TR1 2855-2875 380-480 В 195N2120 47 145 170 TR1 2880-2882 380-480 В , VLT 2840 PD2 195N2126 47 205...
Механический монтаж Обратите особое внимание на требо - вания , которые даны в прилагаемой к преобразователю частоты документа - ции . Преобразователь частоты охлаждается циркули - рующим воздухом . Поскольку блок должен иметь возможность выпускать охлаждающий воздух , ми - нимальное свободное расст...
Электрический монтаж См . также раздел " Подключение тормоза ". VLT 2803-2815 200-240 В , 2805-2815 380-480 В VLT 2822 200-240 В , 2822-2840 380-480 В Серия VLT® 2800 MG.27.A2.50 - VLT ® – зарегистрированный товарный знак компании Danfoss 77 Монтаж
Защитная скоба Если клеммы управления и высоко - вольтные клеммы должны быть галь - ванически изолированы (PELV) друг от друга , то на VLT 2803 - 2815, 200 - 240 В и VLT 2805 - 2815, 380 - 480 В дол - жна быть устанолена защитная скоба . Входные плавкие предохранители Во всех типах блоков в сети пит...
Программное обеспечение Dialog для VLT Подключение к клеммам 68 - 70 или к разъему Sub D: - Вывод 3 GND ( Земля ) - Вывод 8 P-RS 485 - Вывод 9 N-RS 485 Разъем Sub D Панель LCP 2 может быть подключена к разъему Sub D на плате управления . Номер для заказа : 175N0131. Блок управления LCP с кодовым № 1...
№ Описание Предупре - ждение Аварий - ный сиг - нал Отключе - ние с блоки - ровкой 2 Ошибка нулевого аналогового сигнала (LIVE ZERO ERROR) X X X 4 Потеря фазы сети (MAINS PHASE LOSS) X X X 5 Предупреждение о повышенном напряжении (DC LINK VOLTAGE HIGH) X 6 Предупреждение о пониженном напряжении (DC ...
ду клеммой 18, 19, 27 или 29 ( цифровой вход ) и клеммой 50 ( питание + 10 В ). ПРЕДУПРЕЖДЕНИЕ / АВАРИЙНЫЙ СИГНАЛ 12: Предел по току Выходной ток больше , чем значение параметра 221 Предел по току LIM , и преобразователь часто - ты будет отключен по истечении времени , устано - вленного с помощью па...
1. Трансформатор и оптическая развязка в источнике электропитания . 2. Оптическая развязка между основной си - стемой регулирования двигателя и платой управления . 3. Развязка между платой управления и си - ловой частью . 4. Контакты реле и клеммы по отношению к другим цепям на плате управления . Ра...
Электромагнитная совместимость ( излучение ) Приведенные ниже результаты получены на си - стеме , содержащей преобразователь частоты VLT серии 2800 с экранированным / бронированным ка - белем управления , блок управления с потенцио - метром , экранированный / бронированный кабель двигателя и экранир...
Технические характеристики , питание от сети 1 x 220-240 В / 3 x 200-240 В В соответствии с международ - ными стандартами Тип 2803 2805 2807 2811 2815 2822 2822 PD2 2840 2840 PD2 Выходной ток I INV. [ А ] 2.2 3.2 4.2 6.0 6.8 9.6 9.6 16 16 (3 x 200-240 В ) I MAX (60 с ) [ А ] 3.5 5.1 6.7 9.6 10.8 15....
Технические характеристики , питание от сети 3 х 380 -480 В В соответствии с международными стандартами Тип 2805 2807 2811 2815 2822 2830 Выходной ток I INV. [ А ] 1.7 2.1 3.0 3.7 5.2 7.0 (3 x 380-480 В ) I MAX (60 с ) [ А ] 2.7 3.3 4.8 5.9 8.3 11.2 Выходная мощность (400 В ) S INV. [ кВА ] 1.1 1.7 ...
№ па - рам . Название параметра Заводская установка 4 на - стройки Индекс преобраз - ования Тип данных 500 Адрес 1 Нет 0 5 501 Скорость передачи 9600 бод Нет 0 5 502 Останов выбегом Логическое " ИЛИ " Да 0 5 503 Быстрый останов Логическое " ИЛИ " Да 0 5 504 Торможение постоянным токо...
к клемма 46 49 К Клемма 53 44 Клемма 60 45 к клеммам управления 83 К Кнопки управления 9 Компенсация нагрузки 29 Компенсация скольжения 30 Копирование набора 13 Копировать с помощью панели управления 14 Корень квадратный 62 Коэффициент пропорциональности ПИД - регулятора скорости 55 Коэффициент торм...
Danfoss Преобразователи частоты Инструкции
-
Danfoss VLT AQUA Drive FC 200
Инструкция по эксплуатации
-
Danfoss VLT Automation Drive FC 300
Инструкция по эксплуатации
-
Danfoss VLT HVAC Basic
Инструкция по эксплуатации
-
Danfoss VLT HVAC Drive FC 100
Инструкция по эксплуатации
-
Danfoss VLT MCD 201
Инструкция по эксплуатации
-
Danfoss VLT MCD 202
Инструкция по эксплуатации
-
Danfoss VLT Micro Drive FC 51
Инструкция по эксплуатации
-
Danfoss VLT Refrigeration Drive FC103
Инструкция по эксплуатации