Страница 5 - Введение
5 Введение Сборник инструкций по эксплуатации и техническому обслуживанию ( далее « Сборник инструкций ») предоставляет пользователю полезную информацию , необходимую для простой , правильной и безопасной эксплуатации оборудования ( далее « Машина », « Посудомоечная машина », « Агрегат »). Следующий...
Страница 7 - none
ВОО ПТНС ПВПО ЗВК ВНМВ В те сопровотехнике объяснеопасностого , чт персонаоборудоматериаСледуетприведеинструкцслужат информизображВ монта размерыЕ 6.2 « М Все маш с напр налево изображподачи подобныотдельнС учето иногда виде отд А 4. машины Ниже идентифтехниче ВНИМАНИЕОПАСНОСТОБОРУДОВА ПРЕДПИС...
Страница 9 - Этап; Electrolux Professional
9 Несогласованная с заводом - изготовителем модификация конструкции машины . Недостаточное техническое обслуживание . Использование оборудование не по назначению . Непредвиденные обстоятельства чрезвычайного характера . Допуск к эксплуатации оборудования неподготовленного и необученного пе...
Страница 10 - Electrolux; Кому
10 Декларация соответствия СЕ , сопровождающая машину , распространяется и на подобные системы . Завод - изготовитель не предусматривает возможности внесения других конструктивных модификаций , но позволяет выполнять другие типы соединений , с системами , отличными от описанной выше ( в целях создан...
Страница 11 - Ra
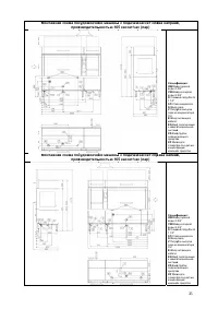
В . ОБЩ В 1. Общ ТуннельстоловоконтейнДанная задач . З настоящПосудомпредъявпредназкафетерСпециалпрактичпрофесспроизвоконтролфункциоВ тунне нескольудалениустройстВозможн ( типа Ra 1 2 Рис ЩЕЕ ОПИСА щее описан ьная посудом й посуды , с еров , а такж машина бы Запрещаетс щем сборник моечные м вляемым ...
Страница 14 - МОДЕЛЬ
14 С . ТЕХНИЧЕСКИЕ ДАННЫЕ С 1. Общие технические характеристики ( электронагрев ) ЗОНА ОПОЛ АСКИ - В АНИ Я температура °C/°F 80-90 / 176-194 80-90 / 176-194 80-90 / 176-194 80-90 / 176-194 80-90 / 176-194 80-90 / 176-194 пропускная способность насоса л / мин . 4 5 5 5 5 5 мощность насоса кВт 0.35 0....
Страница 17 - TN
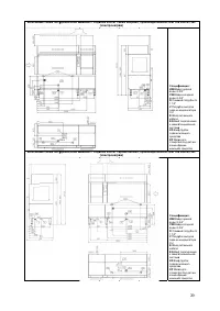
Табл . 4 (5) – Зна замер . (7) – То ** - В м необход ( см . соо С 3. Хар Сеть пер М Мв Такие ф напряжерегламе В Эппр В ДпиуннаопиНд ( у В Нзи - Сводная т ачение може олько для ве машинах , о димо сумм ответствую актеристик ременного т Макс . откло Макс . откло времени , +/- факторы , ка ения , с...
Страница 41 - «XD
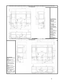
иннрп Е 8.1.1. раствор Для концентзоны мо мм ), зак уже бы « Монтаж Ри кон Е 8.1.2. средств Внутри ( 5 мм отверстимоющегбыло « Монтаж Рис доза Е 8.1.3. средств В верхни справа и подключпорошкоЧтобы осторож ср использоване по негативно результатахповрежден Датчик из ра моющего установки рации мою...
Страница 45 - EN
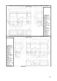
Е 10. Ус кассет В Кдтсспс ( кив В ПВзп ВКээдк Завод - и возможнпосудомс элеме из ката созданиразличнНиже о подготовдля м соединеподробнинструкцприобреперемещИмеющиподготовдля п ( кордовы непривосистем д Е 10.1. подсоед На пра машинымеханичперемещДля по непривоименно 15). становка с ВНИМАНИЕ ! К выпо...
Страница 59 - gap
акустичевыводит или Теперь м - выйти запуститмашины « Допол табл . 5) - выклю ВКЛ ./ ВЫ ВЕпсеЧн - пгп Если м DT/HAB через 1 охлаждедисплей Перед выключаподождаотключи еский сиг тся следующ можно : из меню до ть подачу ы , наж нительные ючить маш ЫКЛ . (« А » - ВНИМАНИЕЕсли маш помощи кн см . табл . ...